11759 Logan St, Northglenn, CO 80233
Applicant has the right to provide the property manager or owner with a Portable Tenant Screening Report (PTSR) that is not more than 30 days old, as defined in § 38-12-902(2.5), Colorado Revised Statutes; and 2) if Applicant provides the property manager or owner with a PTSR, the property manager or owner is prohibited from: a) charging Applicant a rental application fee; or b) charging Applicant a fee for the property manager or owner to access or use the PTSR.
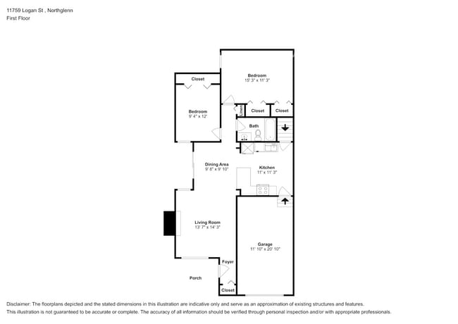
What This House Offers
Lease this home and get more from Invitation Homes professional property management. This home comes fully loaded with quality amenities, must-have services,... high-end tech and ProCare® professional maintenance. Your estimated total monthly payment is $2724.90. That covers your base rent, $2665.00 + our required services designed to make your life easier: Air Filter Delivery Fee ($9.95), Smart Home with video doorbell ($40), and Utility Billing Service Fee ($9.95). Base rent varies based on selected lease term.
Welcome to your new house. The basics are included. Just add your personal flair to make it into a home. You will instantly feel at ease when you walk through this inviting entryway. This lovely home features a stylish tile, vinyl plank floors, an attractive fireplace, an open floor plan, spacious bedrooms, a garage, and a covered porch. Meal time will be more enjoyable in this lovely kitchen with sleek countertops, spacious cabinets and stainless-steel appliances. A backyard with a patio is perfect for any occasion that awaits you in this beautiful home. There is plenty of space to set up your preferred furniture, so you can lean back, relax and let the day's stress fade away. Your pets will thrive behind a privacy fence that also blocks out the sights and sounds of the neighborhood. Apply online today!
Invitation Homes complies with all applicable law relating to source of income, including CRS 38-12-904(1)(c). If we discover that you are applying with assistance, your credit score will not be factored into your eligibility.
At Invitation Homes, we offer pet-friendly, yard-having homes for lease with Smart Home technology in awesome neighborhoods across the country. Live in a great house without the headache and long-term commitment of owning. Discover your dream home with Invitation Homes.
Our Lease Easy bundle – which includes Smart Home, Air Filter Delivery, and Utilities Management – is a key part of your worry-free leasing lifestyle. These services are required by your lease at an additional monthly cost. Monthly fees for pets and pools may also apply.
Home Features and Amenities: Bonus Room, Covered Porch, Fenced Yard, Fireplace, Garage, Long Lease Terms, Luxury Vinyl Plank, Open Floorplan, Patio, Pet Friendly, Smart Home, Stainless Steel Appliances, Tile, Walk in Closet, W/D Hookups, and professionally managed by Invitation Homes.
This Invitation Home is being enjoyed by another resident, but it will be available soon. You can still apply – contact us for more details or apply now.
Invitation Homes is an equal housing lessor under the FHA. Applicable local, state and federal laws may apply. Additional terms and conditions apply. This listing is not an offer to rent. You must submit additional information including an application to rent and an application fee. All leasing information is believed to be accurate, but changes may have occurred since photographs were taken and square footage is estimated. Furthermore, prices and dates may change without notice. See InvitationHomes website for more information.
Beware of scams: Employees of Invitation Homes will never ask you for your username and password. Invitation Homes does not advertise on Craigslist, Social Serve, etc. We own our homes; there are no private owners. All funds to lease with Invitation Homes are paid directly through our website, never through wire transfer or payment app like Zelle, Pay Pal, or Cash App.
For more info, please submit an inquiry for this home. Applications are subject to our qualification requirements. Additional terms and conditions apply. CONSENT TO CALLS & TEXT MESSAGING: By entering your contact information, you expressly consent to receive emails, calls, and text messages from Invitation Homes including by autodialer, prerecorded or artificial voice and including marketing communications. Msg & Data rates may apply. You also agree to our Terms of Use and our Privacy Policy.
Unit
- $2,725
Total Monthly Price - 3 Beds
- 2 Baths
- 1824 sq. ft.
- Available Now
Home Features
- Fireplace
- Patio
- Porch
- Walk-In Closets
Community Features
- Fenced Lot
- Garages
11759 Logan St is located in Northglenn, Colorado in the 80233 zip code.
Rental Fees and Pet Policies
The fees below are based on community-supplied data and may exclude additional fees and utilities.
Utilities & Essentials
- Utility Billing Service Fee$9.95 / mo
- Air Filter Delivery Fee$9.95 / mo
- Smart Home with video doorbell$40 / mo
- Garage
Cats
- Cats Allowed
Dogs
- Dogs Allowed
Explore Commute Options
- Drive Time--
- Walk Time--
- Bike Ride Time--
- Public Transit--

Get In Touch
Northglenn, CO 80233

Neighborhood Scores
Walk Score ®
Very Walkable80 / 100
Transit Score ®
Some Transit31 / 100
Bike Score ®
Bikeable64 / 100
Soundscore ™
Active73 / 100
Travel and Transit

Local Education
Primary and Secondary Schools
Northside Christian Daycare
Grades K-K
Private
Stukey Elementary School
Grades K-5
Public
Adventure Montessori Learning Inc
Grades PK-K
Private
Malley Drive Elementary School
Grades PK-5
Public
Northglenn Middle School
Grades 6-8
Public
Thornton High School
Grades 9-12
Public
ThornCreek Christian School
Grades PK-12
Private
Data provided by GreatSchools.org 2024 © 2024. All rights reserved.
Colleges and Universities
School
Commute Time (Distance)
Front Range C.C., Westminster
Drive: 10 min (4.2 mi)
Regis University
Drive: 19 min (10.8 mi)
Front Range C.C., Brighton
Drive: 23 min (14 mi)
Discover Northglenn, Northglenn, CO
Shopping Centers
Shoppers will appreciate 11759 Logan St proximity to Washington Center, Washington Point Shopping Center, and Webster Lake Promenade. Washington Center is 0.9 miles away, and Washington Point Shopping Center is within a 9 minute walk.
Commuting
With a TransitScore of 31, 11759 Logan St has some transit, including 5 transit stops within 6.2 miles. Transit options include Eastlake - 124Th Station Track 2 and Northglenn - 112Th Station Track 1.
Airports
Living in Northglenn provides easy access to Denver International, located just 35 minutes from 11759 Logan St.




