1818 Babbling Brook NW, Acworth, GA 30102
What This House Offers
Lease this home and get more from Invitation Homes professional property management. This home comes fully loaded with quality amenities, must-have services,... high-end tech and ProCare® professional maintenance. Your estimated total monthly payment is $2474.90. That covers your base rent, $2330.00 + our required services designed to make your life easier: Air Filter Delivery Fee ($9.95), Internet & Media ($85), Smart Home with video doorbell ($40), and Utility Billing Service Fee ($9.95). Base rent varies based on selected lease term.
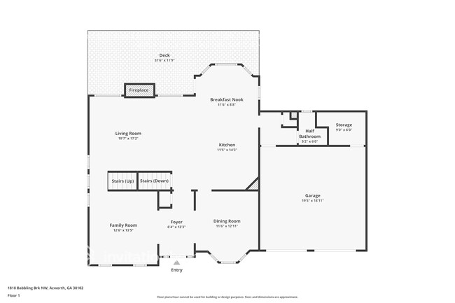
Taking time for yourself will be even easier in a house fitted to your needs. Inject your personality into this beautiful house and you will feel right at home. When you walk into this beautiful house, you will find spacious bedrooms, a finished garage, an attractive fireplace, stylish tile, and hardwood flooring. You’ll love the beautiful kitchen, complete with stainless steel appliances, kitchen island, and granite countertops. The backyard brings the whole house together. And when you need a breath of fresh air, step out into a fenced backyard complete with a lovely deck. Neighborhood amenities include a pool and a tennis court. Apply online today!
At Invitation Homes, we offer pet-friendly, yard-having homes for lease with Smart Home technology in awesome neighborhoods across the country. Live in a great house without the headache and long-term commitment of owning. Discover your dream home with Invitation Homes.
To make your leasing lifestyle as hassle-free as possible, every Invitation Homes lease requires a subscription to our Lease Easy bundle. You’ll enjoy more convenience and control with standard services that may include air filter delivery, utility management, and Smart Home with video doorbell. Want to take easy to the next level? Lawn care and pest control are also available.
Home Features and Amenities: Air Conditioning, Bay Windows, Deck, Fireplace, Garage, Granite Countertops, Hardwood Floors, Kitchen Island, Long Lease Terms, Pet Friendly, Smart Home, Stainless Steel Appliances, Tile, W/D Hookups, and professionally managed by Invitation Homes.
Neighborhood Features and Amenities: Community Pool, Tennis Court
Invitation Homes is an equal housing lessor under the FHA. Applicable local, state and federal laws may apply. Additional terms and conditions apply. This listing is not an offer to rent. You must submit additional information including an application to rent and an application fee. All leasing information is believed to be accurate, but changes may have occurred since photographs were taken and square footage is estimated. Furthermore, prices and dates may change without notice. Every approved applicant must confirm the status of pet(s) in their home through and pay applicable pet registration fees prior to the execution of the final lease agreement. See InvitationHomes website for more information.
Beware of scams: Employees of Invitation Homes will never ask you for your username and password. Invitation Homes does not advertise on Craigslist, Social Serve, etc. We own our homes; there are no private owners. All funds to lease with Invitation Homes are paid directly through our website, never through wire transfer or payment app like Zelle, Pay Pal, or Cash App.
For more info, please submit an inquiry for this home. Applications are subject to our qualification requirements. Additional terms and conditions apply. CONSENT TO CALLS & TEXT MESSAGING: By entering your contact information, you expressly consent to receive emails, calls, and text messages from Invitation Homes including by autodialer, prerecorded or artificial voice and including marketing communications. Msg & Data rates may apply. You also agree to our Terms of Use and our Privacy Policy.
Unit
- $2,330 / month
- 4 Beds
- 2.5 Baths
- 2459 sq. ft.
- Available Now
Home Features
- Deck
- Fireplace
- Hardwood Floors
Community Features
- Garages
- Tennis Court
1818 Babbling Brook NW is located in Acworth, Georgia in the 30102 zip code.
Rental Fees and Pet Policies
The fees below are based on community-supplied data and may exclude additional fees and utilities.
Utilities & Essentials
- Utility Billing Service Fee$9.95 / mo
- Air Filter Delivery Fee$9.95 / mo
- Smart Home with video doorbell$40 / mo
- Internet & Media$85 / mo
- Garage
Cats
- Cats Allowed
Dogs
- Dogs Allowed
Explore Commute Options
- Drive Time--
- Walk Time--
- Bike Ride Time--
- Public Transit--

Get In Touch
Acworth, GA 30102

Neighborhood Scores
Bike Score ®
Somewhat Bikeable13 / 100
Soundscore ™
Calm91 / 100
Local Education
Primary and Secondary Schools
Pitner Elementary School
Grades PK-5
Public
Palmer Middle School
Grades 6-8
Public
North Cobb High School
Grades 9-12
Public
Cornerstone Preparatory Academy
Grades K-12
Private
Shiloh Hills Christian School
Grades PK-12
Private
Data provided by GreatSchools.org 2024 © 2024. All rights reserved.
Colleges and Universities
School
Commute Time (Distance)
Kennesaw State University
Drive: 12 min (5.7 mi)
Chatt. Tech, North Metro
Drive: 16 min (7 mi)
Chatt. Tech, Mountain View
Drive: 23 min (11.9 mi)
Chatt. Tech, Marietta
Drive: 23 min (13.2 mi)
Discover Kennesaw, Acworth, GA
Airports
Living in Kennesaw provides easy access to Hartsfield - Jackson Atlanta International, located just 53 minutes from 1818 Babbling Brook NW.




