1673 Virgil Pond Ln, Loganville, GA 30052
What This House Offers
Lease this home and get more from Invitation Homes professional property management. This home comes fully loaded with quality amenities, must-have services,... high-end tech and ProCare® professional maintenance. Your estimated total monthly payment is $2154.90. That covers your base rent, $2010.00 + our required services designed to make your life easier: Air Filter Delivery Fee ($9.95), Internet & Media ($85), Smart Home with video doorbell ($40), and Utility Billing Service Fee ($9.95). Base rent varies based on selected lease term.
This is the house you've been looking for. It's welcoming, stylish and comfortable. A breathtaking entryway and a functional design all come together to make a comfortable interior ready for you to transform it into your ideal home. Luxury vinyl plank flooring runs throughout the home's living area. The living area gives you plenty of space for a dining room and entertainment area. The comfortable kitchen space is complemented with sleek countertops, premium cabinets, and coordinating appliances. Meal times and household gatherings will be even sweeter in this kitchen space you can make your own. When you're ready to relax, stretch out in the fenced backyard and soak up some sun. Apply online now!
At Invitation Homes, we offer pet-friendly, yard-having homes for lease with Smart Home technology in awesome neighborhoods across the country. Live in a great house without the headache and long-term commitment of owning. Discover your dream home with Invitation Homes.
To make your leasing lifestyle as hassle-free as possible, every Invitation Homes lease requires a subscription to our Lease Easy bundle. You’ll enjoy more convenience and control with standard services that may include air filter delivery, utility management, and Smart Home with video doorbell. Want to take easy to the next level? Lawn care and pest control are also available.
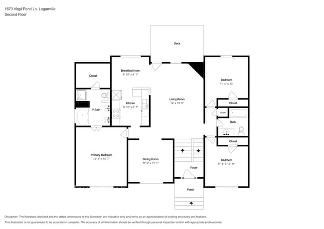
Home Features and Amenities: Air Conditioning, Bonus Room, Breakfast Nook, Deck, Fenced Yard, Garage, Long Lease Terms, Pet Friendly, Smart Home, Tile, W/D Hookups, and professionally managed by Invitation Homes.
This Invitation Home is currently being renovated, but it will be available soon. You can still apply – contact us for more details or apply now.
Invitation Homes is an equal housing lessor under the FHA. Applicable local, state and federal laws may apply. Additional terms and conditions apply. This listing is not an offer to rent. You must submit additional information including an application to rent and an application fee. All leasing information is believed to be accurate, but changes may have occurred since photographs were taken and square footage is estimated. Furthermore, prices and dates may change without notice. Every approved applicant must confirm the status of pet(s) in their home through and pay applicable pet registration fees prior to the execution of the final lease agreement. See InvitationHomes website for more information.
Beware of scams: Employees of Invitation Homes will never ask you for your username and password. Invitation Homes does not advertise on Craigslist, Social Serve, etc. We own our homes; there are no private owners. All funds to lease with Invitation Homes are paid directly through our website, never through wire transfer or payment app like Zelle, Pay Pal, or Cash App.
For more info, please submit an inquiry for this home. Applications are subject to our qualification requirements. Additional terms and conditions apply. CONSENT TO CALLS & TEXT MESSAGING: By entering your contact information, you expressly consent to receive emails, calls, and text messages from Invitation Homes including by autodialer, prerecorded or artificial voice and including marketing communications. Msg & Data rates may apply. You also agree to our Terms of Use and our Privacy Policy.
Unit
- $2,010 / month
- 4 Beds
- 2 Baths
- 1572 sq. ft.
- Available Now
Home Features
- Breakfast Nook
- Deck
Community Features
- Fenced Lot
- Garages
1673 Virgil Pond Ln is a single-family home for rent in Loganville, GA
Fees and Policies
The fees below are based on community-supplied data and may exclude additional fees and utilities.
Utilities & Essentials
- Smart Home with video doorbell$40 / mo
- Utility Billing Service Fee$9.95 / mo
- Air Filter Delivery Fee$9.95 / mo
- Internet & Media$85 / mo
- Garage
Cats
- Cats Allowed
Dogs
- Dogs Allowed
Property Fee Disclaimer Based on community-supplied data and independent market research. Subject to change without notice. May exclude fees for mandatory or optional services and usage-based utilities.
Explore Commute Options
- Drive Time--
- Walk Time--
- Bike Ride Time--
- Public Transit--

Get In Touch
Loganville, GA 30052

Area Scores
Walkability
Not walkable10 / 100
Driveability
Exceptionally drivable90 / 100
Bikeability
Somewhat bikeable20 / 100
Soundscore ™
Calm90 / 100
Local Education
Primary and Secondary Schools
Rosebud Elementary School
Grades PK-5
Public
Grace Snell Middle School
Grades 6-8
Public
Faith Academy
Grades 9-12
Private
South Gwinnett High School
Grades 9-12
Public
Pentecostal Lighthouse
Grades PK-12
Private
Data provided by GreatSchools.org © 2026. All rights reserved.
Colleges and Universities
School
Commute Time (Distance)
Georgia Gwinnett College
Drive: 27 min (13.4 mi)
Discover Outer Gwinnett County, Loganville, GA
Parks and Recreation
Recreational activities near 1673 Virgil Pond Ln are plentiful. Discover 1 park within 4.5 miles, including Lenora Park.
Airports
Living in Outer Gwinnett County provides easy access to Hartsfield - Jackson Atlanta International, located just 59 minutes from 1673 Virgil Pond Ln.
Find More Rentals in Loganville
- Houses with Pets Allowed in Loganville
- Affordable Houses for Rent in Loganville
- Modern Homes for Rent in Loganville
- Houses for Rent with Pool in Loganville
- Houses for Rent with a Yard in Loganville
- Homes for Rent with a Garage in Loganville
- Houses for Rent with Fireplace in Loganville
- Houses for Rent with a Patio in Loganville
- Houses for Rent with Washer and Dryer in Loganville
- Houses for Rent with Utilities Paid in Loganville




