819 W Walnut Ave, Gastonia, NC 28052
What This House Offers
SPLIT THE PAYMENT! Reserve your new home by paying 50% of your security deposit now, with the remaining balance due before move-in.
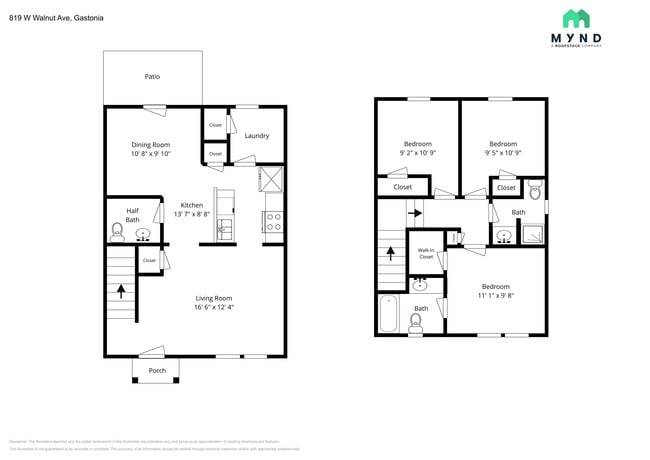
Welcome to 819 W Walnut... Ave, a charming 3-bedroom, 2-bath residence featuring 1222 square feet of comfortable living space. You’ll appreciate the modern and elegant layout, highlighted by a bright dining and living area adorned with soft-toned paint. The kitchen is well-appointed with a center island, ample countertops, white cabinetry, and updated stainless steel appliances. The primary bedroom boasts a walk-in closet and an en-suite bathroom. Step outside to enjoy the open backyard, perfect for relaxation and entertaining. This home also includes a 2-car garage and washer and dryer hookups. Conveniently located near shopping and dining, with easy access to I-85. Apply today to call this great property home!
_____
RENT WITH MYND
-Fast Online Application (valid for 30 days)
-Mobile App to Pay Rent and Track Services
-Affordable Renter's Insurance
Enjoy lightning-fast 1-gig internet for just $67.49/month — Available at move in!
1. No data caps
2. No installation or hidden fees
3. All equipment included
Service provided through Charter and facilitated through Second Nature.
Lease term: 12 or 18 months available. Please Inquire with the Leasing Associate.
Section 8 vouchers accepted
ONE-TIME FEES
Non-refundable $59.00 Application Fee Per Adult
One Time Move In Fee $199
REQUIRED MONTHLY CHARGES*
$1745.00: Base Rent
$39.95/month: Residents Benefits Package provides residents with on-demand basic pest control, as-needed HVAC air filter delivery, Identity Theft Protection, and access to an exciting rewards program
*Estimated required monthly charges do not include the required costs of utilities or rental insurance, conditional fees including, but not limited to, pet fees, or optional fees. See our website for more information:
CONDITIONAL FEES
This is a pet-friendly property! 3 Pets Max; Pet Move-In Fee $199 per pet; Pet Rent per pet varies based on Paw Score. Breed restrictions apply. All pets must be registered at Please visit our website for details
You can reach us directly at , or call , or text for more information.
Mynd Property Management
Equal Opportunity Housing
License # C31492
www.mynd.co
Mynd Property Management does not advertise on Craigslist or Facebook Marketplace. We will never ask you to wire money or pay with gift cards. Please report any fraudulent ads to your Leasing Associate. Federal Occupancy Guidelines: 2 per bedroom + 1 additional occupant; 2 per studio. Please contact us for move-in policy and available move-in date.
Unit
- $1,745 / month
- 3 Beds
- 2.5 Baths
- 1222 sq. ft.
- Available Now
Home Features
- Air Conditioning
- Washer/Dryer Hookup
819 W Walnut Ave is located in Gastonia, North Carolina in the 28052 zip code.
Rental Fees and Pet Policies
The fees below are based on community-supplied data and may exclude additional fees and utilities.
Cats
- Cats Allowed
Dogs
- Dogs Allowed
Explore Commute Options
- Drive Time--
- Walk Time--
- Bike Ride Time--
- Public Transit--

Get In Touch
Gastonia, NC 28052

Neighborhood Scores
Walk Score ®
Car-Dependent41 / 100
Bike Score ®
Somewhat Bikeable38 / 100
Travel and Transit


Local Education
Primary and Secondary Schools
Bessemer City Central Elementary
Grades 3-5
Public
Bessemer City Primary
Grades PK-2
Public
W P Grier Middle School
Grades 6-8
Public
St. Michael's Catholic School
Grades PK-8
Private
Ashbrook High
Grades 9-12
Public
Victory Christian Academy
Grades PK-12
Private
Data provided by GreatSchools.org 2024 © 2024. All rights reserved.
Colleges and Universities
School
Commute Time (Distance)
Belmont Abbey College
Drive: 17 min (10.4 mi)
Discover Outlying Gaston County, Gastonia, NC
Shopping Centers
Shoppers will appreciate 819 W Walnut Ave proximity to Delta Shopping Center, Union Road Business Center, and Water Tower Place. Delta Shopping Center is 1.8 miles away, and Union Road Business Center is within a 35 minute walk.
Parks and Recreation
Recreational activities near 819 W Walnut Ave are plentiful. Discover 1 park within 3.1 miles, including Schiele Museum of Natural History.
Airports
Living in Outlying Gaston County provides easy access to Charlotte/Douglas International, located just 33 minutes from 819 W Walnut Ave. Another nearby airport is Concord-Padgett Regional, located 34.2 miles away.




