
2 Iona St, Ottawa, ON K1Y 0V1
What This Townhouse Offers
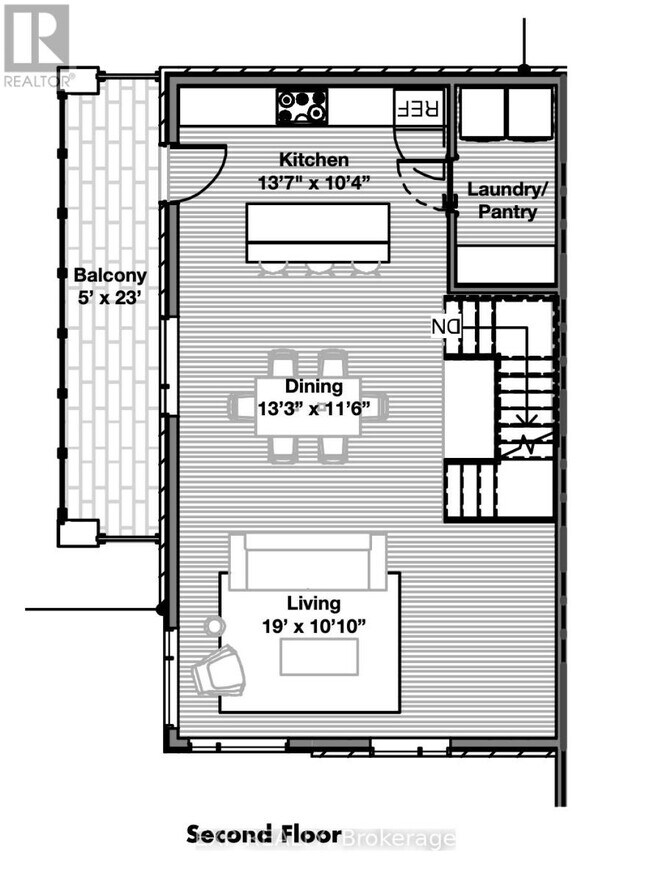
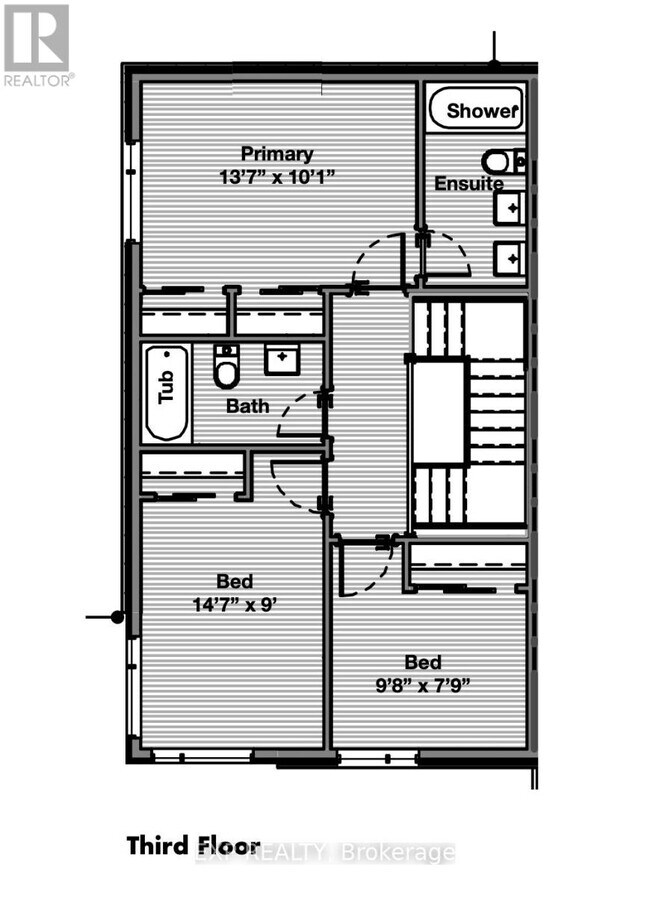
Brand-new executive townhome for rent in the heart of Wellington Village offering over 2,000 sq. ft. of beautifully designed living space across three storeys... plus a fully finished basement and attached garage. The main level features a spacious tiled foyer with double closets and inside access to the garage,along with a bright bedroom or home office and a convenient 3-piece bath. The second level boasts an open-concept kitchen,living and dining area flooded with natural light,complete with a large centre island,quartz countertops,stainless steel appliances,an oversized walk-in pantry with laundry,and access to an impressive 5' x 20' private balcony. The third floor offers a generous primary suite with double closets and an ensuite bath,plus two additional bedrooms and a full bathroom. The fully finished basement provides a bright rec room and finished storage space. Ideally located steps to Fisher Park and Elmdale Public School,minutes to the shops and restaurants along Wellington Street West,walking distance to the Tunney's Pasture O-train station,with quick access via the Harmer Avenue Footbridge to the Civic Hospital and the Experimental Farm,and easy Highway 417 access for seamless commuting-an exceptional opportunity to enjoy modern living in one of Ottawa's most sought-after neighbourhoods. (id:63800) ID#: 1893553
Unit
- $4,995 / month
- 4 Beds
- 3 Baths
- Available Now
Townhome Features
- Air Conditioning
2 Iona St is located in Ottawa, in the K1Y 0V1 zip code.
Rental Fees and Pet Policies
The fees below are based on community-supplied data and may exclude additional fees and utilities.
No Pets Allowed
Explore Commute Options
- Drive Time--
- Walk Time--
- Bike Ride Time--
- Public Transit--
Get In Touch
Neighbourhood Scores
Walk Score ®
Very Walkable84 / 100
Transit Score ®
Excellent Transit76 / 100
Bike Score ®
Biker's Paradise100 / 100
Local Education
Colleges and Universities
School
Commute Time (Distance)
Carleton University
Drive: 8 min (5.4 km)
Saint Paul University
Drive: 9 min (6 km)
University of Ottawa
Drive: 9 min (6.4 km)
Algonquin College
Drive: 11 min (9 km)
Discover Westboro, Ottawa, ON
Shopping Centers
Shoppers will appreciate 2 Iona St proximity to Rue Wellington, Westgate Shopping Centre, and Hampton Park Plaza. Rue Wellington is 0.9 kilometers away, and Westgate Shopping Centre is within a 17 minute walk.
Commuting
With a TransitScore of 76, 2 Iona St has excellent transit, including 8 transit stops within 59.2 kilometers. Transit options include Tunney's Pasture and Corso Italia.
Airports
Living in Westboro provides easy access to Ottawa International, located just 17 minutes from 2 Iona St.
Nearby Properties You Might Like
Within 80 Kilometers of 2 Iona St










