
3015 Sandwich St., Windsor, ON N9C 1A5
What This Apartment Offers
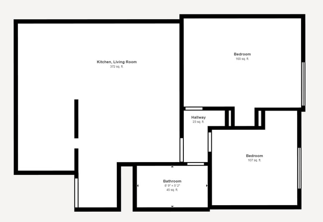
Unit 508 | 2 Bed | 1 Bath | $1,800/Month (All-Inclusive)
If you are looking for more space than your average apartment near the University of Windsor, Unit 508... is the one to see. This is the largest layout in the building and was formerly the home of the building's maintenance lead, meaning it's been kept in solid working order and has a few extra functional updates you won't find in other units.
The Space:
The Biggest Layout: You get a massive living room and dining area (over 370 sq. ft.) with original parquet flooring. Space is much larger than the newer, cramped condos in the city.
Practical Kitchen: Features a functional galley-style kitchen with updated tiling and a pass-through window so you don't feel closed off.
Updated Bathroom: Includes a refreshed vanity and tiled shower/tub combo.
Real-Sized Bedrooms: Two genuine bedrooms with plenty of closet space—no "micro-rooms" here.
Location & Perks:
UofW Proximity: Located on Sandwich Street, you are just minutes away from the University of Windsor. Perfect for students or staff who want to skip the long commute.
The Maintenance Edge: Since this unit belonged to the guy who kept the building running, it's been better looked after than most.
Simple Monthly Budget:
Rent is $1,800/month, and that includes everything. Your heat, hydro, and water are all covered in one price. No surprise utility bills or separate accounts to set up.
If you value square footage and a simple "all-in" price over a fancy lobby, this is the best value in the building.
Contact us today to book a viewing.
3015 Sandwich St: Well maintained apartment building offering 1 bedroom and 1 bath units in Sandwich Town. Close to the University of Windsor, the waterfront Ambassador Bridge and downtown Windsor. Super clean building with onsite maintenance, elevator, main floor laundry room and access to the parking lot. Freshly painted walls, parquet wood and ceramic tile floors. Kitchen has wood cabinets, appliances (fridge/stove) and eating area. Spacious living room with glass door wall to balcony for outdoor enjoyment. Queen size bedroom and four piece white bathroom. Entry closet and linen closet for storage. All utilities are included; heat, water/sewage and electricity. Onsite parking, cat friendly and this is a secure building. This is a five storey building with availability on each floor on a first come first serve basis.
Unit 508
- $1,800 / month
- 2 Beds
- 1 Bath
- 800 sq. ft.
- Available Now
3015 Sandwich St. Unit 508 is located in Windsor, in the N9C 1A5 zip code.
Rental Fees and Pet Policies
The fees below are based on community-supplied data and may exclude additional fees and utilities.
One-Time Basics
Explore Commute Options
- Drive Time--
- Walk Time--
- Bike Ride Time--
- Public Transit--
Get In Touch
Windsor, ON N9C 1A5
Neighbourhood Scores
Walk Score ®
Very Walkable72 / 100
Transit Score ®
Some Transit47 / 100
Bike Score ®
Very Bikeable75 / 100
Travel and Transit




Local Education
Colleges and Universities
School
Commute Time (Distance)
University of Windsor
Drive: 3 min (2 km)
Wayne County C.C., Downtown
Drive: 10 min (7.8 km)
Wayne State University
Drive: 13 min (10.1 km)
College of Creative Studies
Drive: 13 min (10.7 km)
Discover Windsor, ON
Shopping Centers
Shoppers will appreciate 3015 Sandwich St. Unit 508 proximity to Ambassador Plaza and University Plaza. Ambassador Plaza is 2.6 kilometers away, and University Plaza is within a 36 minute walk.
Commuting
With a TransitScore of 47, 3015 Sandwich St. Unit 508 has some transit, including 10 transit stops within 36.9 kilometers. Transit options include Fort/Cass and West Riverfront.
Parks and Recreation
Recreational activities near 3015 Sandwich St. Unit 508 are plentiful. Discover 5 parks within 6.4 kilometers, including Motor Cities National Heritage Area, Hart Plaza, and Campus Martius Park.
Airports
Living in Windsor provides easy access to Windsor International, located just 22 minutes from 3015 Sandwich St. Unit 508. Another nearby airport is Detroit Metro Wayne County, located 36.5 kilometers away.
Nearby Properties You Might Like
Within 80 Kilometers of 3015 Sandwich St. Unit 508









