
2828 SW Juniper Ave, Redmond, OR 97756
What This Townhouse Offers
SCHEDULE A TOUR TO VIEW THIS SPACIOUS TOWNHOME IN REDMOND!!
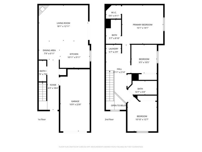
This 3 bedroom 2.5 bath townhouse features:
- Attached garage
- Hard surfaced flooring throughout... most of home, carpet upstairs
- Open lower floor plan
- Gas Fireplace
- Washer/Dryer
Terms: 12-month lease
County: Deschutes
Pet Policy: One dog, under 60lbs will be considered with increased security deposit of $500 and monthly pet rent of $50. Pet approval is subject to breed restrictions and a pet screening fee of $35. No cats, please.
Special terms: Proof of renter's insurance is required prior to start of and throughout tenancy. Strict no smoking or vaping policy applies to this property. Waterbeds, hot tubs, trampolines, and aquariums are strictly prohibited. Residents must use a protective mat under the barbecue to prevent damage to the ground.
Parking: Attached garage, up to 2 vehicles
Vehicle Restrictions: No RV, boat, or trailer
Year Built: 2004
Utilities Included in Rent: Water, Sewer, & Garbage
Utilities Paid by Tenant: Electric & Gas
Landscaping: Included
Appliances: Dishwasher, Electric Range, Refrigerator, Microwave, & Washer/Dryer
HOW TO APPLY: We screen applicants on a first-come, first-serve basis. We ask that all potential tenants see the property before applying. All applicants must submit a profile with application. **Rent must begin within 14 days after being accepted** ** Rent must begin within 14 days after your approval date. **
THIS PROPERTY IS MANAGED BY:
Utopia Management, Inc.
Prices can change regularly at the discretion of landlord. Please contact our office for the most up to date pricing. Information deemed reliable, but not guaranteed.
Unit
- $1,995 / month
- 3 Beds
- 2.5 Baths
- 1250 sq. ft.
- Available Now
SCHEDULE A TOUR TO VIEW THIS SPACIOUS TOWNHOME IN REDMOND!! is located in Redmond, Oregon in the 97756 zip code.
Rental Fees and Pet Policies
The fees below are based on community-supplied data and may exclude additional fees and utilities.
One-Time Basics
Explore Commute Options
- Drive Time--
- Walk Time--
- Bike Ride Time--
- Public Transit--
Neighborhood Scores
Walk Score ®
Car-Dependent22 / 100
Bike Score ®
Somewhat Bikeable49 / 100
Travel and Transit

Local Education
Primary and Secondary Schools
Terrebonne Community School
Grades K-5
Public
Vern Patrick Elementary School
Grades K-5
Public
WestSide Christian Academy
Grades PK-3
Private
Obsidian Middle School
Grades 6-8
Public
Redmond High School
Grades 9-12
Public
Ridgeview High School
Grades 9-12
Public
Central Christian School
Grades PK-12
Private
Data provided by GreatSchools.org 2024 © 2024. All rights reserved.
Discover Redmond/North Deschutes County, Redmond, OR
Shopping Centers
Shoppers will appreciate SCHEDULE A TOUR TO VIEW THIS SPACIOUS TOWNHOME IN REDMOND!! proximity to Nolan Town Center, Old Fair District, and Fred Meyer Shopping Center. Nolan Town Center is 0.7 miles away, and Old Fair District is within a 28 minute walk.
Parks and Recreation
Recreational activities near SCHEDULE A TOUR TO VIEW THIS SPACIOUS TOWNHOME IN REDMOND!! are plentiful. Discover 1 park within 3.5 miles, including Cline Falls State Scenic Viewpoint.
Airports
Living in Redmond/North Deschutes County provides easy access to Roberts Field, located just 7 minutes from SCHEDULE A TOUR TO VIEW THIS SPACIOUS TOWNHOME IN REDMOND!!.
Nearby Properties You Might Like






Nearby Properties You Might Like
Within 50 Miles of SCHEDULE A TOUR TO VIEW THIS SPACIOUS TOWNHOME IN REDMOND!!
Find More Rentals in Redmond
Bedrooms
Type of Rental
Redmond Townhomes for Rent by Amenity
Townhomes in your Budget
Find More Rentals Nearby…
Cities
Neighborhoods
Zip Codes
Nearby Properties You Might Like










