3406 Toledo Dr, Killeen, TX 76542
What This Apartment Offers
View 360° virtual tour:
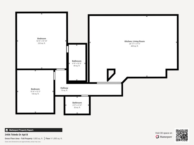
This 2-bedroom, 2-bath duplex offers a functional layout with an attached one-car garage and a nicely sized backyard. The home... features vinyl plank flooring throughout the common areas and carpeted bedrooms for added comfort. The kitchen includes matching appliances, including a dishwasher, along with a breakfast bar and a separate dining area. A dedicated laundry room with washer and dryer connections adds convenience. The primary bedroom features an ensuite bathroom with a soaking tub for added comfort.
Appointments aren't required to tour. Contact us or stop by our Killeen office to learn more and see this home in person once it becomes available! We are located at 1020 W Jasper Drive, Killeen, TX 76542.
Unit Apt B
- $1,075 / month
- 2 Beds
- 2 Baths
- 1117 sq. ft.
- Available Aug 14
3406 Toledo Dr Unit Apt B is an apartment for rent in Killeen, TX
Fees and Policies
The fees below are based on community-supplied data and may exclude additional fees and utilities.
One-Time Basics
Due at Move-In
- Security Deposit - Refundable$1,075
Property Fee Disclaimer Based on community-supplied data and independent market research. Subject to change without notice. May exclude fees for mandatory or optional services and usage-based utilities.
Explore Commute Options
- Drive Time--
- Walk Time--
- Bike Ride Time--
- Public Transit--

Get In Touch
Killeen, TX 76542

Area Scores
Walkability
Fairly walkable40 / 100
Driveability
Exceptionally drivable90 / 100
Bikeability
Somewhat bikeable30 / 100
Travel and Transit
Local Education
Colleges and Universities
School
Commute Time (Distance)
Central Texas College
Drive: 11 min (6 mi)
Discover Killeen/Fort Hood, Killeen, TX
Shopping Centers
Shoppers will appreciate 3406 Toledo Dr Unit Apt B proximity to First Texas Plaza, Gateway Plaza, and Plaza KBS. First Texas Plaza is 0.5 miles away, and Gateway Plaza is within an 11 minute walk.
Parks and Recreation
Recreational activities near 3406 Toledo Dr Unit Apt B are plentiful. Discover 2 parks within 4.5 miles, including Conder Park and Killeen Athletic Complex.
Airports
Living in Killeen/Fort Hood provides easy access to Killeen Municipal, located just 11 minutes from 3406 Toledo Dr Unit Apt B. Another nearby airport is Robert Gray AAF, located 8.8 miles away.
Find More Rentals in Killeen
- Pet-Friendly Apartments in Killeen
- Furnished Apartments in Killeen
- Apartments with a Pool in Killeen
- Apartments with Wheelchair Access in Killeen
- Apartments with Washer & Dryer in Killeen
- Apartments with Utilities Included in Killeen
- Apartments with a Garage in Killeen
- Apartments with EV Charging in Killeen
- Apartments with a Virtual Tour in Killeen
- Rooms for Rent in Killeen
- Killeen Move-in Specials
- Cheap Apartments in Killeen
- Luxury Apartments in Killeen
- Apartments under $700 in Killeen
- Apartments under $900 in Killeen
- Apartments under $1000 in Killeen
- Apartments under $1500 in Killeen
- Apartments under $2000 in Killeen
- Apartments under $2500 in Killeen




