15207 E Mission Ave, Spokane Valley, WA 99037
What This House Offers
Move-In Ready | CVSD Schools | STA Bus Route | 1,720 Sq Ft
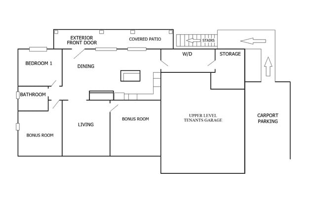
Spacious (see photos for layout) 2-bedroom, 1-bath lower-level duplex in Spokane Valley offering 1... ,720 sq ft of living space. Located within the CVSD school district and conveniently situated near the STA bus route.
The duplex/home sits on a large, semi-private lot with no rear neighbors and includes a large grass backyard, off-street parking, and a 1-car covered carport. An exterior staircase leads down to a covered patio entrance.
The kitchen is equipped with an electric stove, dishwasher, and refrigerator. A generous laundry room offers washer and dryer hookups (tenant provides washer/dryer) along with extra storage. Lawn care is included.
Recently renovated with new flooring and fresh paint, this home is clean and well-maintained with easy access to the freeway and nearby services.
No pets. 3x income and 620 credit score preferred.
12 month lease - $40 Application per adult will include credit, eviction history, criminal background, and employment/income verification. On request we can provide and example of the lease contracts to review upfront. Text to set up a showing prior to application - Thank you - Jeremy
Unit
- $1,200
Total Monthly Price 12 Month Lease
- 2 Beds
- 1 Bath
- 1720 sq. ft.
- Available Feb 28
Home Features
- Cable Ready
- Dishwasher
- Heating
- Kitchen
- Lawn
- Patio
- Refrigerator
- Sprinkler System
- Storage Units
- Tub/Shower
- Washer/Dryer Hookup
Community Features
- Laundry Facilities
- Utilities Included
15207 E Mission Ave is located in Spokane Valley, Washington in the 99037 zip code.
Rental Fees and Pet Policies
The fees below are based on community-supplied data and may exclude additional fees and utilities.
No Pets Allowed
Parking
- Covered--
Explore Commute Options
- Drive Time--
- Walk Time--
- Bike Ride Time--
- Public Transit--
Get In Touch
Spokane Valley, WA 99037
Neighborhood Scores
Walk Score ®
Car-Dependent42 / 100
Transit Score ®
Some Transit38 / 100
Bike Score ®
Bikeable53 / 100
Soundscore ™
Active70 / 100
Travel and Transit

Local Education
Colleges and Universities
School
Commute Time (Distance)
Spokane Community College
Drive: 16 min (9.1 mi)
WSU - Spokane
Drive: 16 min (11.2 mi)
Gonzaga University
Drive: 18 min (11.4 mi)
Discover Veradale, Spokane Valley, WA
Shopping Centers
Shoppers will appreciate 15207 E Mission Ave proximity to Spokane Valley Plaza, Gesa Center, and Hanson Center Market Pointe II. Spokane Valley Plaza is 0.5 miles away, and Gesa Center is within a 9 minute walk.
Commuting
With a TransitScore of 38, 15207 E Mission Ave has some transit, including 1 transit stop within 11.7 miles. Transit options include Spokane.
Airports
Living in Veradale provides easy access to Spokane International, located just 24 minutes from 15207 E Mission Ave.




