
7789 Mockingbird Dr, Mohave Valley, AZ 86440
What This House Offers
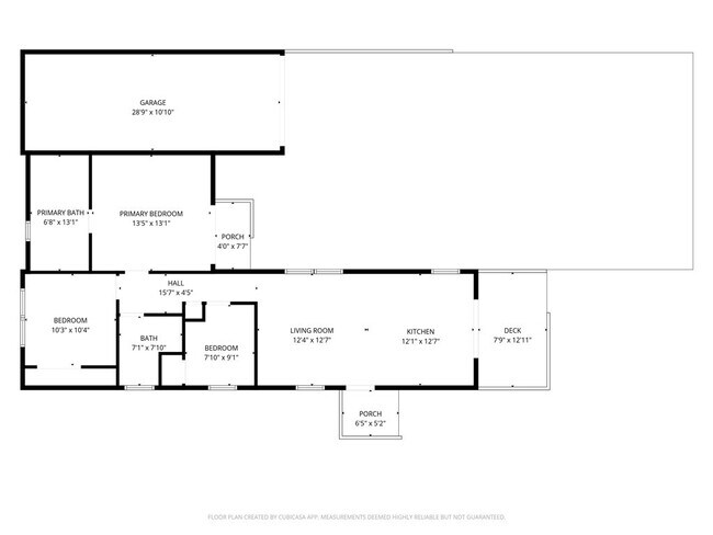
For Rent. Just bring your suitcase and settle in. Wake up to the sound of birds singing in this peaceful and quiet neighborhood. This fully furnished home... offers a relaxing setting with resort-style comfort on an affordable scale. The property features 3 bedrooms and 2 full baths,including a primary suite with a separate shower and a jetted soaking tub. Built in 1988,the home has been well cared for and is exceptionally clean. Move right in because everything is ready. The home comes complete with newer furniture,a comfortable bed and sofa,TV,washer and dryer,newer refrigerator,dishes,pots and pans,and towels. Super comfortable. Perfect for a traveling professional or anyone needing a comfortable,longer-term rental (7 months or more). Previously used as a vacation rental,this home is now available for extended stays and offers a wonderful balance of comfort,privacy,and convenience. Please note: 2 parking spots on driveway are available. Garage is not part of the lease at this time. Property is also being offered as a vacation rental but not for this price and not with this brokerage.
Unit
- 3 Beds
- 2 Baths
- 952 sq. ft.
- Available Now
Home Features
- Furnished
7789 Mockingbird Dr is located in Mohave Valley, Arizona in the 86440 zip code.
Explore Commute Options
- Drive Time--
- Walk Time--
- Bike Ride Time--
- Public Transit--
Get In Touch
Mohave Valley, AZ 86440

Information provided on this website is not intended for legal or professional advise. The information provided is subject to change without notice. We are not affiliated with websites which we provide links to with the exception of the WARDEX MLS. Copyright © 2026. All Rights Reserved.
Neighborhood Scores
Walk Score ®
Car-Dependent3 / 100
Bike Score ®
Somewhat Bikeable25 / 100
Travel and Transit


Local Education
Primary and Secondary Schools
Family Of God Lutheran School & Little Lambs Ps
Grades PK-4
Private
Mohave Valley Junior High School
Grades 6-8
Public
Camp Mohave Elementary School
Grades K-8
Public
Fort Mohave Elementary School
Grades PK-8
Public
Cruhsd Academy
Grades 9-12
Public
River Valley High School
Grades 9-12
Public
Needles Assembly Of God Christian School
Grades 1-12
Private
Data provided by GreatSchools.org 2024 © 2024. All rights reserved.
Discover Mohave Valley, AZ
Airports
Living in Mohave Valley provides easy access to Laughlin/Bullhead International, located just 39 minutes from 7789 Mockingbird Dr.
Nearby Properties You Might Like
Within 50 Miles of 7789 Mockingbird Dr


Desert Bay Apartments

The Villas at South Pointe
12 Month Lease

The Vistas Apartment Homes

Canyon Walk Apartment Homes





