Qué ofrece este apartamento
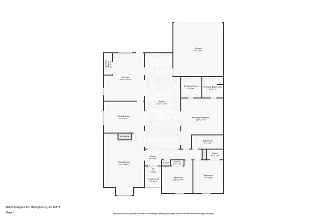
LISTA PARA MUDARSE Esta casa está lista para mudarse. Programe su recorrido ahora o comience su solicitud hoy. Tarifas mensuales recurrentes: $25.00 -... Mantenimiento séptico $10.95 - Administración de servicios públicos Maymont Homes se compromete a ofrecer precios claros y por adelantado. Además del alquiler anunciado, los residentes pueden tener tarifas mensuales, que incluyen una tarifa de administración de servicios públicos de $10.95, una tarifa de aguas residuales de $25.00 para hogares con sistemas sépticos y una tarifa de servicios para hogares con tecnología de hogar inteligente, servicio de recolección de basura u otras comodidades comunitarias. Esto no incluye servicios públicos ni tarifas opcionales, que incluyen, entre otras, tarifas por mascotas y seguro para inquilinos. Escondida en un tranquilo vecindario de Montgomery, esta casa de ladrillo de 3 habitaciones y 2 baños le da la bienvenida con un atractivo exterior atemporal y árboles maduros que enmarcan su fachada clásica. Su distribución de un solo nivel ofrece comodidad y facilidad, mientras que los detalles de diseño bien pensados añaden calidez en todo. En el interior, una espaciosa sala de estar se abre con una suave luz natural y tonos neutros, creando el escenario para una vida cómoda. La cocina destaca por su amplia encimera, una isla central de cocción y gabinetes blancos con pisos resistentes, perfectos para cocinar a diario o para reuniones informales. Los electrodomésticos incluyen refrigerador, lavavajillas y hornos dobles, lo que le proporciona todo lo necesario para preparar sus comidas fácilmente. Cada dormitorio ofrece amplio espacio y amplios armarios, además de dos baños completos diseñados para su comodidad. La suite principal incluye un baño privado con posibilidad de dos lavabos y combinación de bañera y ducha. La casa también cuenta con un garaje para dos autos, ideal para estacionar o para almacenamiento adicional, lo que aumenta su funcionalidad diaria. En la parte trasera, un patio sombreado y un pequeño patio de ladrillo crean un espacio exterior versátil, ideal para relajarse bajo los árboles o crear un sencillo rincón de jardín. Ubicada a solo minutos del Centro Comercial EastChase y a un corto trayecto en coche del centro de Montgomery, esta casa combina la comodidad de un suburbio con un cómodo acceso a la ciudad. ¡No pierda la oportunidad, solicite ahora! *Maymont Homes ofrece a los residentes soluciones convenientes, que incluyen facturación simplificada de servicios públicos y opciones flexibles de pago de alquiler. Contáctenos para obtener más información. Esta información se considera confiable, pero no está garantizada. Todas las medidas son aproximadas. Las especificaciones reales del producto y de la casa pueden variar en dimensiones o detalles. Las imágenes son solo para fines ilustrativos. Es posible que algunos programas y servicios no estén disponibles en todas las áreas del mercado. Los precios y la disponibilidad están sujetos a cambios sin previo aviso. Los precios de alquiler anunciados no incluyen la tarifa de solicitud requerida, la tarifa de reserva parcialmente reembolsable (que se abona al aprobar la solicitud) ni la tarifa mensual obligatoria de administración de servicios públicos (en áreas de mercado seleccionadas). Los residentes deben mantener un seguro de inquilinos según lo especificado en su contrato de arrendamiento. Si no se proporciona un seguro de inquilinos de terceros, los residentes se inscribirán automáticamente en nuestra Póliza Maestra de Seguros por una tarifa. Algunas viviendas pueden estar ubicadas en comunidades que requieren una tarifa mensual para las comodidades o servicios específicos de la comunidad. Para obtener más información, comuníquese con un representante de arrendamiento de la empresa. Igualdad de oportunidades de vivienda. La fecha estimada de disponibilidad está sujeta a cambios según los plazos de construcción y la confirmación de la mudanza. Esta propiedad permite visitas autoguiadas sin cita previa. Contáctenos para obtener más información.
Unidad
- $1,760 / Mes
- 3 Habitaciones
- 2 Baños
- 2368 sq. ft.
- Disponibilidad Ahora
2653 Crossgate Trail se encuentra en County en el código postal .
Tarifas de alquiler y política de mascotas
Las siguientes cuotas se basan en información proporcionada por la comunidad y es posible que no incluyan cuotas adicionales o servicios básicos.
Perros
- Pet Rent$35 / mes
Gatos
- Pet Rent$35 / mes
Complementos personalizados
- Application Fee$55 por única vez
- Holding Deposit$550 por única vez
- Security Deposit$1,760 por única vez
- Utilities Setup Fee$25 por única vez
- Utilities Monthly Fee$10.95 por única vez
- Septic Fee$25 por única vez
- Pet Screening Fee$25 por única vez
Explorar opciones de viaje
- En Coche--
- Caminando--
- En Bicicleta--
- Tránsito público--

Póngase en contacto
Montgomery, AL 36117

Calificaciones de los barrios
Walk Score ®
Car-Dependent45 / 100
Transit Score ®
Minimal Transit15 / 100
Bike Score ®
Somewhat Bikeable40 / 100
Viajes y tránsito
Educación local
Escuelas primarias y secundarias
Dozier Elementary School
Grados Escolares PK-5
Public
The Montessori School
Grados Escolares PK-K
Private
Brewbaker Jr High School
Grados Escolares 6-8
Public
Lighthouse Christian Academy
Grados Escolares PK-8
Private
Jefferson Davis High School
Grados Escolares 9-12
Public
St. James School
Grados Escolares PK-12
Private
Datos de escuelas proporcionados por GreatSchools.org 2024 © 2024. Todos los derechos reservados.
Colegios y Universidades
Escuela
Tiempo de viaje (Distancia)
Auburn Univ. at Montgomery
En coche: 9 min (4.2 mi)
Faulkner University
En coche: 10 min (5.3 mi)
Huntingdon College
En coche: 12 min (6.1 mi)
Alabama State University
En coche: 13 min (6.4 mi)
Descubre a Outer East, Montgomery, AL
Centros Comerciales
Los compradores apreciarán la proximidad de 2653 Crossgate Trail a Bellwood Shoppes, Bell Station Shopping Center y Halcyon Village. Bellwood Shoppes está a 0.3 miles de distancia y Bell Station Shopping Center está a 10 minutos a pie.
Aeropuertos
Vivir en Outer East brinda fácil acceso a Montgomery Regional (Dannelly Field), ubicado a solo 19 minutes de 2653 Crossgate Trail.
Encuentra más alquileres en Montgomery
Casas en Montgomery por comodidades
- Casas en alquiler Mascotas permitidas en Montgomery
- Casas asequibles en alquiler en Montgomery
- Casas totalmente amuebladas en alquiler en Montgomery
- Casas Modern en alquiler en Montgomery
- Casas for Rent with a con jardín in Montgomery
- Casas for Rent with a con garaje in Montgomery
- Casas for Rent with con chimenea in Montgomery
- Casas for Rent with a con patio in Montgomery
- Casas for Rent with con Lavadora y secadora in Montgomery
- Casas for Rent with con servicios pagados in Montgomery




