103 Dale Dr, Jacksonville, AR 72076
Qué ofrece este apartamento
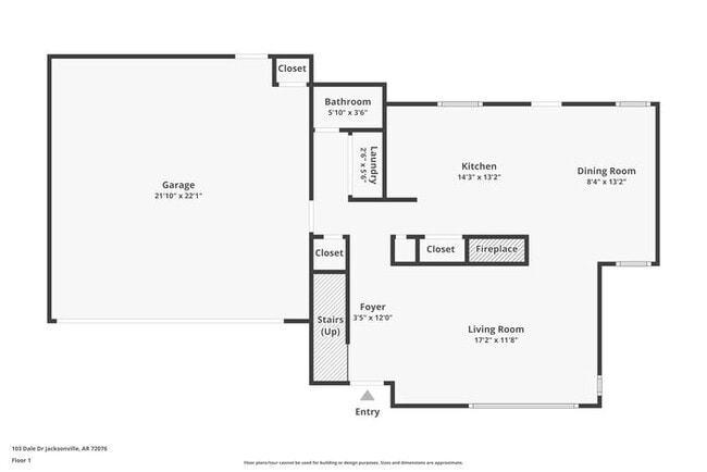
PRÓXIMAMENTE Esta casa estará disponible próximamente. Por favor, verifique la fecha estimada de disponibilidad. Tarifas mensuales recurrentes: $10.95 -... Administración de servicios públicos Ubicada en Jacksonville, esta casa de 3 habitaciones y 1.5 baños ofrece 1,420 pies cuadrados de espacio habitable bien definido con un diseño de varios niveles que crea una separación natural entre las áreas de reunión y las habitaciones privadas. La pintura interior fresca proporciona una sensación limpia y cohesiva en todo el lugar, mientras que una combinación de pisos de baldosas y superficies LVP agrega durabilidad y contraste visual en todo el nivel principal. El primer piso se abre a una amplia sala de estar con techos abovedados y un diseño abierto hacia abajo que brinda luz natural desde arriba. La cocina se conecta fácilmente al comedor y cuenta con pisos de baldosas, amplios gabinetes y un diseño funcional adecuado para el uso diario. Un medio baño y un área de lavandería dedicada en este nivel agregan comodidad, y el garaje adjunto ofrece acceso directo a la casa. Arriba, las tres habitaciones están ubicadas juntas para una disposición optimizada del segundo piso. La recámara principal incluye su propio acceso al baño y armario, mientras que las recámaras adicionales ofrecen un uso flexible para dormir, trabajar o disfrutar de sus hobbies. Los acabados neutros en toda la planta superior permiten que la distribución y la luz natural sean el centro de atención. En la parte trasera, una terraza elevada extiende la sala de estar al aire libre y da a un patio con césped, ofreciendo espacio para relajarse o entretenerse. Convenientemente ubicada cerca de la Base de la Fuerza Aérea de Little Rock, escuelas locales, tiendas y restaurantes, esta casa de Jacksonville combina eficiencia en la distribución, acabados prácticos y accesibilidad al área metropolitana de Little Rock, a aproximadamente 20 minutos. ¡Solicite ahora! *Maymont Homes ofrece a los residentes soluciones convenientes, que incluyen facturación simplificada de servicios públicos y opciones flexibles de pago de alquiler. Contáctenos para más detalles. Esta información se considera confiable, pero no está garantizada. Todas las medidas son aproximadas. Las especificaciones reales del producto y de la casa pueden variar en dimensión o detalle. Las imágenes son solo para fines representativos. Algunos programas y servicios pueden no estar disponibles en todas las áreas del mercado. Los precios y la disponibilidad están sujetos a cambios sin previo aviso. Los precios de alquiler anunciados no incluyen la cuota de solicitud, la cuota de reserva parcialmente reembolsable (que se abona al aprobarse la solicitud) ni la cuota mensual obligatoria de administración de servicios públicos (en ciertas zonas de mercado). Los residentes deben contar con un seguro de inquilinos, según lo especificado en su contrato de arrendamiento. Si no se proporciona un seguro de inquilinos de terceros, los residentes quedarán automáticamente inscritos en nuestra Póliza Maestra de Seguros por una cuota. Algunas viviendas pueden estar ubicadas en comunidades que requieren una cuota mensual para servicios o comodidades específicos de la comunidad. Para obtener más información, comuníquese con un representante de arrendamiento de la empresa. Igualdad de oportunidades de vivienda. La fecha estimada de disponibilidad está sujeta a cambios según los plazos de construcción y la confirmación de la mudanza. Contáctenos para programar una visita.
Unidad
- $1,375 / Mes
- 3 Habitaciones
- 1.5 Baños
- 1420 sq. ft.
- Disponibilidad Ahora
103 Dale Dr se encuentra en County en el código postal .
Tarifas de alquiler y política de mascotas
Las siguientes cuotas se basan en información proporcionada por la comunidad y es posible que no incluyan cuotas adicionales o servicios básicos.
Perros
- Pet Rent$35 / mes
Gatos
- Pet Rent$35 / mes
Complementos personalizados
- Application Fee$55 por única vez
- Holding Deposit$550 por única vez
- Security Deposit$1,375 por única vez
- Pet Screening Fee$25 por única vez
- Utilities Setup Fee$25 por única vez
- Utilities Monthly Fee$10.95 por única vez
Situacional
- Non Refundable Pet Deposit$250 por única vez
Explorar opciones de viaje
- En Coche--
- Caminando--
- En Bicicleta--
- Tránsito público--

Póngase en contacto
Jacksonville, AR 72076

Calificaciones de los barrios
Walk Score ®
Car-Dependent13 / 100
Bike Score ®
Somewhat Bikeable35 / 100
Soundscore ™
Active76 / 100
Viajes y tránsito

Educación local
Escuelas primarias y secundarias
Bayou Meto Elementary School
Grados Escolares PK-5
Public
Westside Elementary School
Grados Escolares PK-4
Public
Jacksonville Middle School
Grados Escolares 6-8
Public
Jacksonville High School
Grados Escolares 9-12
Public
Jacksonville Christian Academy
Grados Escolares PK-12
Private
Datos de escuelas proporcionados por GreatSchools.org 2024 © 2024. Todos los derechos reservados.
Descubre a Jacksonville/Sherwood, Jacksonville, AR
Centros Comerciales
Los compradores apreciarán la proximidad de 103 Dale Dr a Jacksonville Crossing, Jacksonville Plaza: Walmart Shadow Center y Heritage Shopping Center. Jacksonville Crossing está a 1.2 miles de distancia y Jacksonville Plaza: Walmart Shadow Center está a 21 minutos a pie.
Aeropuertos
Vivir en Jacksonville/Sherwood brinda fácil acceso a Bill and Hillary Clinton Ntl/Adams Field, ubicado a solo 23 minutes de 103 Dale Dr.




