Qué ofrece este apartamento
Alquila esta casa y aprovecha al máximo la administración profesional de propiedades de Invitation Homes. Esta casa está completamente equipada con comodidades... de calidad, servicios imprescindibles, tecnología de punta y mantenimiento profesional ProCare®. Tu pago mensual total estimado es de $2008.90. Esto cubre tu renta base, $1949.00 + nuestros servicios obligatorios diseñados para facilitarte la vida: Tarifa de entrega del filtro de aire ($9.95), Casa inteligente con timbre con video ($40) y Tarifa de servicio de facturación de servicios públicos ($9.95). La renta base varía según el plazo de arrendamiento seleccionado. Oferta por tiempo limitado: Recibe $750 de descuento en tu primer mes completo de renta base con un arrendamiento de 24 meses, o $500 de descuento en arrendamientos de menos de 24 meses, más una tarjeta de regalo DoorDash de $200. Esta oferta es válida para casas seleccionadas con una solicitud aprobada. Los precios y las promociones están sujetos a cambios en cualquier momento a nuestra entera discreción. Para obtener un desglose detallado de precios, consulta cada listado. Las tarjetas de regalo se enviarán por correo electrónico dentro de los 30 días posteriores a la mudanza. Dedicar tiempo a ti mismo será aún más fácil en una casa a tu medida. Dale personalidad a esta hermosa casa y te sentirás como en casa. Al entrar, encontrarás un plano abierto, amplias habitaciones, un garaje terminado, elegantes azulejos y lujosos pisos de tablones de vinilo. Disfruta preparando tus comidas en una cocina terminada. Electrodomésticos de acero inoxidable, elegantes encimeras y hermosos gabinetes te brindan un espacio de cocina sin preocupaciones, digno de ti. El patio trasero unifica toda la casa. Y cuando necesites un respiro de aire fresco, sal a un patio trasero cercado con un patio cubierto listo para el brunch. Las comodidades del vecindario incluyen un área de juegos infantiles. ¡Solicita en línea hoy mismo! En Invitation Homes, ofrecemos casas en alquiler que admiten mascotas, con patio y tecnología Smart Home en vecindarios increíbles de todo el país. Vive en una casa fantástica sin los dolores de cabeza ni el compromiso a largo plazo de ser propietario. Descubre la casa de tus sueños con Invitation Homes. Nuestro paquete Lease Easy, que incluye Smart Home, Suministro de Filtros de Aire y Administración de Servicios Públicos, es clave para un estilo de vida sin preocupaciones. Estos servicios son requeridos por su contrato de arrendamiento a un costo mensual adicional. También pueden aplicarse tarifas mensuales por mascotas y piscinas. Características y comodidades de la casa: Aire acondicionado, Sala adicional, Patio cercado, Garaje, Plazos de arrendamiento largos, Tablón de vinilo de lujo, Plano de planta abierto, Patio, Se admiten mascotas, Recámara principal en el nivel principal, Casa inteligente, Electrodomésticos de acero inoxidable, Azulejos, Vestidor, Conexiones para lavadora/secadora y administración profesional de Invitation Homes. Características y comodidades del vecindario: Área de juegos infantiles Invitation Homes es un arrendador de vivienda equitativo bajo la FHA. Pueden aplicarse las leyes locales, estatales y federales aplicables. Se aplican términos y condiciones adicionales. Este listado no es una oferta de alquiler. Debe enviar información adicional, incluyendo una solicitud de alquiler y una tarifa de solicitud. Se cree que toda la información de arrendamiento es precisa, pero pueden haber ocurrido cambios desde que se tomaron las fotografías y los pies cuadrados son estimados. Además, los precios y las fechas pueden cambiar sin previo aviso. Consulte el sitio web de InvitationHomes para obtener más información. Tenga cuidado con las estafas: Los empleados de Invitation Homes nunca le pedirán su nombre de usuario y contraseña. Invitation Homes no se anuncia en Craigslist, Social Serve, etc. Somos propietarios de nuestras casas; no hay propietarios particulares. Todos los fondos para alquilar con Invitation Homes se pagan directamente a través de nuestro sitio web, nunca mediante transferencia bancaria ni aplicaciones de pago como Zelle, PayPal o Cash App. Para más información, envíe una consulta sobre esta casa. Las solicitudes están sujetas a nuestros requisitos de calificación. Se aplican términos y condiciones adicionales. CONSENTIMIENTO PARA LLAMADAS Y MENSAJES DE TEXTO: Al ingresar su información de contacto, usted consiente expresamente recibir correos electrónicos, llamadas y mensajes de texto de Invitation Homes, incluso por marcador automático, voz pregrabada o artificial, e incluso comunicaciones de marketing. Pueden aplicarse tarifas por mensajes y datos. También acepta nuestros Términos de uso y nuestra Política de privacidad.
Unidad
- $2,025 / Mes
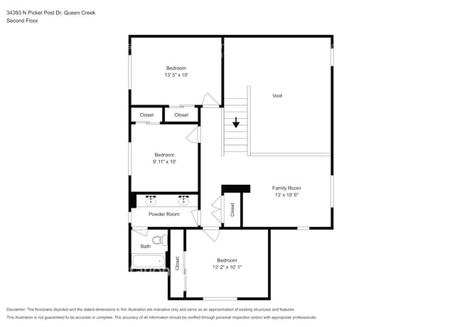
- 4 Habitaciones
- 2.5 Baños
- 1984 sq. ft.
- Disponibilidad Ahora
Comodidades del apartamento
- Patio
- Vestidores
Características de la comunidad
- Garajes
- Recinto cerrado
34393 N Picket Post Dr se encuentra en County en el código postal .
Tarifas de alquiler y política de mascotas
Las siguientes cuotas se basan en información proporcionada por la comunidad y es posible que no incluyan cuotas adicionales o servicios básicos.
Servicios y elementos básicos
- Utility Billing Service Fee$9.95 / mes
- Air Filter Delivery Fee$9.95 / mes
- Smart Home with video doorbell$40 / mes
Elementos básicos por única vez
Explorar opciones de viaje
- En Coche--
- Caminando--
- En Bicicleta--
- Tránsito público--

Póngase en contacto
Queen Creek, AZ 85142

Calificaciones de los barrios
Walk Score ®
Car-Dependent17 / 100
Bike Score ®
Somewhat Bikeable35 / 100
Soundscore ™
Calm84 / 100
Viajes y tránsito

Educación local
Escuelas primarias y secundarias
Skyline Ranch Elementary School
Grados Escolares PK-8
Public
San Tan Foothills High School
Grados Escolares 7-12
Public
Ambassador Christian Academy
Grados Escolares K-12
Private
Freedom Christian Academy
Grados Escolares PK-12
Private
Datos de escuelas proporcionados por GreatSchools.org 2024 © 2024. Todos los derechos reservados.
Colegios y Universidades
Escuela
Tiempo de viaje (Distancia)
Arizona State Univ., Polytech
En coche: 22 min (11.7 mi)
Chandler-Gilbert C.C., Mesa
En coche: 23 min (12.1 mi)
Descubre a San Tan Valley, Queen Creek, AZ
Centros Comerciales
Los compradores apreciarán la proximidad de 34393 N Picket Post Dr a Towne Center at San Tan Heights, Shoppes & Offices at San Tan Heights y Skyline Ranch Marketplace. Towne Center at San Tan Heights está a 0.7 miles de distancia y Shoppes & Offices at San Tan Heights está a 15 minutos a pie.
Parques y Recreación
Las actividades recreativas cerca de 34393 N Picket Post Dr son abundantes. Descubre 1 park dentro de 4 miles, incluido San Tan Mountain Regional Park.
Aeropuertos
Vivir en San Tan Valley brinda fácil acceso a Phoenix-Mesa Gateway, ubicado a solo 20 minutes de 34393 N Picket Post Dr. Otro aeropuerto cercano es Phoenix Sky Harbor International, ubicado a 40.4 miles de distancia.
Encuentra más alquileres en Queen Creek
Casas en Queen Creek por comodidades
- Casas en alquiler Mascotas permitidas en Queen Creek
- Casas asequibles en alquiler en Queen Creek
- Casas totalmente amuebladas en alquiler en Queen Creek
- Casas Modern en alquiler en Queen Creek
- Casas for Rent with con piscina in Queen Creek
- Casas for Rent with a con jardín in Queen Creek
- Casas for Rent with a con garaje in Queen Creek
- Casas for Rent with con chimenea in Queen Creek
- Casas for Rent with a con patio in Queen Creek
- Casas for Rent with con Lavadora y secadora in Queen Creek
- Casas for Rent with con servicios pagados in Queen Creek




