667 E Red House Branch Rd, Saint Augustine, FL 32084
Qué ofrece este apartamento
Alquile esta casa y obtenga más de la administración profesional de propiedades de Invitation Homes. Esta casa viene completamente equipada con comodidades de... calidad, servicios imprescindibles, tecnología de punta y mantenimiento profesional ProCare®. Su pago mensual total estimado es de $3069.90. Esto cubre su renta base, $2925.00 + nuestros servicios obligatorios diseñados para facilitarle la vida: Tarifa de entrega de filtro de aire ($9.95), Internet y medios ($85), Casa inteligente con timbre de video ($40) y Tarifa de servicio de facturación de servicios públicos ($9.95). La renta base varía según el plazo de arrendamiento seleccionado. Haga de esta casa un hogar del que pueda estar orgulloso. Todo lo que necesita está aquí. Sus amigos y familiares expresarán inmediatamente su aprobación cuando entren al elegante vestíbulo que cuenta con pisos de tablones de vinilo de lujo que se extienden por toda la sala de estar. Le encantará la hermosa cocina, completa con electrodomésticos de acero inoxidable, gabinetes de alta gama y encimeras de granito. El patio trasero cercado ofrece más espacio para todos. Ya sea que tenga mascotas que necesiten salir de casa o plantas de exterior que necesiten sol y aire fresco, tendrá la oportunidad de convertir este patio en una extensión ideal de su hogar. ¡Solicite en línea hoy mismo! En Invitation Homes, ofrecemos casas en alquiler que admiten mascotas y cuentan con patio, equipadas con tecnología de hogar inteligente, en vecindarios increíbles en todo el país. Viva en una casa estupenda sin las molestias ni el compromiso a largo plazo de ser propietario. Descubra la casa de sus sueños con Invitation Homes. Nuestro paquete Lease Easy, que incluye hogar inteligente, entrega de filtros de aire y administración de servicios públicos, es una parte clave de su estilo de vida de alquiler sin preocupaciones. Estos servicios son obligatorios según su contrato de arrendamiento y tienen un costo mensual adicional. También pueden aplicarse cargos mensuales por mascotas y piscinas. Características y comodidades de la casa: Aire acondicionado, habitación adicional, porche cubierto, patio cercado, garaje, encimeras de granito, isla de cocina, plazos de arrendamiento largos, tablones de vinilo de lujo, plano de planta abierto, patio, se admiten mascotas, iluminación empotrada, hogar inteligente, electrodomésticos de acero inoxidable, azulejos, vestidor, conexiones para lavadora/secadora y administración profesional a cargo de Invitation Homes. Invitation Homes es un arrendador de vivienda equitativa bajo la FHA. Pueden aplicarse leyes locales, estatales y federales. Se aplican términos y condiciones adicionales. Este anuncio no es una oferta de alquiler. Debe enviar información adicional, incluyendo una solicitud de alquiler y una tarifa de solicitud. Se cree que toda la información de arrendamiento es precisa, pero pueden haber ocurrido cambios desde que se tomaron las fotografías y los metros cuadrados son estimados. Consulte el sitio web de InvitationHomes para obtener más información. Tenga cuidado con las estafas: los empleados de Invitation Homes nunca le pedirán su nombre de usuario y contraseña. Invitation Homes no se anuncia en Craigslist, Social Serve, etc. Somos dueños de nuestras casas; no hay propietarios privados. Todos los fondos para arrendar con Invitation Homes se pagan directamente a través de nuestro sitio web, nunca a través de transferencia bancaria o aplicaciones de pago como Zelle, PayPal o Cash App. Para obtener más información, envíe una consulta sobre esta casa. Las solicitudes están sujetas a nuestros requisitos de calificación. Se aplican términos y condiciones adicionales. CONSENTIMIENTO PARA RECIBIR LLAMADAS Y MENSAJES DE TEXTO: Al ingresar su información de contacto, usted consiente expresamente en recibir correos electrónicos, llamadas y mensajes de texto de Invitation Homes, incluyendo llamadas automáticas, con voz pregrabada o artificial, así como comunicaciones de marketing. Pueden aplicarse tarifas de mensajes y datos. Asimismo, acepta nuestros Términos de uso y nuestra Política de privacidad.
Unidad
- $2,925 / Mes
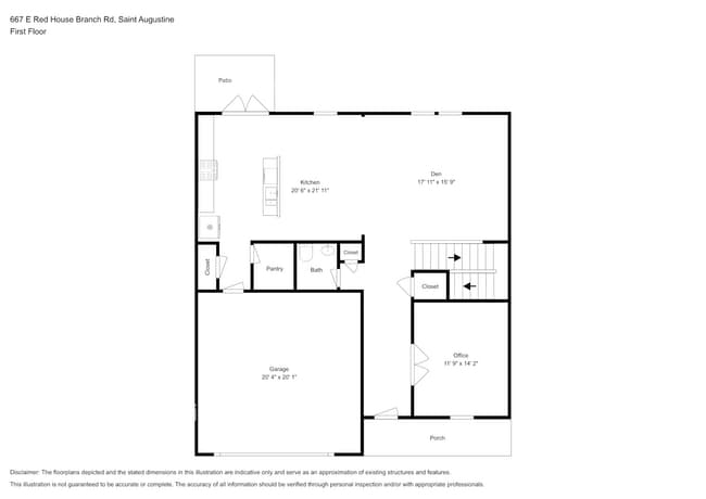
- 5 Habitaciones
- 3 Baños
- 2500 sq. ft.
- Disponibilidad Ahora
Comodidades del apartamento
- Patio
- Porche
- Vestidores
Características de la comunidad
- Garajes
- Recinto cerrado
667 E Red House Branch Rd se encuentra en County en el código postal .
Cuotas y políticas
Las siguientes cuotas se basan en información proporcionada por la comunidad y es posible que no incluyan cuotas adicionales o servicios básicos.
Servicios y elementos básicos
- Utility Billing Service Fee$9.95 / mes
- Air Filter Delivery Fee$9.95 / mes
- Smart Home with video doorbell$40 / mes
- Internet & Media$85 / mes
- Garaje
Gatos
- Se admiten gatos
Perros
- Se admiten perros
Aviso Legal sobre Tarifas de la Propiedad Based on community-supplied data and independent market research. Subject to change without notice. May exclude fees for mandatory or optional services and usage-based utilities.
Explorar opciones de viaje
- En Coche--
- Caminando--
- En Bicicleta--
- Tránsito público--

Póngase en contacto
Saint Augustine, FL 32084

Calificaciones
Caminabilidad
Un poco accesible a pie20 / 100
Facilidad para Conducir
Excepcionalmente apto para conducir90 / 100
Ciclabilidad
Favorablemente apto para andar en bici40 / 100
Soundscore ™
Calm86 / 100
Educación local
Escuelas primarias y secundarias
Turning Point Christian Academy
Grados Escolares PK-5
Private
Crookshank Elementary School
Grados Escolares PK-5
Public
Sebastian Middle School
Grados Escolares 6-8
Public
St. Augustine High School
Grados Escolares 9-12
Public
Victory Preparatory School
Grados Escolares K-12
Private
Harbor Light Christian Academy
Grados Escolares K-12
Private
Datos de escuelas proporcionados por GreatSchools.org 2024 © 2024. Todos los derechos reservados.
Colegios y Universidades
Escuela
Tiempo de viaje (Distancia)
St. Johns River, St. Augustine
En coche: 6 min (1.9 mi)
Flagler College
En coche: 11 min (5.2 mi)
USAHS
En coche: 16 min (7.2 mi)
Descubre a Greater St Augustine, Saint Augustine, FL
Centros Comerciales
Shoppers will appreciate 667 E Red House Branch Rd proximity to Shoppes at Mission Trace and North Florida Commerce Center. Shoppes at Mission Trace is 1.4 miles away, and North Florida Commerce Center is within a 30 minute walk.
Parques y Recreación
Las actividades recreativas cerca de 667 E Red House Branch Rd son abundantes. Descubre 1 park dentro de 3.7 miles, incluido Fort Mose Historic State Park.




