30914 Temple Stand Ave, Wesley Chapel, FL 33543
Qué ofrece este apartamento
Alquile esta casa y obtenga más de la administración profesional de propiedades de Invitation Homes. Esta casa viene completamente equipada con comodidades de... calidad, servicios imprescindibles, tecnología de punta y mantenimiento profesional ProCare®. Su pago mensual total estimado es de $2464.90. Esto cubre su renta base, $2320.00 + nuestros servicios obligatorios diseñados para facilitarle la vida: Tarifa de entrega de filtro de aire ($9.95), Internet y medios ($85), Casa inteligente con timbre con video ($40) y Tarifa de servicio de facturación de servicios públicos ($9.95). La renta base varía según el plazo de arrendamiento seleccionado. ¡No busque más la casa de sus sueños! El exterior frontal cuenta con un garaje para dos autos y una entrada cubierta, mientras que el patio trasero cercado tiene mucho espacio para disfrutar al aire libre. En el interior, encontrará baldosas, pisos de tablones de vinilo de lujo, un espacio abierto y grandes ventanales que permiten la entrada de mucha luz natural. Prepare comidas en la cocina con electrodomésticos a juego, elegantes gabinetes de madera y hermosas encimeras. Las amplias habitaciones combinan con el estilo moderno y elegante de la casa y vienen con armarios empotrados. Cada baño está equipado con elegantes accesorios que le brindan el escenario perfecto para su día de spa en casa. ¡Haga realidad la casa de sus sueños, solicite en línea hoy mismo! En Invitation Homes, ofrecemos casas en alquiler que admiten mascotas y cuentan con patio, equipadas con tecnología de hogar inteligente en vecindarios increíbles en todo el país. Viva en una casa estupenda sin las molestias ni el compromiso a largo plazo de ser propietario. Descubra la casa de sus sueños con Invitation Homes. Nuestro paquete Lease Easy, que incluye hogar inteligente, entrega de filtros de aire y administración de servicios públicos, es una parte clave de su estilo de vida de alquiler sin preocupaciones. Estos servicios son obligatorios según su contrato de arrendamiento y tienen un costo mensual adicional. También pueden aplicarse cargos mensuales por mascotas y piscinas. Características y comodidades de la casa: aire acondicionado, porche cubierto, patio cercado, garaje, plazos de arrendamiento largos, tablones de vinilo de lujo, admite mascotas, hogar inteligente, azulejos, vestidor, conexiones para lavadora/secadora y administración profesional a cargo de Invitation Homes. Esta casa de Invitation Homes está siendo disfrutada por otro residente, pero estará disponible pronto. Aún puede solicitarla; contáctenos para obtener más detalles o solicite ahora. Invitation Homes es un arrendador de vivienda equitativa bajo la FHA. Pueden aplicarse leyes locales, estatales y federales. Se aplican términos y condiciones adicionales. Este anuncio no es una oferta de alquiler. Debe enviar información adicional, incluyendo una solicitud de alquiler y una tarifa de solicitud. Se cree que toda la información de arrendamiento es precisa, pero pueden haber ocurrido cambios desde que se tomaron las fotografías y los metros cuadrados son estimados. Consulte el sitio web de InvitationHomes para obtener más información. Tenga cuidado con las estafas: los empleados de Invitation Homes nunca le pedirán su nombre de usuario y contraseña. Invitation Homes no se anuncia en Craigslist, Social Serve, etc. Somos dueños de nuestras casas; no hay propietarios privados. Todos los fondos para arrendar con Invitation Homes se pagan directamente a través de nuestro sitio web, nunca a través de transferencia bancaria o aplicaciones de pago como Zelle, PayPal o Cash App. Para obtener más información, envíe una consulta sobre esta casa. Las solicitudes están sujetas a nuestros requisitos de calificación. Se aplican términos y condiciones adicionales. CONSENTIMIENTO PARA RECIBIR LLAMADAS Y MENSAJES DE TEXTO: Al ingresar su información de contacto, usted consiente expresamente en recibir correos electrónicos, llamadas y mensajes de texto de Invitation Homes, incluyendo llamadas automáticas, con voz pregrabada o artificial, así como comunicaciones de marketing. Pueden aplicarse tarifas de mensajes y datos. Asimismo, acepta nuestros Términos de uso y nuestra Política de privacidad.
Unidad
- $2,320 / Mes
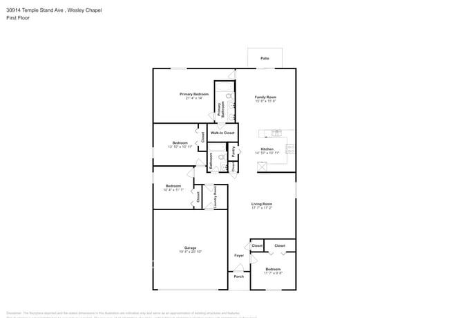
- 4 Habitaciones
- 2 Baños
- 1934 sq. ft.
- Disponibilidad Ahora
Comodidades del apartamento
- Porche
- Vestidores
Características de la comunidad
- Garajes
- Recinto cerrado
30914 Temple Stand Ave se encuentra en County en el código postal .
Cuotas y políticas
Las siguientes cuotas se basan en información proporcionada por la comunidad y es posible que no incluyan cuotas adicionales o servicios básicos.
Servicios y elementos básicos
- Utility Billing Service Fee$9.95 / mes
- Air Filter Delivery Fee$9.95 / mes
- Smart Home with video doorbell$40 / mes
- Internet & Media$85 / mes
- Garaje
Perros
- Se admiten perros
Gatos
- Se admiten gatos
Aviso Legal sobre Tarifas de la Propiedad Based on community-supplied data and independent market research. Subject to change without notice. May exclude fees for mandatory or optional services and usage-based utilities.
Explorar opciones de viaje
- En Coche--
- Caminando--
- En Bicicleta--
- Tránsito público--

Póngase en contacto
Wesley Chapel, FL 33543

Calificaciones
Caminabilidad
Un poco accesible a pie20 / 100
Facilidad para Conducir
Excepcionalmente apto para conducir100 / 100
Viajes y tránsito

Educación local
Escuelas primarias y secundarias
Thomas E. Weightman Middle School
Grados Escolares 6-8
Public
Wesley Chapel High School
Grados Escolares 9-12
Public
Datos de escuelas proporcionados por GreatSchools.org 2024 © 2024. Todos los derechos reservados.
Colegios y Universidades
Escuela
Tiempo de viaje (Distancia)
Saint Leo University
En coche: 24 min (12.8 mi)
Descubre a Wesley Chapel, Wesley Chapel, FL
Aeropuertos
Vivir en Wesley Chapel brinda fácil acceso a Tampa International, ubicado a solo 47 minutes de 30914 Temple Stand Ave. Otro aeropuerto cercano es St Pete-Clearwater International, ubicado a 42.7 miles de distancia.




