15142 Quailmoor St, Winter Garden, FL 34787
Qué ofrece este apartamento
Alquile esta casa y obtenga más de la administración profesional de propiedades de Invitation Homes. Esta casa viene completamente equipada con comodidades de... calidad, servicios imprescindibles, tecnología de punta y mantenimiento profesional ProCare®. Su pago mensual total estimado es de $2974.90. Esto cubre su renta base, $2830.00 + nuestros servicios requeridos diseñados para facilitarle la vida: Tarifa de entrega del filtro de aire ($9.95), Internet y multimedia ($85), Casa inteligente con timbre con video ($40) y Tarifa de servicio de facturación de servicios públicos ($9.95). La renta base varía según el plazo de arrendamiento seleccionado. Bienvenido a su nueva casa. Lo básico está incluido. Solo agréguele su estilo personal para convertirla en un hogar. Se sentirá a gusto al entrar por esta acogedora entrada. Esta hermosa casa cuenta con elegantes pisos de baldosas, amplias habitaciones y un garaje. La hora de la comida será más agradable en esta hermosa cocina con encimeras de granito, gabinetes espaciosos, iluminación empotrada y electrodomésticos de acero inoxidable. Un patio trasero con terraza cubierta es perfecto para cualquier ocasión que le espere en esta hermosa casa. Hay mucho espacio para colocar tus muebles preferidos, así que puedes relajarte y dejar que el estrés del día se disipe. Tus mascotas se sentirán como en casa tras una cerca que les da privacidad y les aísla del ruido del vecindario. Las comodidades incluyen una cancha de baloncesto y un parque infantil. ¡Solicita en línea hoy mismo! En Invitation Homes, ofrecemos casas en alquiler que admiten mascotas, con jardín y tecnología Smart Home, en increíbles vecindarios de todo el país. Vive en una casa fantástica sin las complicaciones ni el compromiso a largo plazo de ser propietario. Descubre la casa de tus sueños con Invitation Homes. Nuestro paquete Lease Easy, que incluye Smart Home, Suministro de Filtros de Aire y Administración de Servicios Públicos, es clave para disfrutar de un estilo de vida sin preocupaciones. Estos servicios son obligatorios en tu contrato de arrendamiento y tienen un costo mensual adicional. También pueden aplicarse cargos mensuales por mascotas y piscinas. Características y comodidades de la casa: Aire acondicionado, Habitación adicional, Patio cercado, Garaje, Encimeras de granito, Contratos de arrendamiento a largo plazo, Patio, Se admiten mascotas, Iluminación empotrada, Casa inteligente, Electrodomésticos de acero inoxidable, Azulejos, Vestidor, Conexiones para lavadora/secadora y administración profesional de Invitation Homes. Características y comodidades del vecindario: Cancha de baloncesto, Área de juegos infantiles. Esta Invitation Home se está renovando actualmente, pero estará disponible pronto. Aún puede presentar una solicitud: contáctenos para obtener más detalles o solicite ahora. Invitation Homes es un arrendador de vivienda equitativo bajo la FHA. Pueden aplicarse las leyes locales, estatales y federales aplicables. Se aplican términos y condiciones adicionales. Este listado no es una oferta de alquiler. Debe enviar información adicional, incluyendo una solicitud de alquiler y una tarifa de solicitud. Se cree que toda la información de arrendamiento es precisa, pero pueden haberse producido cambios desde que se tomaron las fotografías y se estiman los metros cuadrados. Consulte el sitio web de InvitationHomes para obtener más información. Tenga cuidado con las estafas: Los empleados de Invitation Homes nunca le pedirán su nombre de usuario y contraseña. Invitation Homes no se anuncia en Craigslist, Social Serve, etc. Somos dueños de nuestras casas; No hay propietarios privados. Todos los fondos para alquilar con Invitation Homes se pagan directamente a través de nuestro sitio web, nunca mediante transferencia bancaria ni aplicaciones de pago como Zelle, PayPal o Cash App. Para más información, envíe una consulta sobre esta vivienda. Las solicitudes están sujetas a nuestros requisitos de calificación. Se aplican términos y condiciones adicionales. CONSENTIMIENTO PARA LLAMADAS Y MENSAJES DE TEXTO: Al ingresar su información de contacto, usted consiente expresamente recibir correos electrónicos, llamadas y mensajes de texto de Invitation Homes, incluso por marcador automático, voz pregrabada o artificial, e incluso comunicaciones de marketing. Pueden aplicarse tarifas por mensajes y datos. También acepta nuestros Términos de uso y nuestra Política de privacidad.
Unidad
- $2,830 / Mes
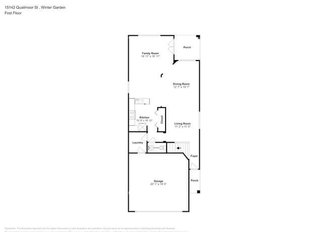
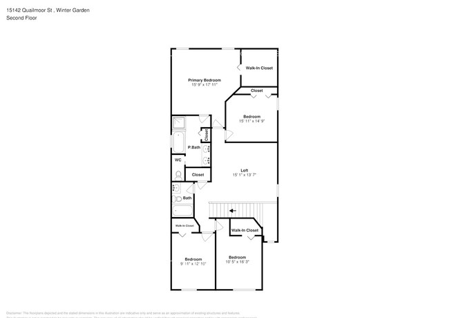
- 4 Habitaciones
- 2.5 Baños
- 2291 sq. ft.
- Disponibilidad Jan 27
Comodidades del apartamento
- Patio
- Vestidores
Características de la comunidad
- Cancha de baloncesto
- Garajes
- Parque infantil
- Recinto cerrado
15142 Quailmoor St se encuentra en County en el código postal .
Tarifas de alquiler y política de mascotas
Las siguientes cuotas se basan en información proporcionada por la comunidad y es posible que no incluyan cuotas adicionales o servicios básicos.
Servicios y elementos básicos
- Utility Billing Service Fee$9.95 / mes
- Air Filter Delivery Fee$9.95 / mes
- Smart Home with video doorbell$40 / mes
- Internet & Media$85 / mes
Elementos básicos por única vez
Explorar opciones de viaje
- En Coche--
- Caminando--
- En Bicicleta--
- Tránsito público--

Póngase en contacto
Winter Garden, FL 34787

Calificaciones de los barrios
Walk Score ®
Car-Dependent41 / 100
Bike Score ®
Somewhat Bikeable38 / 100
Soundscore ™
Active80 / 100
Viajes y tránsito


Educación local
Escuelas primarias y secundarias
Cranium Academy
Grados Escolares PK-5
Private
Whispering Oak Elementary
Grados Escolares PK-5
Public
Sunridge Middle
Grados Escolares 6-8
Public
Family Christian School
Grados Escolares PK-8
Private
Windermere High School
Grados Escolares 9-12
Public
Calvary Christian School
Grados Escolares PK-12
Private
Datos de escuelas proporcionados por GreatSchools.org 2024 © 2024. Todos los derechos reservados.
Colegios y Universidades
Escuela
Tiempo de viaje (Distancia)
Valencia College, West Campus
En coche: 23 min (13.9 mi)
Descubre a Johns Lake, Winter Garden, FL
Centros Comerciales
Shoppers will appreciate 15142 Quailmoor St proximity to Stoneybrook West Village and Avamar Crossings. Stoneybrook West Village is 0.9 miles away, and Avamar Crossings is within a 15 minute walk.
Parques y Recreación
Las actividades recreativas cerca de 15142 Quailmoor St son abundantes. Descubre 1 park dentro de 4.6 miles, incluido George Bailey Park.
Aeropuertos
Vivir en Johns Lake brinda fácil acceso a Orlando International, ubicado a solo 37 minutes de 15142 Quailmoor St. Otro aeropuerto cercano es Orlando Sanford International, ubicado a 43.8 miles de distancia.
Encuentra más alquileres en Winter Garden
Casas en Winter Garden por comodidades
- Casas en alquiler Mascotas permitidas en Winter Garden
- Casas asequibles en alquiler en Winter Garden
- Casas Modern en alquiler en Winter Garden
- Casas for Rent with con piscina in Winter Garden
- Casas for Rent with a con jardín in Winter Garden
- Casas for Rent with a con garaje in Winter Garden
- Casas for Rent with con chimenea in Winter Garden
- Casas for Rent with a con patio in Winter Garden
- Casas for Rent with con Lavadora y secadora in Winter Garden
- Casas for Rent with con servicios pagados in Winter Garden




