
Qué ofrece este apartamento
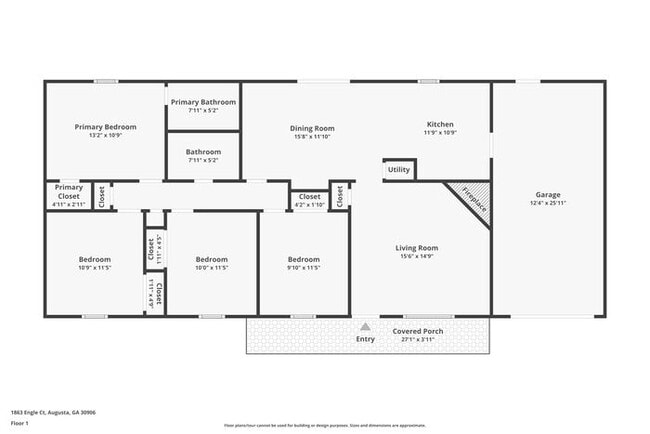
PRÓXIMAMENTE Esta casa estará disponible próximamente. Por favor, verifique la fecha estimada de disponibilidad. Tarifas mensuales recurrentes: $10.95 -... Administración de servicios públicos Maymont Homes se compromete a ofrecer precios claros y por adelantado. Además del alquiler anunciado, los residentes pueden tener tarifas mensuales, que incluyen una tarifa de administración de servicios públicos de $10.95, una tarifa de aguas residuales de $25.00 para hogares con sistemas sépticos y una tarifa de servicios para hogares con tecnología de hogar inteligente, servicio de recolección de basura u otras comodidades comunitarias. Esto no incluye servicios públicos ni tarifas opcionales, que incluyen, entre otras, tarifas por mascotas y seguro para inquilinos. Escondida en Engle Court en Augusta, esta casa de 4 habitaciones y 2 baños ofrece 1,377 pies cuadrados de vivienda de un solo nivel con un diseño que equilibra la apertura y la privacidad. Ubicada a solo minutos del centro de Augusta, los principales empleadores, tiendas y restaurantes, la casa brinda un cómodo acceso a la I-20 y un fácil viaje en automóvil a Fort Eisenhower y los distritos médicos de toda la ciudad. En el interior, las salas de estar cuentan con pisos de madera noble que se extienden por los espacios principales, complementados con pintura fresca que ilumina cada habitación. La sala de estar se conecta a la perfección con un amplio comedor, creando una transición natural para las rutinas diarias o reuniones informales. La cocina está cuidadosamente diseñada con amplios gabinetes, encimeras resistentes y un paquete completo de electrodomésticos que incluye refrigerador, estufa, lavavajillas y campana extractora, con los servicios públicos ubicados cerca para mayor eficiencia. La distribución de los dormitorios está separada de las salas de estar principales, ofreciendo cuatro habitaciones de tamaño cómodo con armarios de almacenamiento. El dormitorio principal tiene acceso directo a un baño completo, mientras que un segundo baño da servicio a los dormitorios restantes. Cada espacio es fácil de amueblar y se adapta a diversas necesidades, ya sea para teletrabajo, aficiones o alojamiento para invitados. En el exterior, el patio ofrece un espacio verde abierto rodeado de árboles maduros, ofreciendo un entorno tranquilo para disfrutar del tiempo al aire libre. Con su distribución práctica, interiores renovados y proximidad a los principales destinos de Augusta, esta casa ofrece comodidad diaria en una ubicación bien comunicada. ¡Solicite ahora! *Maymont Homes ofrece a los residentes soluciones convenientes, que incluyen facturación simplificada de servicios públicos y opciones flexibles de pago de alquiler. Contáctenos para obtener más información. Esta información se considera confiable, pero no está garantizada. Todas las medidas son aproximadas. Las especificaciones reales del producto y de la vivienda pueden variar en dimensiones o detalles. Las imágenes son solo para fines ilustrativos. Algunos programas y servicios podrían no estar disponibles en todas las áreas del mercado. Los precios y la disponibilidad están sujetos a cambios sin previo aviso. Los precios de alquiler anunciados no incluyen la tarifa de solicitud requerida, la tarifa de reserva parcialmente reembolsable (que se abona al aprobar la solicitud) ni la tarifa mensual obligatoria de administración de servicios públicos (en áreas de mercado seleccionadas). Los residentes deben mantener un seguro de inquilinos según lo especificado en su contrato de arrendamiento. Si no se proporciona un seguro de inquilinos de terceros, los residentes se inscribirán automáticamente en nuestra Póliza Maestra de Seguros por una tarifa. Algunas viviendas pueden estar ubicadas en comunidades que requieren una tarifa mensual para servicios o comodidades específicos de la comunidad. Para obtener más información, comuníquese con un representante de arrendamiento de la empresa. Igualdad de oportunidades de vivienda. La fecha estimada de disponibilidad está sujeta a cambios según los plazos de construcción y la confirmación de la mudanza. Contáctenos para programar una visita.
Unidad
- $1,525 / Mes
- 4 Habitaciones
- 2 Baños
- 1377 sq. ft.
- Disponibilidad Ahora
Spacious 4-Bedroom Home in Augusta, GA se encuentra en County en el código postal .
Tarifas de alquiler y política de mascotas
Las siguientes cuotas se basan en información proporcionada por la comunidad y es posible que no incluyan cuotas adicionales o servicios básicos.
Perros
- Pet Deposit$250 por única vez
- Pet Rent$35 / mes
Gatos
- Pet Deposit$250 por única vez
- Pet Rent$35 / mes
Complementos personalizados
- Application Fee$55 por única vez
- Holding Deposit$550 por única vez
- Security Deposit$1,525 por única vez
- Utilities Setup Fee$25 por única vez
- Utilities Monthly Fee$10.95 por única vez
Explorar opciones de viaje
- En Coche--
- Caminando--
- En Bicicleta--
- Tránsito público--
Póngase en contacto
Augusta, GA 30906
Calificaciones de los barrios
Walk Score ®
Car-Dependent5 / 100
Bike Score ®
Somewhat Bikeable34 / 100
Soundscore ™
Calm89 / 100
Viajes y tránsito

Educación local
Escuelas primarias y secundarias
Gracewood Elementary School
Grados Escolares PK-5
Public
Pine Hill Middle School
Grados Escolares 6-8
Public
New Beginnings Christian Acade
Grados Escolares PK-7
Private
Cross Creek High School
Grados Escolares 9-12
Public
The First Academy
Grados Escolares K-11
Private
Alleluia Community School
Grados Escolares K-12
Private
Datos de escuelas proporcionados por GreatSchools.org 2024 © 2024. Todos los derechos reservados.
Colegios y Universidades
Escuela
Tiempo de viaje (Distancia)
Augusta Technical College
En coche: 14 min (7.2 mi)
Dental College of Georgia
En coche: 16 min (8.8 mi)
Paine College
En coche: 16 min (8.9 mi)
Augusta University
En coche: 17 min (9.1 mi)
Descubre a Cross Creek, Augusta, GA
Centros Comerciales
Los compradores apreciarán la proximidad de Spacious 4-Bedroom Home in Augusta, GA a Goshen Village. Goshen Village está a 1.3 miles de distancia.
Parques y Recreación
Las actividades recreativas cerca de Spacious 4-Bedroom Home in Augusta, GA son abundantes. Descubre 1 park dentro de 4.3 miles, incluido Phinizy Swamp Nature Park.
Aeropuertos
Vivir en Cross Creek brinda fácil acceso a Augusta Regional at Bush Field, ubicado a solo 14 minutes de Spacious 4-Bedroom Home in Augusta, GA.
Propiedades cercanas que te pueden gustar
Dentro de 50 millas de Spacious 4-Bedroom Home in Augusta, GA
Encuentra más alquileres en Augusta
Casas en Augusta por comodidades
- Casas en alquiler Mascotas permitidas en Augusta
- Casas asequibles en alquiler en Augusta
- Casas totalmente amuebladas en alquiler en Augusta
- Casas Modern en alquiler en Augusta
- Casas for Rent with con piscina in Augusta
- Casas for Rent with a con jardín in Augusta
- Casas for Rent with a con garaje in Augusta
- Casas for Rent with con chimenea in Augusta
- Casas for Rent with a con patio in Augusta
- Casas for Rent with con Lavadora y secadora in Augusta
- Casas for Rent with con servicios pagados in Augusta








