2254 14th Ave, North Riverside, IL 60546
Qué ofrece este apartamento
Alquile esta casa y obtenga más de la administración profesional de propiedades de Invitation Homes. Esta casa viene completamente equipada con comodidades de... calidad, servicios imprescindibles, tecnología de punta y mantenimiento profesional ProCare®. Su pago mensual total estimado es de $2969.90. Esto cubre su renta base, $2825.00 + nuestros servicios obligatorios diseñados para facilitarle la vida: Tarifa de entrega de filtro de aire ($9.95), Internet y medios ($85), Casa inteligente con timbre de video ($40) y Tarifa de servicio de facturación de servicios públicos ($9.95). La renta base varía según el plazo de arrendamiento seleccionado. Esta es la casa que ha estado buscando. Es acogedora, elegante y cómoda. Una entrada impresionante y un diseño funcional se combinan para crear un interior confortable listo para que lo transforme en su hogar ideal. El piso de madera noble se extiende por toda la sala de estar. La sala de estar le brinda mucho espacio para un comedor y un área de entretenimiento. El espacio de cocina cómodo se complementa con encimeras de granito, gabinetes de primera calidad y electrodomésticos de acero inoxidable. Las comidas y las reuniones familiares serán aún más placenteras en esta cocina que puedes personalizar a tu gusto. Cuando quieras relajarte, estírate en el patio trasero y disfruta del sol. ¡Solicita en línea ahora! En Invitation Homes, ofrecemos casas en alquiler que admiten mascotas, con patio y tecnología de hogar inteligente en vecindarios increíbles en todo el país. Vive en una casa estupenda sin las molestias ni el compromiso a largo plazo de ser propietario. Descubre la casa de tus sueños con Invitation Homes. Nuestro paquete Lease Easy, que incluye hogar inteligente, entrega de filtros de aire y administración de servicios públicos, es una parte clave de tu estilo de vida de alquiler sin preocupaciones. Estos servicios son obligatorios según tu contrato de arrendamiento y tienen un costo mensual adicional. También pueden aplicarse cargos mensuales por mascotas y piscinas. Características y comodidades de la casa: aire acondicionado, patio cercado, garaje, encimeras de granito, pisos de madera, plazos de arrendamiento largos, se admiten mascotas, hogar inteligente, electrodomésticos de acero inoxidable, azulejos, vestidor, conexiones para lavadora/secadora y administración profesional a cargo de Invitation Homes. Invitation Homes es un arrendador de vivienda equitativa bajo la FHA. Pueden aplicarse leyes locales, estatales y federales. Se aplican términos y condiciones adicionales. Este anuncio no constituye una oferta de alquiler. Debe enviar información adicional, incluyendo una solicitud de alquiler y el pago de la tarifa correspondiente. Se cree que toda la información de alquiler es precisa, pero pueden haber ocurrido cambios desde que se tomaron las fotografías y la superficie es estimada. Además, los precios y las fechas pueden cambiar sin previo aviso. Tenga cuidado con las estafas: los empleados de Invitation Homes nunca le pedirán su nombre de usuario ni su contraseña. Consulte el sitio web de InvitationHomes para obtener más información. Invitation Homes no publica anuncios en Craigslist, Social Serve, etc. Somos propietarios de nuestras viviendas; no hay propietarios privados. Todos los pagos de alquiler con Invitation Homes se realizan directamente a través de nuestro sitio web, nunca mediante transferencia bancaria ni aplicaciones de pago como Zelle, PayPal o Cash App. Para obtener más información, envíe una consulta sobre esta vivienda. Las solicitudes están sujetas a nuestros requisitos de calificación. Se aplican términos y condiciones adicionales. CONSENTIMIENTO PARA RECIBIR LLAMADAS Y MENSAJES DE TEXTO: Al ingresar su información de contacto, usted consiente expresamente en recibir correos electrónicos, llamadas y mensajes de texto de Invitation Homes, incluyendo llamadas automáticas, con voz pregrabada o artificial, así como comunicaciones de marketing. Pueden aplicarse tarifas de mensajes y datos. Asimismo, acepta nuestros Términos de uso y nuestra Política de privacidad.
Unidad
- $2,825 / Mes
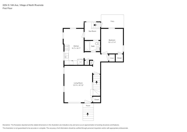
- 3 Habitaciones
- 2 Baños
- 1451 sq. ft.
- Disponibilidad Ahora
Comodidades del apartamento
- Suelos de madera maciza
- Vestidores
Características de la comunidad
- Garajes
- Recinto cerrado
2254 14th Ave se encuentra en County en el código postal .
Cuotas y políticas
Las siguientes cuotas se basan en información proporcionada por la comunidad y es posible que no incluyan cuotas adicionales o servicios básicos.
Servicios y elementos básicos
- Utility Billing Service Fee$9.95 / mes
- Air Filter Delivery Fee$9.95 / mes
- Smart Home with video doorbell$40 / mes
- Internet & Media$85 / mes
- Garaje
Perros
- Se admiten perros
Gatos
- Se admiten gatos
Aviso Legal sobre Tarifas de la Propiedad Based on community-supplied data and independent market research. Subject to change without notice. May exclude fees for mandatory or optional services and usage-based utilities.
Explorar opciones de viaje
- En Coche--
- Caminando--
- En Bicicleta--
- Tránsito público--

Póngase en contacto
North Riverside, IL 60546

Calificaciones
Caminabilidad
Bastante apto para caminar60 / 100
Transporte Público
Transporte público limitado30 / 100
Facilidad para Conducir
Bastante apto para conducir70 / 100
Ciclabilidad
Bastante apto para andar en bici70 / 100
Viajes y tránsito




Educación local
Escuelas primarias y secundarias
St Louise De Marillac School
Grados Escolares PK-8
Private
Komarek Elementary School
Grados Escolares PK-8
Public
Riverside Brookfield Twp High School
Grados Escolares 9-12
Public
Tallgrass Sudbury School
Grados Escolares K-12
Private
Datos de escuelas proporcionados por GreatSchools.org 2024 © 2024. Todos los derechos reservados.
Colegios y Universidades
Escuela
Tiempo de viaje (Distancia)
Dominican University
En coche: 13 min (5.5 mi)
Triton College
En coche: 13 min (5.8 mi)
Concordia University-Chicago
En coche: 13 min (6.1 mi)
Dominican University, Priory
En coche: 12 min (6.1 mi)
Descubre a West Cook, North Riverside, IL
Centros Comerciales
Los compradores apreciarán la proximidad de 2254 14th Ave a Broadview Village Square, Creekside Center y Shoppes of Broadview. Broadview Village Square está a 0.3 miles de distancia y Creekside Center está a 7 minutos a pie.
Desplazamiento
Con un TransitScore de 30, 2254 14th Ave tiene transporte público limitado, incluidas 10 transit stops dentro de 5.4 miles. Las opciones de tránsito incluyen Forest Park Station y Harlem Station (Blue Line - Forest Park Branch).
Parques y Recreación
Las actividades recreativas cerca de 2254 14th Ave son abundantes. Descubre 5 parks dentro de 4.7 miles, incluidos Schuth's Grove / Callahan Grove, Brezina Woods y Brookfield Zoo.
Aeropuertos
Vivir en West Cook brinda fácil acceso a Chicago Midway International, ubicado a solo 16 minutes de 2254 14th Ave. Otro aeropuerto cercano es Chicago O'Hare International, ubicado a 13 miles de distancia.




