
11438 E 16th St, Independence, MO 64052
Qué ofrece este apartamento
¡Adorable casa con muchas mejoras! Excelente ubicación cerca de tiendas, supermercados y acceso a la autopista. Pisos, pintura, accesorios y mucho más nuevos.... Cocina renovada con encimeras de granito y electrodomésticos de acero inoxidable. ¡No te la pierdas! El inquilino es responsable de todos los servicios públicos y del cuidado del césped. No aceptamos solicitudes de Zillow ni de terceros; todas las solicitudes deben enviarse a través de Northpoint Asset Management. Política de mascotas: Se admiten mascotas, excepto Pit Bull (también conocido como Bull Terrier), Malamute, Doberman Pinscher, Rottweiler, Chow Chow, Wolf o híbrido de Wolf Enlace del recorrido en 3D: Tarifas únicas: $69 - Tarifa de solicitud por adulto de 18 años o más (no reembolsable) $199 - Tarifa administrativa de arrendamiento $250 - Tarifa por mascota (por mascota) Tarifas mensuales: $64.95/mes - Paquete de beneficios para residentes (incluye: seguro para inquilinos (OPCIONAL a través de RBP), filtros de aire acondicionado, control de plagas a pedido, informes a 3 agencias de crédito, acumule puntos de recompensa canjeables por pagos de alquiler puntuales) $25 - Alquiler mensual por mascota (por mascota) A continuación, encontrará los criterios de alquiler. 1). Debe ganar 3 veces el alquiler bruto mensual 2). Sin desalojos ni saldos adeudados a ningún propietario en los últimos 5 años 3). Sin quiebras activas, ejecuciones hipotecarias, etc. 4). 2 años de buen historial de alquiler verificable 5). Sin problemas de antecedentes. (rechazo automático de cualquier cosa relacionada con sexo o terrorismo) 6). Sin cobros recientes ni pagos atrasados a crédito en los últimos dos años 7). La mudanza es de 14 días o menos 8). Se requiere un puntaje de crédito mínimo de 575 Sección 8: Aceptada con un paquete RTA completo ****Se requiere seguro para inquilinos**** Todos los residentes de Northpoint Asset Management están inscritos en el Paquete de beneficios para residentes (RBP) por $64.95/mes que incluye la entrega de filtros de aire HVAC (para propiedades aplicables), control de plagas a pedido, creación de crédito para ayudar a aumentar su puntaje de crédito con pagos de alquiler puntuales, protección de identidad de $1 millón, seguro para inquilinos de Master Policy, servicio de conserjería para mudanzas que hace que la conexión de servicios públicos y la configuración del servicio a domicilio sean muy fáciles durante su mudanza, nuestro mejor programa de recompensas para residentes y mucho más. Más detalles al momento de la solicitud. Concientización: Northpoint Asset Management no anuncia propiedades en Craigslist, Facebook Marketplace, LetGo u otros sitios web de publicidad clasificada. Si cree que una de nuestras propiedades ha sido publicada en estos sitios por un estafador, envíenos un correo electrónico con la dirección y el enlace del anuncio a [correo electrónico faltante]. Para ver todas las propiedades disponibles de Northpoint Asset Management y los términos de la solicitud, visite nuestro sitio web en [correo electrónico faltante]. Publicado por Northpoint Asset Management. Para más información: Correo electrónico: Contacto: 1- o
Unidad
- $1,305 / Mes
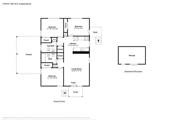
- 3 Habitaciones
- 1.5 Baños
- 1064 sq. ft.
- Disponibilidad Ahora
Comodidades del apartamento
- Lavavajillas
Updated 3-Bed Home with Granite Kitchen Near Shopping & Highways – Independence, MO se encuentra en County en el código postal .
Tarifas de alquiler y política de mascotas
Las siguientes cuotas se basan en información proporcionada por la comunidad y es posible que no incluyan cuotas adicionales o servicios básicos.
Elementos básicos por única vez
Explorar opciones de viaje
- En Coche--
- Caminando--
- En Bicicleta--
- Tránsito público--
Póngase en contacto
Independence, MO 64052
Calificaciones de los barrios
Walk Score ®
Car-Dependent37 / 100
Transit Score ®
Some Transit30 / 100
Bike Score ®
Somewhat Bikeable28 / 100
Soundscore ™
Active80 / 100
Viajes y tránsito



Educación local
Escuelas primarias y secundarias
Procter Elementary
Grados Escolares PK-5
Public
Bingham Middle
Grados Escolares 7-8
Public
Bridger Middle
Grados Escolares 6-6
Public
William Chrisman High
Grados Escolares 9-12
Public
Family Christian Academy
Grados Escolares PK-12
Private
Datos de escuelas proporcionados por GreatSchools.org 2024 © 2024. Todos los derechos reservados.
Colegios y Universidades
Escuela
Tiempo de viaje (Distancia)
Graceland University
A pie: 12 min (0.7 mi)
UM Kansas City
En coche: 22 min (12.3 mi)
Rockhurst University
En coche: 23 min (12.4 mi)
Kansas City Art Institute
En coche: 23 min (13.1 mi)
Descubre a Procter, Independence, MO
Centros Comerciales
Los compradores apreciarán la proximidad de Updated 3-Bed Home with Granite Kitchen Near Shopping & Highways – Independence, MO a Alton Plaza, SUN FRESH y Sterling Ridge Shopping Center. Alton Plaza está a 0.8 miles de distancia y SUN FRESH está a 20 minutos a pie.
Desplazamiento
Con un TransitScore de 30, Updated 3-Bed Home with Granite Kitchen Near Shopping & Highways – Independence, MO tiene some transit, incluidas 8 transit stops dentro de 17 miles. Las opciones de tránsito incluyen Power & Light On Main At 14Th St Sb y Kauffman Center On Main At 16Th St Sb.
Parques y Recreación
Las actividades recreativas cerca de Updated 3-Bed Home with Granite Kitchen Near Shopping & Highways – Independence, MO son abundantes. Descubre 1 park dentro de 1.5 miles, incluido Harry S Truman National Historic Site.
Aeropuertos
Vivir en Procter brinda fácil acceso a Kansas City International, ubicado a solo 40 minutes de Updated 3-Bed Home with Granite Kitchen Near Shopping & Highways – Independence, MO.
Propiedades cercanas que te pueden gustar
Dentro de 50 millas de Updated 3-Bed Home with Granite Kitchen Near Shopping & Highways – Independence, MO
Encuentra más alquileres en Independence
Casas en Independence por comodidades
- Casas en alquiler Mascotas permitidas en Independence
- Casas asequibles en alquiler en Independence
- Casas Modern en alquiler en Independence
- Casas for Rent with con piscina in Independence
- Casas for Rent with a con jardín in Independence
- Casas for Rent with a con garaje in Independence
- Casas for Rent with con chimenea in Independence
- Casas for Rent with con Lavadora y secadora in Independence









