7316 Olive Coast St, Charlotte, NC 28262
Qué ofrece este apartamento
Alquile esta casa y obtenga más de la administración profesional de propiedades de Invitation Homes. Esta casa viene completamente equipada con comodidades de... calidad, servicios imprescindibles, tecnología de punta y mantenimiento profesional ProCare®. Su pago mensual total estimado es de $2434.70. Esto cubre su renta base, $2295.00 + nuestros servicios obligatorios diseñados para facilitarle la vida: Tarifa de entrega del filtro de aire ($9.95), Internet y multimedia ($85), Casa inteligente con timbre con video ($40) y Tarifa de servicio de facturación de servicios públicos ($4.75). La renta base varía según el plazo de arrendamiento seleccionado. Solicite viviendas seleccionadas antes del 25/3 para obtener su primer mes completo de renta base gratis. Para obtener un desglose detallado de precios, consulte cada listado. Oferta por tiempo limitado sujeta a cambios o cancelación y aprobación de la solicitud. Esta casa forma parte de Cameron Commons, una comunidad cuidadosamente planificada. Obtenga más información sobre lo que Cameron Commons tiene para ofrecer. Cameron Commons ofrece casas unifamiliares de alquiler de 4 a 5 habitaciones con un hermoso diseño en una ubicación privilegiada en Charlotte. Disfrute de la comodidad de un diseño espacioso, con garaje para dos autos y un patio trasero ideal para relajarse y disfrutar de reuniones al aire libre. Con conexiones para lavadora y secadora incluidas, sus necesidades diarias estarán cubiertas. Esta acogedora comunidad se encuentra a pocos minutos de tiendas, restaurantes y opciones de entretenimiento a lo largo de University City Boulevard, lo que le permite disfrutar fácilmente de todo lo que la zona tiene para ofrecer. En Invitation Homes, ofrecemos casas en alquiler que admiten mascotas, con patio y tecnología Smart Home en vecindarios increíbles de todo el país. Viva en una casa fantástica sin las complicaciones ni el compromiso a largo plazo de ser propietario. Descubra la casa de sus sueños con Invitation Homes. Nuestro paquete Lease Easy, que incluye Smart Home, Suministro de Filtros de Aire y Administración de Servicios Públicos, es clave para un estilo de vida sin preocupaciones. Estos servicios son obligatorios en su contrato de arrendamiento con un costo mensual adicional. También pueden aplicarse cargos mensuales por mascotas y piscinas. Características y comodidades de la casa: Aire acondicionado, sala adicional, garaje, encimeras de granito, isla de cocina, contratos de arrendamiento a largo plazo, pisos de vinilo de lujo, diseño abierto, patio, se admiten mascotas, dormitorio principal en la planta principal, iluminación empotrada, casa inteligente, electrodomésticos de acero inoxidable, vestidor, conexiones para lavadora/secadora y administración profesional de Invitation Homes. Esta casa Invitation Home se encuentra en proceso de renovación, pero pronto estará disponible. Aún puede solicitarla: contáctenos para obtener más información o solicite ahora. Invitation Homes es un arrendador de vivienda equitativo según la FHA. Pueden aplicarse las leyes locales, estatales y federales aplicables. Se aplican términos y condiciones adicionales. Este anuncio no constituye una oferta de alquiler. Debe enviar información adicional, incluyendo una solicitud de alquiler y una tarifa de solicitud. Se considera que toda la información del contrato de arrendamiento es precisa, pero puede haber habido cambios desde que se tomaron las fotografías y la superficie es una estimación. Además, los precios y las fechas pueden cambiar sin previo aviso. Todo solicitante aprobado debe confirmar el estado de la(s) mascota(s) en su casa y pagar las tarifas de registro de mascotas correspondientes antes de la firma del contrato de arrendamiento final. Consulte el sitio web de InvitationHomes para obtener más información. Tenga cuidado con las estafas: Los empleados de Invitation Homes nunca le pedirán su nombre de usuario ni contraseña. Invitation Homes no se anuncia en Craigslist, Social Serve, etc. Somos propietarios de nuestras casas; no hay propietarios privados. Todos los fondos para alquilar con Invitation Homes se pagan directamente a través de nuestro sitio web, nunca mediante transferencia bancaria ni aplicaciones de pago como Zelle, PayPal o Cash App. Para obtener más información, envíe una consulta sobre esta casa. Las solicitudes están sujetas a nuestros requisitos de calificación. Se aplican términos y condiciones adicionales. CONSENTIMIENTO PARA LLAMADAS Y MENSAJES DE TEXTO: Al ingresar su información de contacto, usted consiente expresamente recibir correos electrónicos, llamadas y mensajes de texto de Invitation Homes, incluso por marcador automático, voz pregrabada o artificial, e incluidas comunicaciones de marketing. Pueden aplicarse tarifas de mensajes y datos. También acepta nuestros Términos de uso y nuestra Política de privacidad.
Unidad
- $2,295 / Mes
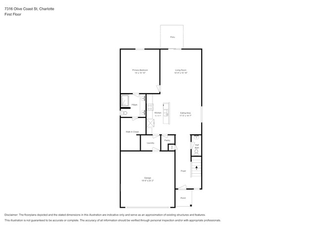
- 5 Habitaciones
- 2.5 Baños
- 2306 sq. ft.
- Disponibilidad Feb 26
Comodidades del apartamento
- Patio
- Vestidores
Características de la comunidad
- Garajes
7316 Olive Coast St se encuentra en County en el código postal .
Tarifas de alquiler y política de mascotas
Las siguientes cuotas se basan en información proporcionada por la comunidad y es posible que no incluyan cuotas adicionales o servicios básicos.
Servicios y elementos básicos
- Utility Billing Service Fee$4.75 / mes
- Air Filter Delivery Fee$9.95 / mes
- Smart Home with video doorbell$40 / mes
- Internet & Media$85 / mes
- Garaje
Gatos
- Se admiten gatos
Perros
- Se admiten perros
Explorar opciones de viaje
- En Coche--
- Caminando--
- En Bicicleta--
- Tránsito público--

Póngase en contacto
Charlotte, NC 28262

Calificaciones de los barrios
Walk Score ®
Car-Dependent18 / 100
Bike Score ®
Somewhat Bikeable16 / 100
Soundscore ™
Active78 / 100
Viajes y tránsito

Educación local
Escuelas primarias y secundarias
Dream Children School
Grados Escolares K-2
Private
Stoney Creek Elementary
Grados Escolares K-5
Public
Countryside Montessori School
Grados Escolares PK-5
Private
University Meadows Elementary
Grados Escolares PK-5
Public
James Martin Middle
Grados Escolares 6-8
Public
Julius L. Chambers High School
Grados Escolares 9-12
Public
Hope Academy
Grados Escolares K-12
Private
Christ Classical Academy of Charlotte
Grados Escolares PK-12
Private
Datos de escuelas proporcionados por GreatSchools.org 2024 © 2024. Todos los derechos reservados.
Colegios y Universidades
Escuela
Tiempo de viaje (Distancia)
UNC Charlotte
En coche: 8 min (3.8 mi)
Central Piedmont C.C., Cato
En coche: 12 min (6.4 mi)
Rowan-Cabarrus, South Campus
En coche: 17 min (12.2 mi)
Central Piedmont C.C.,Merancas
En coche: 19 min (13.1 mi)
Descubre a Harris-Houston, Charlotte, NC
Centros Comerciales
Shoppers will appreciate 7316 Olive Coast St proximity to Leslie Square and Wexford Plaza. Leslie Square is 1.1 miles away, and Wexford Plaza is within a 26 minute walk.
Parques y Recreación
Las actividades recreativas cerca de 7316 Olive Coast St son abundantes. Descubre 1 park dentro de 2.9 miles, incluido University of North Carolina at Charlotte Botanical Gardens.
Aeropuertos
Vivir en Harris-Houston brinda fácil acceso a Concord-Padgett Regional, ubicado a solo 14 minutes de 7316 Olive Coast St. Otro aeropuerto cercano es Charlotte/Douglas International, ubicado a 20.4 miles de distancia.




