
316 Wall St, Kingston, NY 12401
Qué ofrece este apartamento
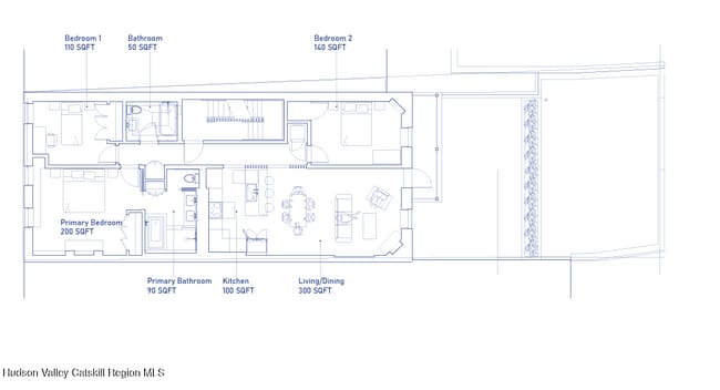
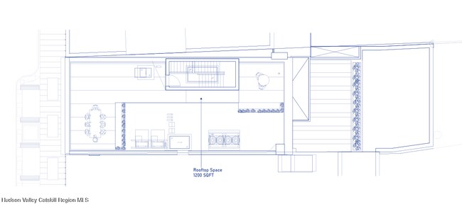
Ocupando la totalidad del tercer piso, esta excepcional residencia ofrece un estilo de vida de auténtico ático con un amplio espacio interior, vistas... panorámicas y acceso exclusivo a la azotea del edificio. Diseñado con esmero y con acabados impecables, el apartamento combina la artesanía moderna con el carácter de la estructura original, creando un ambiente refinado y privado en el corazón de Uptown Kingston. La sala de estar principal es luminosa y diáfana, con suelos de madera noble de tablones anchos, ladrillo visto y carpintería a medida que aporta calidez y profundidad arquitectónica. Los grandes ventanales enmarcan las vistas del barrio y del horizonte, manteniendo la privacidad sobre la calle, mientras que la distribución permite una disposición flexible del salón y el comedor, ideal tanto para el día a día como para recibir invitados. La cocina a medida se inunda de luz natural gracias a una claraboya, que realza los armarios de madera de suelo a techo, las estanterías abiertas y la amplia isla con encimera de piedra oscura. Electrodomésticos de acero inoxidable de alta gama, almacenamiento integrado y luminarias cuidadosamente seleccionadas crean una cocina que es a la vez altamente funcional y visualmente impactante. Los dormitorios son amplios y están diseñados con esmero, incorporando armarios empotrados, estanterías a medida y detalles de ladrillo visto. La suite principal ofrece un baño tipo spa iluminado por una claraboya, con bañera, ducha con mampara de cristal, azulejos refinados y un tocador a medida. El segundo baño mantiene el mismo nivel de acabados con líneas limpias y materiales modernos. La lavandería dentro del apartamento está discretamente integrada en armarios a medida, y el apartamento está equipado con aire acondicionado y calefacción mini-split, iluminación empotrada y de riel, y amplio espacio de almacenamiento empotrado en toda la vivienda, lo que contribuye a una experiencia de vida cómoda y sin complicaciones. Una característica distintiva de esta residencia es su acceso al exterior. El apartamento incluye un balcón privado con vistas a los terrenos del Senate Garage y ofrece acceso exclusivo a toda la azotea, con vistas panorámicas, cielo abierto y una oportunidad única para disfrutar de la vida al aire libre a esta escala en el centro de Kingston. La azotea funciona como una verdadera extensión del apartamento, ideal para entretener, relajarse o disfrutar de las vistas elevadas del vecindario circundante. Ubicada a pocos pasos de los restaurantes, galerías y centros culturales de Uptown Kingston, esta residencia en el tercer piso ofrece privacidad, diseño y un espacio al aire libre que rara vez se encuentra en el mercado de alquiler local. Los servicios públicos no están incluidos. Hay estacionamiento en la calle disponible. ID de MLS: 20260352
Unidad
- $5,500 / Mes
- 3 Habitaciones
- 2 Baños
- 1560 sq. ft.
- Disponibilidad Ahora
Comodidades del apartamento
- Lavavajillas
- Suelos de madera maciza
316 Wall St se encuentra en County en el código postal .
Apartment Details
Home Design
- Built in 1920
- Apartment
Interior Spaces
- 1560 Sq Ft Home
Kitchen
- Range
- Dishwasher
Flooring
- Wood Flooring
Bedrooms and Bathrooms
- 2 Full Bathrooms
- 3 Bedrooms | 2 Bathrooms
- 3 Bedrooms
Parking
- On-Street Parking
Outdoor Features
- Deck
- Terrace
Lot Details
- 3049 Sq Ft Lot
Utilities
- Public Water Source
Listing and Financial Details
- Assessor Parcel Number 48.331-2-9
Explorar opciones de viaje
- En Coche--
- Caminando--
- En Bicicleta--
- Tránsito público--
Póngase en contacto
Kingston, NY 12401

IDX information © 2026 by the Hudson Valley Catskill Region MLS. All Rights Reserved. The data relating to real estate on this website comes in part from the IDX of the Hudson Valley Catskill Region MLS. Information is deemed reliable but is not guaranteed accurate by the MLS. IDX information is provided exclusively for consumers' personal, non-commercial use and may not be used for any purpose other than to identify prospective properties consumers may be interested in purchasing.
Calificaciones
Caminabilidad
Muy accesible a pie80 / 100
Transporte Público
Transporte público limitado30 / 100
Facilidad para Conducir
Excepcionalmente apto para conducir90 / 100
Ciclabilidad
Favorablemente apto para andar en bici40 / 100
Viajes y tránsito

Educación local
Colegios y Universidades
Escuela
Tiempo de viaje (Distancia)
Bard College
En coche: 22 min (12.9 mi)
Descubre a Uptown Kingston, Kingston, NY
Centros Comerciales
Los compradores apreciarán la proximidad de 316 Wall St a Kingston Plaza. Kingston Plaza está a 0.6 miles de distancia.
Desplazamiento
Con un TransitScore de 30, 316 Wall St tiene transporte público limitado, incluidas 5 transit stops dentro de 45.8 miles. Las opciones de tránsito incluyen Rhinecliff Amtrak Station y Hudson Amtrak Station.
Parques y Recreación
Las actividades recreativas cerca de 316 Wall St son abundantes. Descubre 3 parks dentro de 2.7 miles, incluidos Forsyth Nature Center, Trolley Museum of New York y Hudson River Maritime Museum.
Aeropuertos
Vivir en Uptown Kingston brinda fácil acceso a New York Stewart International, ubicado a solo 52 minutes de 316 Wall St.
Propiedades cercanas que te pueden gustar
Dentro de 50 millas de 316 Wall St


Southgate Middletown

Federal Road Apartments
18 Meses de Arrendamiento

Abbey Lane

Mayfair Square

Kinsley
Encuentra más alquileres en Kingston
- Apartamentos que admiten mascotas en Kingston
- Apartamentos Frente al mar en Kingston
- Apartamentos en alquiler con piscina en Kingston
- Apartamentos en alquiler Acceso en silla de ruedas en Kingston
- Apartamentos en alquiler con Lavadora y secadora en Kingston
- Apartamentos en alquiler con servicios incluidos en Kingston
- Apartamentos with EV Charging in Kingston
- Apartamentos en alquiler Recorrido Virtual en Kingston
- Ofertas especiales de mudanza en Kingston
- Apartamentos en alquiler de menos de $700 en Kingston
- Apartamentos en alquiler de menos de $900 en Kingston
- Apartamentos en alquiler de menos de $1000 en Kingston
- Apartamentos en alquiler de menos de $1500 en Kingston
- Apartamentos en alquiler de menos de $2000 en Kingston
- Apartamentos en alquiler de menos de $2500 en Kingston




