
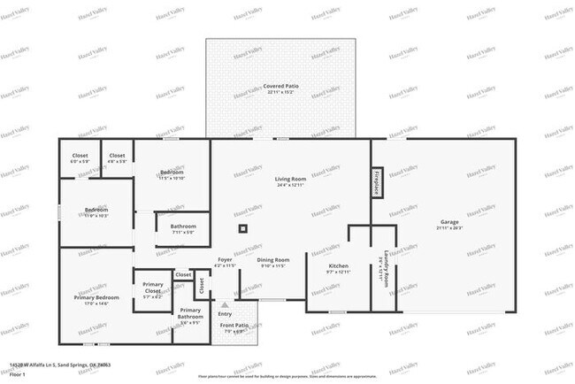
14520 Alfalfa Ln, Sand Springs, OK 74063
Qué ofrece este apartamento
¡Prepárate para el invierno con los ahorros! Múdate antes del 16/2 y recibe un crédito de alquiler de $250. ¡ADEMÁS, obtén una tarifa de solicitud GRATIS con la... aprobación de tu solicitud! Esta acogedora casa ofrece un interior cómodo y funcional con detalles bien pensados. Un garaje para dos autos ofrece estacionamiento conveniente y opciones de almacenamiento adicionales. El interior refleja un cuidado y mantenimiento constantes, lo que contribuye a una presentación limpia y lista para mudarse. La sala de estar cuenta con una chimenea que sirve como un atractivo punto focal, agregando interés arquitectónico al espacio. Una combinación de pisos de madera noble y alfombra se extiende por toda la casa, ofreciendo durabilidad en áreas comunes y mayor comodidad en habitaciones seleccionadas. La cocina está diseñada con la practicidad en mente e incluye amplios gabinetes para almacenamiento y organización, junto con electrodomésticos modernos que facilitan el uso diario eficiente. La distribución permite un flujo de trabajo fluido y fácil de usar. El baño está equipado con bañera y ducha, lo que brinda versatilidad y comodidad. Los accesorios y acabados están bien mantenidos, complementando el diseño cohesivo general de la casa. Con acabados neutros, construcción sólida y un mantenimiento cuidadoso, esta propiedad presenta un interior equilibrado y acogedor que se adapta a una amplia gama de estilos de decoración. ¡Programe un recorrido hoy mismo! Habitaciones: 3 Baños: 2 Pies cuadrados: 1548 Pisos: Madera noble y alfombra Servicios públicos: Electricidad, gas, agua, basura, alcantarillado y remoción de nieve Sótano: Sí Lavandería: Conexiones disponibles Mascotas: Permitidas - Permitidas con tarifas adicionales por mascota y revisión. Depósito de seguridad: $1,740 Tarifa de mudanza: $125.00 Tarifa de solicitud: $55.00 por solicitud de adulto Paquete de beneficios para residentes: $49.95 Cargo mensual (ver detalles a continuación) Puede encontrar una lista completa de tarifas en DIVULGACIONES: Esta propiedad puede requerir una inspección municipal que puede afectar cuándo está disponible para mudarse. Es posible que ya se hayan enviado solicitudes para esta propiedad en el momento en que envíe su solicitud. No podemos garantizar esta casa, aunque puede estar disponible en el momento en que envíe su solicitud. No se aceptará un depósito de seguridad hasta que se apruebe la solicitud de alquiler. ¿Busca un nuevo hogar? Busque alquileres disponibles en Hazel Valley, donde la comodidad y la felicidad son nuestra prioridad. Todos los residentes de Hazel Valley Homes están inscritos en el Paquete de Beneficios para Residentes (RBP) por $49.95 al mes, que incluye seguro de inquilinos, entrega de filtros de aire HVAC (para propiedades aplicables), desarrollo de crédito para mejorar su puntaje crediticio con pagos de alquiler puntuales, Protección de Identidad de $1 millón, servicio de conserjería para la mudanza que facilita la conexión de servicios públicos y la configuración del servicio a domicilio durante su mudanza, nuestro programa de recompensas para residentes líder en su clase, ¡y mucho más! Más detalles al solicitar la propiedad. Esta propiedad permite visitas autoguiadas sin cita previa. Contáctenos para más detalles.
Unidad
- 3 Habitaciones
- 2 Baños
- 1548 sq. ft.
- Disponibilidad Feb 4
14520 Alfalfa Ln se encuentra en County en el código postal .
Tarifas de alquiler y política de mascotas
Las siguientes cuotas se basan en información proporcionada por la comunidad y es posible que no incluyan cuotas adicionales o servicios básicos.
Se admiten gatos
- Tarifa no especificada
Se admiten perros
- Tarifa no especificada
Servicios adicionales
- Admin Fee$125
- Application Fee$55
- Resident Benefits Package$50
Explorar opciones de viaje
- En Coche--
- Caminando--
- En Bicicleta--
- Tránsito público--
Póngase en contacto
Sand Springs, OK 74063
Calificaciones de los barrios
Walk Score ®
Car-Dependent2 / 100
Bike Score ®
Somewhat Bikeable31 / 100
Soundscore ™
Active78 / 100
Viajes y tránsito

Educación local
Colegios y Universidades
Escuela
Tiempo de viaje (Distancia)
Tulsa C.C., West Campus
En coche: 12 min (6.3 mi)
Tulsa C.C., Metro Campus
En coche: 20 min (12.5 mi)
The University of Tulsa
En coche: 22 min (14.5 mi)
Descubre a Outer West Tulsa County, Sand Springs, OK
Aeropuertos
Vivir en Outer West Tulsa County brinda fácil acceso a Tulsa International, ubicado a solo 30 minutes de 14520 Alfalfa Ln.
Propiedades cercanas que te pueden gustar
Dentro de 50 millas de 14520 Alfalfa Ln


Crossings at Silver Oak

Stonebrook Gated Community

Heritage Grove

Cypress Crossing





