
2934 SW Cascade Ave, Redmond, OR 97756
Qué ofrece este apartamento
¡UNIDAD OCUPADA POR INQUILINOS EL 30 DE ABRIL! ¡POR FAVOR, NO MOLESTE A LOS INQUILINOS! ¡JOYA DE REDMOND! Amplia casa en el deseable vecindario de Redmond que... cuenta con lo siguiente: -Plano de planta abierto con cocina luminosa y limpia. -Gran patio cercado con patio parcialmente cubierto, estacionamiento adicional para vehículos/RV, sistema de riego. -Conexiones para lavadora y secadora en el nivel superior. -Amplia habitación principal y habitación adicional. -¡Y mucho más! Términos: Contrato de arrendamiento de 12 meses Condado: Deschutes Política de mascotas: Se considerará un perro, de menos de 80 libras, con un depósito de seguridad aumentado de $500 y un alquiler mensual por mascota de $50. La aprobación de la mascota está sujeta a restricciones de raza y una tarifa de evaluación de mascotas de $35. No se permiten gatos, por favor. Términos especiales: Se requiere comprobante de seguro de inquilino antes del inicio y durante todo el arrendamiento. Se aplica una política estricta de no fumar o vapear en esta propiedad. Las camas de agua, jacuzzis, trampolines y acuarios están estrictamente prohibidos. Los residentes deben usar una alfombra protectora debajo de la barbacoa para evitar daños al suelo. Estacionamiento: Garaje adjunto, hasta 2 vehículos. Restricciones de vehículos: RV, bote o remolque necesita aprobación previa de la administración Año de construcción: 2004 Servicios incluidos en el alquiler: Ninguno Servicios pagados por el inquilino: Agua, alcantarillado, basura, electricidad, gas (el agua/alcantarillado es facturado por el servicio público de la ciudad de Redmond y se le facturará al inquilino en cada período de estado de cuenta según el uso real) Paisajismo: Responsabilidad del inquilino Electrodomésticos: Lavavajillas, triturador de basura, estufa eléctrica, refrigerador. Conexiones para lavadora y secadora. CÓMO SOLICITAR: Evaluamos a los solicitantes por orden de llegada. Solicitamos que todos los posibles inquilinos vean la propiedad antes de presentar la solicitud. Todos los solicitantes deben enviar un perfil con la solicitud. **El alquiler debe comenzar dentro de los 14 días posteriores a la aceptación** **El alquiler debe comenzar dentro de los 14 días posteriores a su fecha de aprobación. ** Esta propiedad es administrada por: Utopia Management, Inc. Los precios pueden variar con regularidad a discreción del propietario. Comuníquese con nuestra oficina para obtener la información más actualizada. La información se considera confiable, pero no está garantizada.
Unidad
- $2,795 / Mes
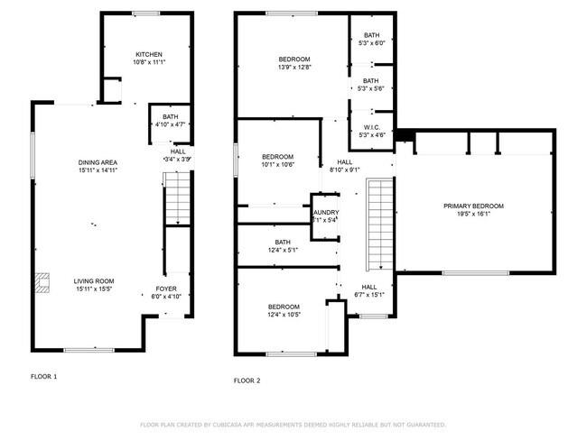
- 4 Habitaciones
- 3 Baños
- 1875 sq. ft.
- Disponibilidad May 14
Comodidades del apartamento
- Lavavajillas
2934 SW Cascade Ave se encuentra en County en el código postal .
Cuotas y políticas
Las siguientes cuotas se basan en información proporcionada por la comunidad y es posible que no incluyan cuotas adicionales o servicios básicos.
Elementos básicos por única vez
Vencimiento al momento de la mudanza
- Security Deposit - Refundable$2,700
Aviso Legal sobre Tarifas de la Propiedad Based on community-supplied data and independent market research. Subject to change without notice. May exclude fees for mandatory or optional services and usage-based utilities.
Explorar opciones de viaje
- En Coche--
- Caminando--
- En Bicicleta--
- Tránsito público--
Póngase en contacto
Redmond, OR 97756
Calificaciones
Caminabilidad
Favorablemente apto para caminar40 / 100
Facilidad para Conducir
Muy apto para conducir80 / 100
Ciclabilidad
Favorablemente apto para andar en bici50 / 100
Viajes y tránsito

Educación local
Escuelas primarias y secundarias
Terrebonne Community School
Grados Escolares K-5
Public
M A Lynch Elementary School
Grados Escolares K-5
Public
WestSide Christian Academy
Grados Escolares PK-5
Private
Elton Gregory Middle School
Grados Escolares 6-8
Public
St Thomas Academy
Grados Escolares PK-8
Private
Redmond High School
Grados Escolares 9-12
Public
Central Christian School
Grados Escolares PK-12
Private
Datos de escuelas proporcionados por GreatSchools.org © 2026. Todos los derechos reservados.
Descubre a Redmond/North Deschutes County, Redmond, OR
Centros Comerciales
Shoppers will appreciate SPACIOUS LAYOUT! HARD SURFACE FLOORING, FENCED YARD & LARGE PATIO! proximity to Nolan Town Center and Fred Meyer Shopping Center. Nolan Town Center is 0.9 miles away, and Fred Meyer Shopping Center is within a 36 minute walk.
Parques y Recreación
Las actividades recreativas cerca de SPACIOUS LAYOUT! HARD SURFACE FLOORING, FENCED YARD & LARGE PATIO! son abundantes. Descubre 1 park dentro de 3.5 miles, incluido Cline Falls State Scenic Viewpoint.
Aeropuertos
Vivir en Redmond/North Deschutes County brinda fácil acceso a Roberts Field, ubicado a solo 8 minutes de SPACIOUS LAYOUT! HARD SURFACE FLOORING, FENCED YARD & LARGE PATIO!.
Propiedades cercanas que te pueden gustar
Dentro de 50 millas de SPACIOUS LAYOUT! HARD SURFACE FLOORING, FENCED YARD & LARGE PATIO!









