Qué ofrece este apartamento
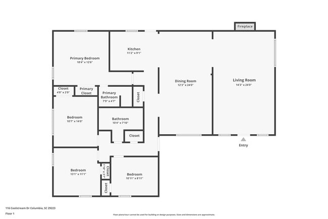
LISTA PARA MUDARSE Esta casa está lista para mudarse. Programe su recorrido ahora o comience su solicitud hoy. Tarifas recurrentes mensuales: $10.95 -... Administración de servicios públicos Maymont Homes se compromete a ofrecer precios claros y por adelantado. Además del alquiler anunciado, los residentes pueden tener tarifas mensuales, que incluyen una tarifa de administración de servicios públicos de $10.95, una tarifa de aguas residuales de $25.00 para hogares con sistemas sépticos y una tarifa de servicios para hogares con tecnología de hogar inteligente, servicio de recolección de basura u otras comodidades comunitarias. Esto no incluye servicios públicos ni tarifas opcionales, que incluyen, entre otras, tarifas por mascotas y seguro para inquilinos. Ubicado en un vecindario establecido de Columbia, Carolina del Sur, 116 Coolstream Dr ofrece un espacioso diseño de una sola planta de 4 habitaciones y 2 baños con espacio para extenderse y establecerse. El centro de Columbia está aproximadamente a 20 minutos de distancia, con Fort Jackson, tiendas, restaurantes y rutas de cercanías a poca distancia, lo que hace que esta ubicación sea conveniente y esté bien conectada. En el interior, la casa se abre a amplias salas de estar y comedor, rematadas con resistentes pisos LVP, que crean una fluidez fluida entre los espacios principales. La pintura interior recién pintada mantiene la casa luminosa y cohesiva, mientras que los amplios ventanales aportan luz natural durante todo el día. La cocina, ubicada en el centro, cuenta con gabinetes de madera, encimeras laminadas y electrodomésticos de acero inoxidable, incluyendo una estufa de gas y un lavavajillas. Una encimera estilo península añade un práctico espacio de preparación y se conecta fácilmente con el comedor. La distribución de los dormitorios está cuidadosamente diseñada para una mayor flexibilidad. El dormitorio principal es amplio e incluye su propio baño, mientras que los tres dormitorios adicionales ofrecen opciones versátiles para dormir, trabajar o disfrutar de sus aficiones. Ambos baños cuentan con tocadores de líneas limpias y combinaciones de bañera y ducha, que equilibran la practicidad con la comodidad diaria. La combinación de pisos LVP y alfombra ayuda a definir las áreas de estar frente a los espacios privados. En la parte trasera, la casa está rodeada por un amplio jardín con árboles maduros, un acogedor espacio al aire libre para relajarse o disfrutar del aire fresco. Con su distribución flexible de cuatro dormitorios, un interior renovado y su proximidad al centro de Columbia y Fort Jackson, esta casa combina espacio, ubicación y comodidad para el día a día. ¡Solicite ahora! *Maymont Homes ofrece a los residentes soluciones convenientes, que incluyen facturación simplificada de servicios públicos y opciones flexibles de pago de alquiler. Contáctenos para obtener más detalles. Esta información se considera confiable, pero no está garantizada. Todas las medidas son aproximadas. Las especificaciones reales del producto y de la vivienda pueden variar en dimensiones o detalles. Las imágenes son solo para fines ilustrativos. Algunos programas y servicios pueden no estar disponibles en todas las áreas del mercado. Los precios y la disponibilidad están sujetos a cambios sin previo aviso. Los precios de alquiler anunciados no incluyen la tarifa de solicitud requerida, la tarifa de reserva parcialmente reembolsable (que se paga al aprobar la solicitud) ni la tarifa mensual obligatoria de administración de servicios públicos (en áreas de mercado seleccionadas). Los residentes deben mantener un seguro de inquilinos según lo especificado en su contrato de arrendamiento. Si no se proporciona un seguro de inquilinos de terceros, los residentes se inscribirán automáticamente en nuestra Póliza Maestra de Seguros por una tarifa. Algunas viviendas pueden estar ubicadas en comunidades que requieren una tarifa mensual para servicios o comodidades específicos de la comunidad. Para obtener más información, comuníquese con un representante de arrendamiento de la empresa. Igualdad de oportunidades de vivienda. La fecha estimada de disponibilidad está sujeta a cambios según los plazos de construcción y la confirmación de la mudanza. Esta propiedad permite visitas autoguiadas sin cita previa. Contáctenos para obtener más información.
Unidad
- $1,745 / Mes
- 4 Habitaciones
- 2 Baños
- 1768 sq. ft.
- Disponibilidad Ahora
116 Coolstream Dr se encuentra en County en el código postal .
Tarifas de alquiler y política de mascotas
Las siguientes cuotas se basan en información proporcionada por la comunidad y es posible que no incluyan cuotas adicionales o servicios básicos.
Perros
- Pet Rent$35 / mes
Gatos
- Pet Rent$35 / mes
Complementos personalizados
- Application Fee$55 por única vez
- Holding Deposit$550 por única vez
- Security Deposit$1,745 por única vez
- Utilities Setup Fee$25 por única vez
- Utilities Monthly Fee$10.95 por única vez
- Pet Screening Fee$25 por única vez
Explorar opciones de viaje
- En Coche--
- Caminando--
- En Bicicleta--
- Tránsito público--

Póngase en contacto
Columbia, SC 29223

Calificaciones de los barrios
Walk Score ®
Car-Dependent10 / 100
Bike Score ®
Somewhat Bikeable23 / 100
Soundscore ™
Active73 / 100
Educación local
Escuelas primarias y secundarias
Joseph Keels Elementary
Grados Escolares PK-5
Public
VV Reid School
Grados Escolares PK-4
Private
Dent Middle
Grados Escolares 6-8
Public
Mission Hope Foundation
Grados Escolares PK-9
Private
Richland Northeast High
Grados Escolares 9-12
Public
Covenant Classical Christian School
Grados Escolares K-12
Private
Datos de escuelas proporcionados por GreatSchools.org 2024 © 2024. Todos los derechos reservados.
Colegios y Universidades
Escuela
Tiempo de viaje (Distancia)
Allen University
En coche: 11 min (5.1 mi)
Benedict College
En coche: 11 min (6 mi)
Columbia International Univ.
En coche: 14 min (7.7 mi)
University of South Carolina
En coche: 14 min (7.9 mi)
Descubre a Northeast Arcadia Lakes, Columbia, SC
Centros Comerciales
Los compradores apreciarán la proximidad de 116 Coolstream Dr a Arcadia Lakes, 5410 y Two Notch Plaza. Arcadia Lakes está a 1.3 miles de distancia y 5410 está a 26 minutos a pie.
Aeropuertos
Vivir en Northeast Arcadia Lakes brinda fácil acceso a Columbia Metro, ubicado a solo 32 minutes de 116 Coolstream Dr.
Encuentra más alquileres en Columbia
Casas en Columbia por comodidades
- Casas en alquiler Mascotas permitidas en Columbia
- Casas asequibles en alquiler en Columbia
- Casas totalmente amuebladas en alquiler en Columbia
- Casas Modern en alquiler en Columbia
- Casas for Rent with con piscina in Columbia
- Casas for Rent with a con jardín in Columbia
- Casas for Rent with a con garaje in Columbia
- Casas for Rent with con chimenea in Columbia
- Casas for Rent with con Lavadora y secadora in Columbia
- Casas for Rent with con servicios pagados in Columbia




