811 Von Kolnitz Rd, Mount Pleasant, SC 29464
Qué ofrece este apartamento
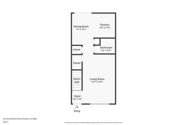
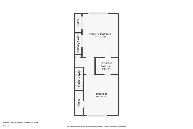
PRÓXIMAMENTE Esta casa estará disponible próximamente. Por favor, consulte la fecha estimada de disponibilidad. Cargos mensuales recurrentes: $10.95 -... Administración de servicios públicos Ubicada en el corazón de Mount Pleasant, SC, esta acogedora casa adosada en 811 Von Kolnitz Road ofrece una distribución cómoda con fácil acceso a todo lo que la zona ofrece. Con 2 dormitorios, 1.5 baños y 900 pies cuadrados, esta casa de dos pisos combina simplicidad con un diseño bien planificado que aprovecha al máximo cada espacio. Al entrar, encontrará una luminosa planta principal donde la sala de estar fluye naturalmente hacia el comedor y la cocina. Los pisos de madera noble recorren las áreas principales, agregando calidez y carácter, mientras que los grandes ventanales permiten la entrada de luz natural. La cocina está ubicada para ser funcional y práctica, ofreciendo amplios gabinetes y espacio de trabajo, con un medio baño cercano para mayor comodidad. En la planta superior, ambos dormitorios están cuidadosamente distribuidos para brindar privacidad, cada uno con proporciones cómodas y espacio de armario. El baño completo está ubicado en el centro, creando una distribución práctica que conecta ambas habitaciones. La escalera proporciona una separación natural entre las áreas de estar y descanso, lo que le da a la casa una sensación de fluidez distintiva. En la parte trasera, un área exterior privada con acceso a un patio crea una extensión sencilla de la casa, ideal para disfrutar del aire fresco o crear un espacio exterior relajado. Ubicada a solo 10 minutos de las playas de Isle of Palms y a unos 15 minutos del centro de Charleston, esta casa lo sitúa cerca de vistas costeras, restaurantes y tiendas, manteniendo una ubicación conveniente para el día a día. Con su distribución eficiente, pisos de madera noble y una ubicación privilegiada en Mount Pleasant, esta casa ofrece un gran equilibrio entre comodidad y accesibilidad. ¡Solicite ahora! *Maymont Homes ofrece a los residentes soluciones convenientes, que incluyen facturación de servicios públicos simplificada y opciones de pago de alquiler flexibles. Contáctenos para obtener más detalles. Esta información se considera confiable, pero no está garantizada. Todas las medidas son aproximadas. Las especificaciones reales del producto y la casa pueden variar en dimensiones o detalles. Las imágenes son solo para fines representativos. Algunos programas y servicios pueden no estar disponibles en todas las áreas del mercado. Los precios y la disponibilidad están sujetos a cambios sin previo aviso. Los precios de alquiler anunciados no incluyen la tarifa de solicitud, la tarifa de reserva parcialmente reembolsable (que se debe pagar al aprobarse la solicitud) ni la tarifa mensual obligatoria de administración de servicios públicos (en ciertas áreas). Los residentes deben mantener un seguro de inquilino según lo estipulado en su contrato de arrendamiento. Si no se proporciona un seguro de inquilino de terceros, los residentes se inscribirán automáticamente en nuestra póliza de seguro principal por un costo adicional. Algunas viviendas pueden estar ubicadas en comunidades que requieren una tarifa mensual para servicios o comodidades específicas de la comunidad. Para obtener más detalles, comuníquese con un representante de arrendamiento de la compañía. Igualdad de oportunidades de vivienda. La fecha estimada de disponibilidad está sujeta a cambios según los plazos de construcción y la confirmación de la mudanza. Contáctenos para programar una visita.
Unidad
- $1,925 / Mes
- 2 Habitaciones
- 1.5 Baños
- 900 sq. ft.
- Disponibilidad Ahora
811 Von Kolnitz Rd se encuentra en County en el código postal .
Cuotas y políticas
Las siguientes cuotas se basan en información proporcionada por la comunidad y es posible que no incluyan cuotas adicionales o servicios básicos.
Servicios y elementos básicos
- Utilities Monthly Fee$10.95 / mes
Elementos básicos por única vez
Vencimiento en la solicitud
- Application Fee$55
Vencimiento al momento de la mudanza
- Security Deposit$1,925
- Holding Deposit$550
Perros
- Pet Rent$35 / mes
Gatos
- Pet Rent$35 / mes
Complementos personalizados
- Pet Screening Fee$25
Situacional
- Non Refundable Pet Deposit$250
- Utilities Setup Fee$25
Aviso Legal sobre Tarifas de la Propiedad Based on community-supplied data and independent market research. Subject to change without notice. May exclude fees for mandatory or optional services and usage-based utilities.
Explorar opciones de viaje
- En Coche--
- Caminando--
- En Bicicleta--
- Tránsito público--

Póngase en contacto
Mount Pleasant, SC 29464

Calificaciones
Caminabilidad
Favorablemente apto para caminar50 / 100
Transporte Público
Transporte público limitado20 / 100
Facilidad para Conducir
Excepcionalmente apto para conducir100 / 100
Ciclabilidad
Un poco apto para andar en bici30 / 100
Viajes y tránsito

Educación local
Escuelas primarias y secundarias
Lucy Garrett Beckham High
Grados Escolares 9-12
Public
Datos de escuelas proporcionados por GreatSchools.org © 2026. Todos los derechos reservados.
Colegios y Universidades
Escuela
Tiempo de viaje (Distancia)
Trident Tech., Palmer
En coche: 11 min (6.5 mi)
Charleston School Of Law
En coche: 12 min (7 mi)
College of Charleston
En coche: 12 min (7.6 mi)
Medical Univ. of S.C.
En coche: 13 min (7.6 mi)
Descubre a Mt Pleasant, Mount Pleasant, SC
Centros Comerciales
Los compradores apreciarán la proximidad de 811 Von Kolnitz Rd a New Market Centre, Centre Oaks y Bowman Place. New Market Centre está a 1 mile de distancia y Centre Oaks está a 20 minutos a pie.
Parques y Recreación
Las actividades recreativas cerca de 811 Von Kolnitz Rd son abundantes. Descubre 2 parks dentro de 3.9 miles, incluidos Charles Pinckney National Historic Site y Palmetto Islands County Park.
Aeropuertos
Vivir en Mt Pleasant brinda fácil acceso a Charleston AFB/International, ubicado a solo 28 minutes de 811 Von Kolnitz Rd.
Encuentra más alquileres en Mount Pleasant
- Casas en alquiler Mascotas permitidas en Mount Pleasant
- Casas asequibles en alquiler en Mount Pleasant
- Casas totalmente amuebladas en alquiler en Mount Pleasant
- Casas Modern en alquiler en Mount Pleasant
- Casas for Rent with con piscina in Mount Pleasant
- Casas for Rent with a con jardín in Mount Pleasant
- Casas for Rent with a con garaje in Mount Pleasant
- Casas for Rent with con chimenea in Mount Pleasant
- Casas for Rent with con Lavadora y secadora in Mount Pleasant
- Casas for Rent with con servicios pagados in Mount Pleasant




