Qué ofrece este apartamento
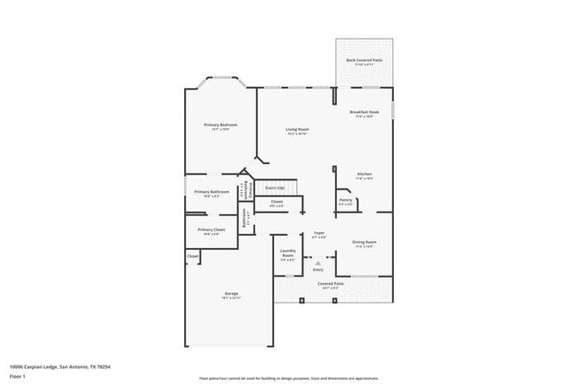
LISTA PARA MUDARSE Esta casa está lista para mudarse. Programe su recorrido ahora o comience su solicitud hoy. Maymont Homes se compromete a ofrecer precios... claros y por adelantado. Además del alquiler anunciado, los residentes pueden tener cargos mensuales, que incluyen un cargo de administración de servicios públicos de $10.95, un cargo de aguas residuales de $25.00 para hogares con sistemas sépticos y un cargo por servicios para hogares con tecnología de hogar inteligente, servicio de recolección de basura u otros servicios comunitarios. Esto no incluye servicios públicos ni cargos opcionales, que incluyen, entre otros, cargos por mascotas y seguro para inquilinos. Bienvenido a 10006 Caspian Ledge, una casa de dos pisos bellamente mantenida en San Antonio que ofrece una combinación excepcional de espacio, comodidad y diseño cuidadoso. Con 5 habitaciones y 4.5 baños en 3,217 pies cuadrados, esta casa es perfecta para aquellos que valoran el espacio para crecer y los espacios que invitan a la conexión. Pase por la entrada hacia un diseño abierto con pisos de baldosas y abundante luz natural. La espaciosa sala de estar se integra a la perfección con una cocina bien equipada, con cálidos gabinetes de madera, una amplia encimera y una barra de desayuno con vista a la sala de estar, ideal para comidas informales o para recibir invitados. Junto a ella, el comedor se encuentra junto a grandes ventanales que inundan la habitación de luz natural y crean un ambiente acogedor para cualquier ocasión. En la planta superior, encontrará dormitorios de gran tamaño diseñados para la privacidad y la relajación, incluyendo una suite principal con vestidor y baño en suite con bañera profunda, ducha independiente y lavabos dobles. Con varios baños y habitaciones versátiles, esta distribución se adapta fácilmente a diferentes necesidades y estilos de vida. En el exterior, un patio cubierto se abre a un patio trasero cercado, una extensión perfecta de la sala de estar. Ya sea para relajarse a la sombra o disfrutar de una tarde bajo el cielo texano, este espacio al aire libre es funcional y acogedor. Convenientemente ubicada cerca de las principales carreteras, centros comerciales y escuelas, esta casa en San Antonio ofrece el equilibrio perfecto entre comodidad y accesibilidad. ¡Solicite ahora y haga de 10006 Caspian Ledge su próxima dirección! *Maymont Homes ofrece a los residentes soluciones convenientes, que incluyen facturación simplificada de servicios públicos y opciones flexibles de pago de alquiler. Contáctenos para obtener más información. Esta información se considera confiable, pero no está garantizada. Todas las medidas son aproximadas. Las especificaciones reales del producto y de la vivienda pueden variar en dimensiones o detalles. Las imágenes son solo para fines ilustrativos. Algunos programas y servicios pueden no estar disponibles en todas las áreas del mercado. Los precios y la disponibilidad están sujetos a cambios sin previo aviso. Los precios de alquiler anunciados no incluyen la tarifa de solicitud requerida, la tarifa de reserva parcialmente reembolsable (pagadera al momento de la aprobación de la solicitud) ni la tarifa mensual obligatoria de administración de servicios públicos (en áreas de mercado seleccionadas). Los residentes deben mantener un seguro de inquilinos según lo especificado en su contrato de arrendamiento. Si no se proporciona un seguro de inquilinos de terceros, los residentes se inscribirán automáticamente en nuestra Póliza Maestra de Seguros por una tarifa. Algunas viviendas pueden estar ubicadas en comunidades que requieren una tarifa mensual para servicios o comodidades específicos de la comunidad. Para obtener más información, comuníquese con un representante de arrendamiento de la empresa. Igualdad de oportunidades de vivienda. Esta propiedad está sujeta a la administración de la asociación de propietarios (HOA); pueden aplicarse restricciones y convenios. La fecha estimada de disponibilidad está sujeta a cambios según los plazos de construcción y la confirmación de la mudanza. Esta propiedad permite visitas autoguiadas sin cita previa. Contáctenos para más detalles.
Unidad
- $2,445 / Mes
- 5 Habitaciones
- 4.5 Baños
- 3,217 sq. ft.
- Disponibilidad Ahora
10006 Caspian Ledge se encuentra en County en el código postal .
Tarifas de alquiler y política de mascotas
Las siguientes cuotas se basan en información proporcionada por la comunidad y es posible que no incluyan cuotas adicionales o servicios básicos.
Complementos personalizados
- Application Fee$55 por única vez
- Holding Deposit$550 por única vez
- Security Deposit$2,445 por única vez
Explorar opciones de viaje
- En Coche--
- Caminando--
- En Bicicleta--
- Tránsito público--

Póngase en contacto
San Antonio, TX 78254

Calificaciones de los barrios
Walk Score ®
Car-Dependent12 / 100
Bike Score ®
Somewhat Bikeable30 / 100
Soundscore ™
Calm83 / 100
Viajes y tránsito

Educación local
Escuelas primarias y secundarias
Krueger Elementary School
Grados Escolares PK-5
Public
Jefferson Middle
Grados Escolares 6-8
Public
O'Connor High School
Grados Escolares 9-12
Public
Scenic Hills SDA Christian School
Grados Escolares PK-12
Private
Atonement Academy
Grados Escolares PK-12
Private
Datos de escuelas proporcionados por GreatSchools.org 2024 © 2024. Todos los derechos reservados.
Colegios y Universidades
Escuela
Tiempo de viaje (Distancia)
Northwest Vista College
En coche: 13 min (6.8 mi)
UT San Antonio
En coche: 15 min (8.7 mi)
Galen Nursing - San Antonio
En coche: 19 min (9.9 mi)
UT Health San Antonio
En coche: 21 min (10.5 mi)
Descubre a Far West Side, San Antonio, TX
Centros Comerciales
Los compradores apreciarán la proximidad de 10006 Caspian Ledge a Galm Village. Galm Village está a 1.9 miles de distancia.
Parques y Recreación
Las actividades recreativas cerca de 10006 Caspian Ledge son abundantes. Descubre 2 parks dentro de 5 miles, incluidos Government Canyon State Natural Area y Nani Falcone Park.
Aeropuertos
Vivir en Far West Side brinda fácil acceso a San Antonio International, ubicado a solo 28 minutes de 10006 Caspian Ledge.
Find More Rentals in San Antonio
Otros tipos de alquiler
Casas en San Antonio por comodidades
- Casas en alquiler Mascotas permitidas en San Antonio
- Casas asequibles en alquiler en San Antonio
- Casas totalmente amuebladas en alquiler en San Antonio
- Casas Modern en alquiler en San Antonio
- Casas for Rent with con piscina in San Antonio
- Casas for Rent with a con jardín in San Antonio
- Casas for Rent with a con garaje in San Antonio
- Casas for Rent with con chimenea in San Antonio
- Casas for Rent with a con patio in San Antonio
- Casas for Rent with con Lavadora y secadora in San Antonio
- Casas for Rent with con servicios pagados in San Antonio




