
30523 SE Lake Retreat N Dr, Ravensdale, WA 98051
Qué ofrece este apartamento
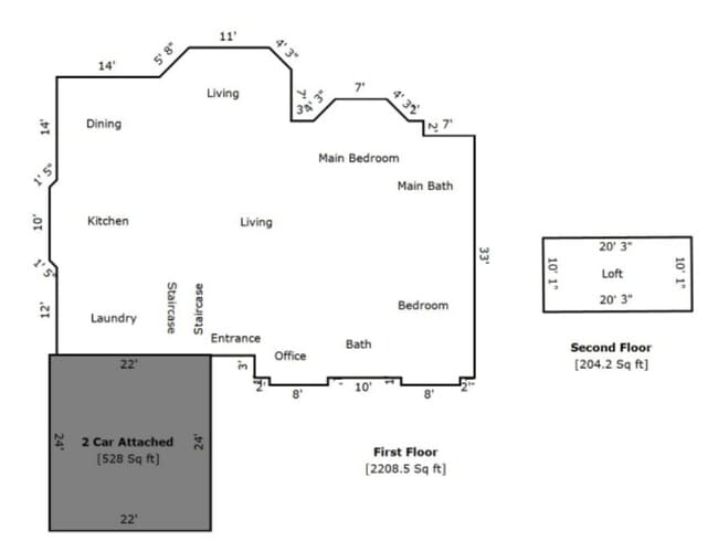
La casa está diseñada como una propiedad compartida, donde los propietarios utilizan un nivel inferior independiente de forma ocasional. El espacio habitable... superior ofrece un ambiente privado y confortable, complementado por áreas exteriores compartidas cuidadosamente diseñadas. Disfrute de la vida frente al lago en el hermoso Lake Retreat en esta espaciosa propiedad compartida que ofrece aproximadamente 2400 pies cuadrados de espacio habitable, un plano de planta abierto, amplias habitaciones, un altillo y una tercera habitación flexible ideal para una oficina, habitación de invitados o espacio adicional. La luz natural inunda la casa y resalta las impresionantes vistas al lago, mientras que el garaje extragrande para 2 autos proporciona mucho espacio para estacionar y almacenar. • Propiedad compartida frente al lago en Lake Retreat • Aprox. 223 m² • Distribución de 3 habitaciones con altillo • La tercera habitación no tiene armario y es ideal como oficina, habitación de invitados o sala multiusos • Garaje extragrande para 2 coches • Agua, alcantarillado, basura e internet incluidos en el alquiler • El inquilino paga la electricidad • Tarifa de limpieza de alfombras no reembolsable de 200 $ • Tarifa administrativa no reembolsable de 100 $ a pagar al mudarse • Depósito de seguridad de 3650 $ para solicitantes cualificados Sin patio cercado Se admiten mascotas caso por caso con la aprobación del propietario y un depósito adicional para mascotas Requisitos de alquiler: Puntuación crediticia mínima de 625 Ingresos mínimos 3 veces el alquiler #1411
Unidad
- $3,850 / Mes
- 2 Habitaciones
- 3 Baños
- 4520 sq. ft.
- Disponibilidad Ahora
Comodidades del apartamento
- Lavavajillas
30523 SE Lake Retreat N Dr se encuentra en County en el código postal .
Cuotas y políticas
Las siguientes cuotas se basan en información proporcionada por la comunidad y es posible que no incluyan cuotas adicionales o servicios básicos.
No se permiten mascotas
Aviso Legal sobre Tarifas de la Propiedad Based on community-supplied data and independent market research. Subject to change without notice. May exclude fees for mandatory or optional services and usage-based utilities.
Explorar opciones de viaje
- En Coche--
- Caminando--
- En Bicicleta--
- Tránsito público--
Póngase en contacto
Ravensdale, WA 98051
Calificaciones
Caminabilidad
No accesible a pie10 / 100
Facilidad para Conducir
Excepcionalmente apto para conducir90 / 100
Ciclabilidad
Un poco apto para andar en bici30 / 100
Viajes y tránsito

Educación local
Escuelas primarias y secundarias
Blossoming Hill Montessori School
Grados Escolares PK-6
Private
Tahoma Jr High School
Grados Escolares 8-9
Public
Summit Trail Middle School
Grados Escolares 6-8
Public
Tahoma Open Doors
Grados Escolares 9-12
Public
Datos de escuelas proporcionados por GreatSchools.org © 2026. Todos los derechos reservados.
Colegios y Universidades
Escuela
Tiempo de viaje (Distancia)
Green River Community College
En coche: 27 min (14.1 mi)
Descubre a Outlying King County, Ravensdale, WA
Aeropuertos
Vivir en Outlying King County brinda fácil acceso a Seattle-Tacoma International, ubicado a solo 46 minutes de Lake Retreat Waterfront Living | Spacious Home with Views + Utilities Included.
Propiedades cercanas que te pueden gustar
Dentro de 50 millas de Lake Retreat Waterfront Living | Spacious Home with Views + Utilities Included









