
330 Richmond St W, Toronto, ON M5V 0M4
Ce que cet appartement offre
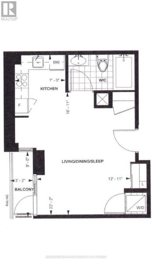
Suite de luxe pour célibataire au cœur du quartier des spectacles et des affaires. Aménagement très fonctionnel avec une cuisine lumineuse équipée... d'électroménagers et d'armoires haut de gamme, une salle de bain complète et un balcon privé. Prestations de luxe : conciergerie 24 h/24, centre de conditionnement physique, spa, salle de réception, piscine et terrasse extérieure. Un casier est inclus. (id : 63800) ID : 2032285
Unité 805
- $2,000 / Mois
- Studio
- 1 Sdb
- Disponible Maintenant
Commodités de l'appartement
- Climatisation
- Espace d'entreposage
- Planchers de bois franc
330 Richmond St W Unité 805 est situé à Toronto, dans le code postal M5V 0M4.
Explorez les options de transport
- Temps de conduite--
- Temps de marche--
- Temps de balade à vélo--
- Transport en commun--
Communiquez avec nous
Cotes du quartier
Walk Score ®
Walker's Paradise100 / 100
Transit Score ®
Rider's Paradise100 / 100
Bike Score ®
Biker's Paradise98 / 100
Déplacements et transport en commun

Éducation locale
Collèges & Universités
École
Temps de trajet (Distance)
Toronto Metropolitan Universit
Voiture: 3 min (1.8 km)
Ryerson University
Voiture: 4 min (2.2 km)
University of Toronto
Voiture: 5 min (2.6 km)
Univ. of St. Michael's
Voiture: 6 min (2.6 km)
Découvrez Waterfront Communities-The Island, Toronto, ON
Centres commerciaux
Les acheteurs apprécieront 330 Richmond St W Unité 805 la proximité de CF Toronto Eaton Centre , 339 College et Shops at King Liberty. CF Toronto Eaton Centre est à 2.3 kilometers de distance, et 339 College est à quelques 19 minutes à pied.
Navette
Avec un transport en commun de premier ordre et un TransitScore de 100, Waterfront Communities-The Island est rider's paradise. À moins de 6.3 kilometers de 330 Richmond St W Unité 805, vous trouverez Queen Street West At Soho Street, Queen Street West At John Street et Spadina Avenue At Queen Street West.
Aéroports
Vivre à Waterfront Communities-The Island offre un accès facile à Billy Bishop Toronto City, situé à seulement 8 minutes de 330 Richmond St W Unité 805. Un autre aéroport à proximité est Toronto Pearson International, situé à 33.5 kilometers de distance.
Propriétés à proximité qui pourraient vous plaire
Within 80 Kilometers of 330 Richmond St W Unité 805








