
What This House Offers
Warm up with Winter Savings! Move in by 01/15 and receive a $250 rent credit — PLUS get a FREE application fee with approved application!
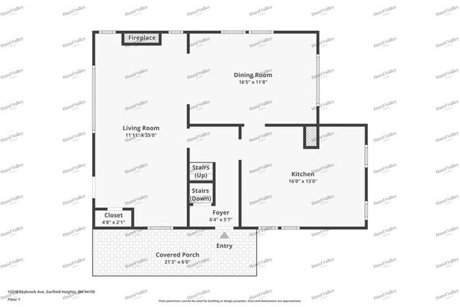
This 1,788 square foot... residence offers four bedrooms and one and a half bathrooms across two levels. The exterior features a combination of brick and siding, with a covered front porch supported by brick columns. Inside, the home includes multiple living areas with dark wood flooring and light-colored walls. A fireplace with a brick surround and white mantel serves as a central feature in the main living space, flanked by windows for natural light.
The kitchen is equipped with wooden cabinetry, light countertops, and a double-basin sink positioned beneath a window. Appliances include a refrigerator with a built-in water and ice dispenser. The layout includes a bay window in one room, built-in shelving, and multiple storage closets. Bedrooms and additional living spaces are carpeted, with neutral wall tones and white trim throughout.
The bathroom fixtures are well maintained and ready for use. A basement utility area includes a wall-mounted sink, exposed ductwork, and shelving. The property also includes a detached garage structure with visible framing and siding, situated in a snowy outdoor setting.
This property is located in Garfield Heights, Ohio.
Bedrooms: 4
Bathrooms: 1.5
SQ. FT: 1,788
Flooring: Tile, Hard-wood, Carpet
Utilities: Electric, Gas, Water, Trash, Sewer and Snow Removal
Basement: yes / Unfinished
Laundry: Hookups available
Pets: Allowed - Allowed with additional pet fees and screening.
Security Deposit: $1,395
Move in fee: $125.00
Application Fee: $55.00 per adult application
Resident Benefit Package: $49.95 Monthly Charge (see details below)
A full list of fees can be found at
DISCLOSURES:
There may already be applications submitted for this property at the time you submit your application. We cannot guarantee this home, although it may be available at the time your application is submitted. A security deposit will not be accepted until the rental application is approved.
Looking for a new place to call home? Search for open rentals with Hazel Valley where comfort and happiness are our top priority. All Hazel Valley Homes are enrolled in the Resident Benefits Package (RBP) for $49.95/month which includes renters insurance, HVAC air filter delivery (for applicable properties), credit building to help boost your credit score with timely rent payments, $1M Identity Protection, move-in concierge service making utility connection and home service setup a breeze during your move-in, our best-in-class resident rewards program, and much more!
More details upon qualified application
This property allows self guided viewing without an appointment. Contact for details.
Unit
- $1,395 / month
- 4 Beds
- 1.5 Baths
- 1788 sq. ft.
- Available Now
13310 Saybrook Ave is located in Garfield Heights, Ohio in the 44105 zip code.
Rental Fees and Pet Policies
The fees below are based on community-supplied data and may exclude additional fees and utilities.
Personalized Add-Ons
- Admin Fee$125 one-time
- Application Fee$55 one-time
- Resident Benefits Package$49.95 one-time
Explore Commute Options
- Drive Time--
- Walk Time--
- Bike Ride Time--
- Public Transit--
Get In Touch
Garfield Heights, OH 44105
Neighborhood Scores
Walk Score ®
Car-Dependent39 / 100
Transit Score ®
Some Transit37 / 100
Bike Score ®
Somewhat Bikeable14 / 100
Soundscore ™
Calm81 / 100
Travel and Transit

Local Education
Primary and Secondary Schools
Archbishop Lyke-St Timothy Campus
Grades 5-8
Private
Ramah Junior Academy
Grades K-8
Private
Miles School
Grades PK-8
Public
Robert H Jamison School
Grades PK-8
Public
Cleveland School Of The Arts High School
Grades 9-12
Public
John Hay Early College High School
Grades 9-12
Public
Trinity High School
Grades 9-12
Private
Glenville High School
Grades 2-12
Public
Data provided by GreatSchools.org 2024 © 2024. All rights reserved.
Colleges and Universities
School
Commute Time (Distance)
Cuyahoga C.C., Eastern Campus
Drive: 13 min (5.9 mi)
Case Western Reserve
Drive: 14 min (6.1 mi)
Cuyahoga C.C., East
Drive: 15 min (7.2 mi)
John Carroll University
Drive: 18 min (7.3 mi)
Discover Garfield Heights, Garfield Heights, OH
Shopping Centers
Shoppers will appreciate 13310 Saybrook Ave proximity to Miles Avenue Shopping Plaza and Miles Pointe Crossing. Miles Avenue Shopping Plaza is 0.7 miles away, and Miles Pointe Crossing is within an 18 minute walk.
Commuting
With a TransitScore of 37, 13310 Saybrook Ave has some transit, including 10 transit stops within 20 miles. Transit options include Onaway and Ashby.
Parks and Recreation
Recreational activities near 13310 Saybrook Ave are plentiful. Discover 3 parks within 5 miles, including Garfield Park Nature Center, Nature Center at Shaker Lakes, and Ohio & Erie Canal Reservation.
Airports
Living in Garfield Heights provides easy access to Cleveland-Hopkins International, located just 28 minutes from 13310 Saybrook Ave.
Nearby Properties You Might Like
Within 50 Miles of 13310 Saybrook Ave
Find More Rentals in Garfield Heights
Garfield Heights Houses for Rent by Amenity
- Houses with Pets Allowed in Garfield Heights
- Affordable Houses for Rent in Garfield Heights
- Fully Furnished Homes for Rent in Garfield Heights
- Homes for Rent with a Garage in Garfield Heights
- Houses for Rent with Washer and Dryer in Garfield Heights
- Houses for Rent with Utilities Paid in Garfield Heights









