
934 Winslow Ct, Auburn, AL 36830
Qué ofrece este adosado
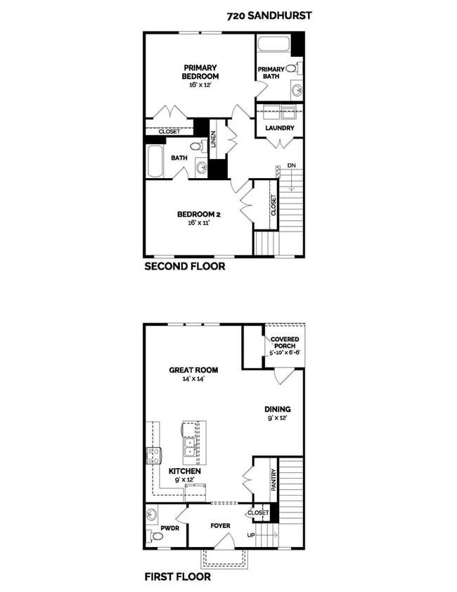
¡Sea el primero en llamar hogar a esta impresionante casa adosada de 2 dormitorios y 2.5 baños! Construida por Stone Martin Builders, esta residencia de dos... pisos combina un diseño moderno con una comodidad superior en una de las comunidades nuevas más deseables de Auburn. En el interior, encontrará acabados de lujo en todas partes, incluyendo una espaciosa sala de estar de concepto abierto, una elegante cocina de diseño y dos dormitorios privados con baño en la planta superior, perfectos para compañeros de piso o cualquier persona que desee comodidad y privacidad. Ubicación inmejorable Ubicado justo enfrente del nuevo Ann Pearson Park y a menos de 8 km del Jordan-Hare Stadium y la Universidad de Auburn, Asbury Hill ofrece fácil acceso al campus, tiendas, restaurantes y la emoción del día del partido. Aspectos destacados que le encantarán: - Construcción completamente nueva, nunca habitada - 2 dormitorios | 2.5 baños | Diseño de 2 pisos - Cocina abierta + sala de estar con acabados de lujo - Dos amplias habitaciones con baño privado - Accesorios modernos y detalles mejorados en toda la casa - Mantenimiento del césped incluido Ya sea que seas estudiante, profesional o simplemente alguien que desea estilo + comodidad en un espacio nuevo y fresco, esta casa adosada lo ofrece todo. ¡Ahora en alquiler! ¡Disponibilidad limitada en esta nueva comunidad! **En PL Management Company, nos esforzamos por brindar una experiencia rentable y conveniente. Por eso brindamos un Paquete de Beneficios para Residentes (RBP) para abordar los problemas comunes de nuestros residentes y brindar servicios esenciales para nuestros inquilinos. Además del alquiler mensual, brindamos control de plagas, entrega de filtros de aire, asistencia para la configuración de servicios públicos, desarrollo de crédito y más a una tarifa de $40.00/mes, requerido con el alquiler. Los residentes tienen la opción de personalizar algunos componentes durante la incorporación, lo que puede aumentar o disminuir el monto mensual. Además del RBP, brindamos acceso a un seguro de responsabilidad civil que se ajusta a sus necesidades. Más detalles al momento de la solicitud. ***Depósito de seguridad: Equivalente a 1 mes de alquiler. Fecha de vencimiento del alquiler: el 1 de cada mes. ¡No fumar! Los ingresos deben ser al menos 3-4 veces el monto del alquiler. Las solicitudes se procesan de una en una por orden de llegada. Tenga en cuenta que no podemos reservar propiedades para fechas de mudanza posteriores a la fecha disponible. ****Para recibir actualizaciones de la propiedad y registrarse para una cita, envíe un mensaje de texto con su nombre, dirección de correo electrónico, número de teléfono celular y dirección actual junto con una foto de su licencia de conducir a .
Unidad
- $1,900 / Mes
- 2 Habitaciones
- 2.5 Baños
- 1399 sq. ft.
- Disponibilidad Ahora
Casa adosada
- Lavavajillas
934 Winslow Ct se encuentra en County en el código postal .
Cuotas y políticas
Las siguientes cuotas se basan en información proporcionada por la comunidad y es posible que no incluyan cuotas adicionales o servicios básicos.
Elementos básicos por única vez
Vencimiento al momento de la mudanza
- Security Deposit - Refundable$2,000
Aviso Legal sobre Tarifas de la Propiedad Based on community-supplied data and independent market research. Subject to change without notice. May exclude fees for mandatory or optional services and usage-based utilities.
Explorar opciones de viaje
- En Coche--
- Caminando--
- En Bicicleta--
- Tránsito público--
Póngase en contacto
Auburn, AL 36830
Calificaciones
Facilidad para Conducir
Excepcionalmente apto para conducir100 / 100
Ciclabilidad
Un poco apto para andar en bici20 / 100
Educación local
Escuelas primarias y secundarias
Ogletree School
Grados Escolares K-5
Public
Auburn Early Ed Center
Grados Escolares PK-5
Public
Auburn Jr High School
Grados Escolares 6-8
Public
Sanford Middle School
Grados Escolares K-8
Public
Village Montessori School
Grados Escolares K-8
Private
Auburn High School
Grados Escolares 9-12
Public
Lee-Scott Academy
Grados Escolares PK-12
Private
Datos de escuelas proporcionados por GreatSchools.org © 2026. Todos los derechos reservados.
Colegios y Universidades
Escuela
Tiempo de viaje (Distancia)
Auburn University
En coche: 31 min (13.4 mi)
Descubre a Auburn, AL
Aeropuertos
Vivir en Auburn brinda fácil acceso a Columbus, ubicado a solo 66 minutes de 1ST MONTH FREE!!.
Propiedades cercanas que te pueden gustar
Dentro de 50 millas de 1ST MONTH FREE!!


Club 34
12 Meses de Arrendamiento

Prose Columbus

Lullwater Apartments

Midland Falls Apartment Homes





