
21126 Yankee Valley Rd, Hidden Valley Lake, CA 95467
Qué ofrece este apartamento
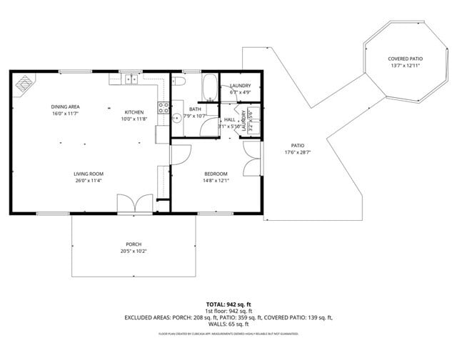
Bonita unidad de vivienda unifamiliar (ADU) en una magnífica propiedad que incluye agua, alcantarillado, electricidad, internet y recolección de basura. Cuenta... con una amplia sala de estar con estufa de leña, dormitorio independiente, vestidor y un baño elegante con ducha sobre la bañera. Se puede negociar el uso de la piscina/terraza por temporada, así como espacio de almacenamiento adicional si se desea. MLS# LC25277041
Unidad
- $1,900 / Mes
- 1 Habitación
- 1 Baño
- 942 sq. ft.
- Disponibilidad Dec 18
Comodidades del apartamento
- Aire acondicionado
- Calefacción
- Chimenea
- Conexiones para lavadora/secadora
- Cubierta
- Encimeras de granito
- Fogón
- Lavavajillas
- Microondas
- Nevera
- Patio
- Suelos de vinilo
- Ventanas de doble panel
- Zona de eliminación de desechos
Características de la comunidad
- Piscina exterior
- Utilidades incluidas
21126 Yankee Valley Rd se encuentra en County en el código postal .
Tarifas de alquiler y política de mascotas
Las siguientes cuotas se basan en información proporcionada por la comunidad y es posible que no incluyan cuotas adicionales o servicios básicos.
Servicios y elementos básicos
Elementos básicos por única vez
Explorar opciones de viaje
- En Coche--
- Caminando--
- En Bicicleta--
- Tránsito público--
Póngase en contacto
Hidden Valley Lake, CA 95467

Copyright 2025 © California Regional MLS. All rights reserved.
Calificaciones de los barrios
Bike Score ®
Somewhat Bikeable9 / 100
Viajes y tránsito

Educación local
Colegios y Universidades
Escuela
Tiempo de viaje (Distancia)
Yuba College, Clear Lake
En coche: 30 min (15 mi)
Descubre a Hidden Valley Lake, CA
Aeropuertos
Vivir en Hidden Valley Lake brinda fácil acceso a Charles M Schulz - Sonoma County, ubicado a solo 75 minutes de 21126 Yankee Valley Rd.
Propiedades cercanas que te pueden gustar
Dentro de 50 millas de 21126 Yankee Valley Rd
Find More Rentals in Hidden Valley Lake
Casas en Hidden Valley Lake por comodidades
- Casas en alquiler Mascotas permitidas en Hidden Valley Lake
- Casas for Rent with con piscina in Hidden Valley Lake
- Casas for Rent with a con garaje in Hidden Valley Lake
- Casas for Rent with con chimenea in Hidden Valley Lake
- Casas for Rent with con Lavadora y secadora in Hidden Valley Lake
- Casas for Rent with con servicios pagados in Hidden Valley Lake









