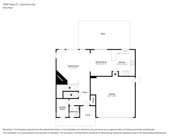
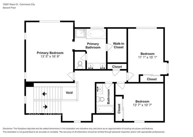
10297 Waco Ct, Commerce City, CO 80022
El postulante tiene derecho a proporcionar a administrador o dueño de la propiedad un "Informe portátil de verificación de antecedentes del inquilino (PTSR, por su sigla en inglés) de no más de 30 días de antigüedad, como se establece en el párrafo § 38-12-902(2.5) de los Estatutos Revisados de Colorado; y 2) si el Postulante proporciona a administrador o dueño de la propiedad un PTSR, administrador o dueño de la propiedad tiene prohibido: a) cobrar al Postulante un honorario por postulación de alquiler; o b) cobrar al Postulante un honorario para que administrador o dueño de la propiedad acceda o use el PTSR.
Qué ofrece este apartamento
Alquila esta casa y obtén más de la administración profesional de propiedades de Invitation Homes. Esta casa viene completamente equipada con comodidades de... calidad, servicios imprescindibles, tecnología de punta y mantenimiento profesional ProCare®. Tu pago mensual total estimado es de $2858.90. Esto cubre tu renta base, $2799.00 + nuestros servicios requeridos diseñados para hacerte la vida más fácil: Tarifa de entrega de filtro de aire ($9.95), Casa inteligente con timbre de video ($40) y Tarifa de servicio de facturación de servicios públicos ($9.95). La renta base varía según el plazo de arrendamiento seleccionado. Necesitas una casa que puedas hacer tuya. Aquí está. Notarás mucha luz natural entrando a la casa tan pronto como cruces la entrada de concepto abierto. Pisos de tablones de vinilo de lujo y alfombra se extienden por todos los espacios compartidos de la casa. La casa ofrece una acogedora sala de estar con una chimenea terminada, perfecta para noches de cine en familia o tiempo a solas. Te encantará la hermosa cocina, completa con electrodomésticos de acero inoxidable, encimeras de granito y gabinetes de madera. Y cuando necesite un respiro de aire fresco, salga a un patio trasero cercado con un patio listo para el brunch. ¡Solicite en línea hoy mismo! Invitation Homes cumple con todas las leyes aplicables relacionadas con la fuente de ingresos, incluyendo CRS 38-12-904(1)(c). Si descubrimos que está solicitando con asistencia, su puntaje crediticio no se considerará para su elegibilidad. Los solicitantes tienen derecho a proporcionar un informe portátil de evaluación de inquilinos, según se define en CRS 38-12-902(2.5). Si proporciona un informe portátil de evaluación de inquilinos, Invitation Homes tiene prohibido cobrar una tarifa de solicitud de alquiler; o cobrarle una tarifa para que Invitation Homes acceda o use dicho informe. En Invitation Homes, ofrecemos casas en alquiler que admiten mascotas, con patio y tecnología Smart Home en vecindarios increíbles de todo el país. Viva en una casa excelente sin las complicaciones y el compromiso a largo plazo de ser propietario. Descubra la casa de sus sueños con Invitation Homes. Nuestro paquete Lease Easy, que incluye Smart Home, entrega de filtro de aire y administración de servicios públicos, es una parte clave de su estilo de vida de arrendamiento sin preocupaciones. Estos servicios son requeridos por su contrato de arrendamiento con un costo mensual adicional. También pueden aplicarse tarifas mensuales por mascotas y piscinas. Características y comodidades de la casa: Porche cubierto, patio cercado, chimenea, garaje, encimeras de granito, plazos de arrendamiento largos, tablones de vinilo de lujo, patio, se admiten mascotas, iluminación empotrada, Smart Home, electrodomésticos de acero inoxidable, azulejos, techos abovedados, vestidor, conexiones para lavadora/secadora y administración profesional de Invitation Homes. Esta casa Invitation Home está siendo disfrutada por otro residente, pero estará disponible pronto. Aún puede presentar una solicitud: contáctenos para obtener más detalles o solicite ahora. Invitation Homes es un arrendador de vivienda equitativo bajo la FHA. Pueden aplicarse las leyes locales, estatales y federales aplicables. Se aplican términos y condiciones adicionales. Este listado no es una oferta de alquiler. Debe enviar información adicional, incluyendo una solicitud de alquiler y una tarifa de solicitud. Se considera que toda la información de arrendamiento es precisa, pero es posible que haya habido cambios desde que se tomaron las fotografías y se estima la superficie en metros cuadrados. Además, los precios y las fechas pueden cambiar sin previo aviso. Consulte el sitio web de InvitationHomes para obtener más información. Tenga cuidado con las estafas: Los empleados de Invitation Homes nunca le pedirán su nombre de usuario ni contraseña. Invitation Homes no se anuncia en Craigslist, Social Serve, etc. Somos propietarios de nuestras casas; no hay propietarios privados. Todos los fondos para alquilar con Invitation Homes se pagan directamente a través de nuestro sitio web, nunca mediante transferencia bancaria ni aplicaciones de pago como Zelle, PayPal o Cash App. Para obtener más información, envíe una consulta para esta casa. Las solicitudes están sujetas a nuestros requisitos de calificación. Se aplican términos y condiciones adicionales. CONSENTIMIENTO PARA LLAMADAS Y MENSAJES DE TEXTO: Al ingresar su información de contacto, usted consiente expresamente recibir correos electrónicos, llamadas y mensajes de texto de Invitation Homes, incluso por marcador automático, voz pregrabada o artificial, e incluso comunicaciones de marketing. Pueden aplicarse tarifas de mensajes y datos. También acepta nuestros Términos de uso y nuestra Política de privacidad.
Unidad
- $2,799 / Mes
- 3 Habitaciones
- 2.5 Baños
- 1,905 sq. ft.
- Disponibilidad Oct 28
Comodidades del apartamento
- Chimenea
- Patio
- Porche
- Techo abovedado
- Vestidores
Características de la comunidad
- Garajes
- Recinto cerrado
10297 Waco Ct se encuentra en County en el código postal .
Tarifas de alquiler y política de mascotas
Las siguientes cuotas se basan en información proporcionada por la comunidad y es posible que no incluyan cuotas adicionales o servicios básicos.
Perros Se admiten
- Air Filter Delivery Fee$10/mes
- Smart Home with video doorbell$40/mes
- Utility Billing Service Fee$10/mes
Se admiten gatos
- Tarifa no especificada
Se admiten perros
- Tarifa no especificada
Estacionamiento
- Garaje--
Explorar opciones de viaje
- En Coche--
- Caminando--
- En Bicicleta--
- Tránsito público--

Póngase en contacto
Commerce City, CO 80022

Calificaciones de los barrios
Walk Score ®
Car-Dependent36 / 100
Transit Score ®
Minimal Transit24 / 100
Bike Score ®
Bikeable57 / 100
Soundscore ™
Active77 / 100
Viajes y tránsito

Educación local
Escuelas primarias y secundarias
Second Creek Elementary School
Grados Escolares PK-5
Public
Primrose School At Reunion
Grados Escolares PK-K
Private
Otho E Stuart Middle School
Grados Escolares 6-8
Public
Prairie View High School
Grados Escolares 9-12
Public
Elmwood Baptist Academy
Grados Escolares PK-12
Private
Datos de escuelas proporcionados por GreatSchools.org 2024 © 2024. Todos los derechos reservados.
Colegios y Universidades
Escuela
Tiempo de viaje (Distancia)
Front Range C.C., Brighton
En coche: 17 min (10.1 mi)
Community College of Aurora
En coche: 21 min (12.7 mi)
University of Colorado Denver
En coche: 21 min (13.5 mi)
Descubre a Outer Northeast Adams County, Commerce City, CO
Centros Comerciales
Shoppers will appreciate 10297 Waco Ct proximity to Reunion Village and North Range Town Center. Reunion Village is 0.3 miles away, and North Range Town Center is within a 37 minute walk.
Aeropuertos
Vivir en Outer Northeast Adams County brinda fácil acceso a Denver International, ubicado a solo 15 minutes de 10297 Waco Ct.
Find More Rentals in Commerce City
Casas en Commerce City por comodidades
- Casas en alquiler Mascotas permitidas en Commerce City
- Casas asequibles en alquiler en Commerce City
- Casas totalmente amuebladas en alquiler en Commerce City
- Casas Modern en alquiler en Commerce City
- Casas for Rent with a con jardín in Commerce City
- Casas for Rent with a con garaje in Commerce City
- Casas for Rent with con chimenea in Commerce City
- Casas for Rent with a con patio in Commerce City
- Casas for Rent with con Lavadora y secadora in Commerce City
- Casas for Rent with con servicios pagados in Commerce City




