
3474 SW 109th Dr, Gainesville, FL 32608
Qué ofrece este apartamento
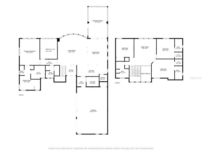
Experimente la elegancia moderna y la armonía atemporal con el plano Marbella, que ofrece 4 dormitorios, 4 baños y medio y una oficina exclusiva, enclavado en... la codiciada comunidad de Oakmont. Esta exquisita casa está estratégicamente ubicada en un terreno esquinero de primera calidad, con vistas a un exuberante terreno de conservación, sin vecinos a la derecha ni detrás, lo que proporciona una privacidad y serenidad inigualables. Una característica destacada de esta casa es su entrada principal orientada al este, que recibe el sol de la mañana e inunda de luz natural las zonas de estar centrales. En el corazón de la residencia se encuentra una impresionante cocina, sala de estar y comedor de concepto abierto. Amplios ventanales enmarcan impresionantes vistas al patio trasero privado y a la tranquila zona de conservación, a la vez que inundan el espacio de cálida luz natural. Justo después del estudio, la lujosa suite principal ofrece un remanso de paz con un amplio vestidor y un baño tipo spa. En la planta superior, la distribución es ideal para la familia y los invitados, con dos dormitorios privados para invitados con baño en suite, un versátil loft o segunda sala de estar, y un tercer dormitorio/oficina con un baño completo adicional. Ya sea para reuniones o para disfrutar de momentos de tranquilidad, cada espacio está diseñado para disfrutar de la luz, la comodidad y la conexión con la naturaleza. Otras características destacadas incluyen un aseo en la planta baja, un amplio espacio de almacenamiento bajo la escalera, un porche trasero pavimentado con mosquitero, ideal para tardes tranquilas, una despensa de gran tamaño y un garaje para tres autos. Esta casa es una singular combinación de diseño moderno y belleza natural, ofreciendo no solo un lugar para vivir, sino un estilo de vida para apreciar. MLS# GC536091
Unidad
- $4,995 / Mes
- 4 Habitaciones
- 4.5 Baños
- 3,219 sq. ft.
- Disponibilidad Ahora
Características de la comunidad
- Garajes
3474 SW 109th Dr se encuentra en County en el código postal .
Tarifas de alquiler y política de mascotas
Las siguientes cuotas se basan en información proporcionada por la comunidad y es posible que no incluyan cuotas adicionales o servicios básicos.
Servicios y elementos básicos
Elementos básicos por única vez
Explorar opciones de viaje
- En Coche--
- Caminando--
- En Bicicleta--
- Tránsito público--
Póngase en contacto
Gainesville, FL 32608

Information is provided by My Florida Regional MLS DBA Stellar MLS. Information deemed reliable but not guaranteed. All properties are subject to prior sale, change or withdrawal. Listing(s) information is provided exclusively for consumers' personal, non-commercial use and may not be used for any purpose other than to identify prospective properties consumers may be interested in purchasing. Copyright © 2025 My Florida Regional MLS DBA Stellar MLS. All rights reserved.
Calificaciones de los barrios
Bike Score ®
Somewhat Bikeable25 / 100
Soundscore ™
Calm93 / 100
Educación local
Escuelas primarias y secundarias
Lawton M. Chiles Elementary School
Grados Escolares PK-5
Public
Kanapaha Middle School
Grados Escolares 6-8
Public
Queen of Peace Catholic Academy
Grados Escolares PK-8
Private
F. W. Buchholz High School
Grados Escolares 5-12
Public
The Rock School
Grados Escolares PK-12
Private
Datos de escuelas proporcionados por GreatSchools.org 2024 © 2024. Todos los derechos reservados.
Colegios y Universidades
Escuela
Tiempo de viaje (Distancia)
Santa Fe College
En coche: 18 min (8 mi)
University of Florida
En coche: 19 min (8.5 mi)
Descubre a Gainesville, FL
Aeropuertos
Vivir en Gainesville brinda fácil acceso a Gainesville Regional, ubicado a solo 36 minutes de 3474 SW 109th Dr.
Propiedades cercanas que te pueden gustar
Dentro de 50 millas de 3474 SW 109th Dr
Find More Rentals in Gainesville
Casas en Gainesville por comodidades
- Casas en alquiler Mascotas permitidas en Gainesville
- Casas asequibles en alquiler en Gainesville
- Casas totalmente amuebladas en alquiler en Gainesville
- Casas Modern en alquiler en Gainesville
- Casas for Rent with con piscina in Gainesville
- Casas for Rent with a con jardín in Gainesville
- Casas for Rent with a con garaje in Gainesville
- Casas for Rent with con chimenea in Gainesville
- Casas for Rent with a con patio in Gainesville
- Casas for Rent with con Lavadora y secadora in Gainesville
- Casas for Rent with con servicios pagados in Gainesville









