Qué ofrece este apartamento
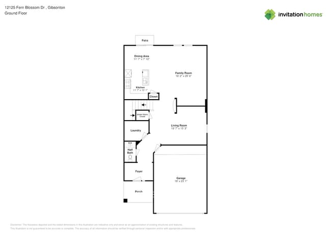
Alquila esta casa y disfruta de los beneficios de la administración profesional de propiedades de Invitation Homes. Esta casa viene completamente equipada con... comodidades de calidad, servicios esenciales, tecnología de punta y mantenimiento profesional ProCare®. Tu pago mensual total estimado es de $2414.90. Esto incluye tu renta base de $2270.00 más nuestros servicios obligatorios diseñados para facilitarte la vida: cargo por entrega de filtro de aire ($9.95), internet y medios ($85), casa inteligente con timbre con video ($40) y cargo por servicio de facturación de servicios públicos ($9.95). La renta base varía según el plazo del contrato de arrendamiento seleccionado. Esta es la casa donde tus necesidades y deseos se unen. Desde el momento en que cruces la puerta principal, lo sabrás: es la indicada. Su diseño de planta abierta te ofrece mucho espacio para disfrutar al máximo. Imagínate en esta acogedora sala de estar con pisos de vinilo de lujo. La elegante cocina cuenta con una distribución perfecta tanto para cocinar como para recibir invitados. Las modernas encimeras y los electrodomésticos de acero inoxidable lucen fantásticos y son fáciles de limpiar. Disfrutarás de un patio trasero cercado que te ofrece privacidad y mucho espacio para hacer ejercicio o simplemente relajarte. El vecindario cuenta con piscina y parque comunitarios. ¡Solicita en línea hoy mismo! En Invitation Homes, ofrecemos casas con patio que admiten mascotas y tecnología de hogar inteligente en excelentes vecindarios de todo el país. Vive en una casa fantástica sin las complicaciones ni el compromiso a largo plazo de ser propietario. Descubre la casa de tus sueños con Invitation Homes. Nuestro paquete Lease Easy, que incluye hogar inteligente, entrega de filtros de aire y gestión de servicios públicos, es clave para un estilo de vida de alquiler sin preocupaciones. Estos servicios son obligatorios según tu contrato de arrendamiento y tienen un costo mensual adicional. También pueden aplicarse cargos mensuales por mascotas y piscinas. Características y comodidades de la casa: Aire acondicionado, habitación adicional, patio cercado, garaje, isla de cocina, contratos de arrendamiento a largo plazo, pisos de vinilo de lujo, planta abierta, admite mascotas, iluminación empotrada, hogar inteligente, electrodomésticos de acero inoxidable, azulejos, vestidor, conexiones para lavadora/secadora y administración profesional a cargo de Invitation Homes. Características y servicios del vecindario: Piscina comunitaria, parque. Invitation Homes es un arrendador de vivienda equitativa bajo la Ley de Vivienda Justa (FHA). Pueden aplicarse las leyes locales, estatales y federales correspondientes. Se aplican términos y condiciones adicionales. Este anuncio no constituye una oferta de alquiler. Debe enviar información adicional, incluyendo una solicitud de alquiler y el pago de la tarifa correspondiente. Si bien creemos que toda la información de arrendamiento es precisa, es posible que se hayan producido cambios desde que se tomaron las fotografías y la superficie es aproximada. Consulte el sitio web de Invitation Homes para obtener más información. Tenga cuidado con las estafas: Los empleados de Invitation Homes nunca le pedirán su nombre de usuario ni su contraseña. Invitation Homes no publica anuncios en Craigslist, Social Serve, etc. Somos propietarios de nuestras viviendas; no hay propietarios privados. Todos los pagos para arrendar con Invitation Homes se realizan directamente a través de nuestro sitio web, nunca mediante transferencia bancaria ni aplicaciones de pago como Zelle, PayPal o Cash App. Para obtener más información, envíe una consulta sobre esta vivienda. Las solicitudes están sujetas a nuestros requisitos de calificación. Se aplican términos y condiciones adicionales. CONSENTIMIENTO PARA RECIBIR LLAMADAS Y MENSAJES DE TEXTO: Al ingresar su información de contacto, usted consiente expresamente en recibir correos electrónicos, llamadas y mensajes de texto de Invitation Homes, incluso mediante marcación automática, voz pregrabada o artificial, incluyendo comunicaciones de marketing. Se pueden aplicar tarifas de mensajes y datos. Asimismo, acepta nuestros Términos de uso y nuestra Política de privacidad.
Unidad
- $2,270 / Mes
- 4 Habitaciones
- 2.5 Baños
- 2,752 sq. ft.
- Disponibilidad Ahora
Comodidades del apartamento
- Vestidores
Características de la comunidad
- Garajes
- Recinto cerrado
12125 Fern Blossom Dr se encuentra en County en el código postal .
Tarifas de alquiler y política de mascotas
Las siguientes cuotas se basan en información proporcionada por la comunidad y es posible que no incluyan cuotas adicionales o servicios básicos.
Servicios y elementos básicos
- Utility Billing Service Fee$9.95 / mes
- Air Filter Delivery Fee$9.95 / mes
- Smart Home with video doorbell$40 / mes
- Internet & Media$85 / mes
Elementos básicos por única vez
Explorar opciones de viaje
- En Coche--
- Caminando--
- En Bicicleta--
- Tránsito público--

Póngase en contacto
Gibsonton, FL 33534

Calificaciones de los barrios
Bike Score ®
Somewhat Bikeable26 / 100
Soundscore ™
Calm93 / 100
Viajes y tránsito


Educación local
Escuelas primarias y secundarias
First Baptist Christian School
Grados Escolares K-2
Private
Corr Elementary School
Grados Escolares PK-5
Public
East Bay High School
Grados Escolares 9-12
Public
Eisenhower Middle School
Grados Escolares 2-12
Public
East Bay Christian School
Grados Escolares PK-12
Private
Datos de escuelas proporcionados por GreatSchools.org 2024 © 2024. Todos los derechos reservados.
Colegios y Universidades
Escuela
Tiempo de viaje (Distancia)
Hillsborough C.C., Brandon
En coche: 24 min (12.7 mi)
Hillsborough C.C., Ybor City
En coche: 23 min (12.9 mi)
Southwest Florida Coll., Tampa
En coche: 23 min (14.6 mi)
The University of Tampa
En coche: 26 min (14.9 mi)
Descubre a Southeast Tampa, Gibsonton, FL
Aeropuertos
Vivir en Southeast Tampa brinda fácil acceso a Tampa International, ubicado a solo 38 minutes de 12125 Fern Blossom Dr. Otro aeropuerto cercano es St Pete-Clearwater International, ubicado a 31.6 miles de distancia.
Find More Rentals in Gibsonton
Otros tipos de alquiler
Casas en Gibsonton por comodidades
- Casas en alquiler Mascotas permitidas en Gibsonton
- Casas asequibles en alquiler en Gibsonton
- Casas totalmente amuebladas en alquiler en Gibsonton
- Casas Modern en alquiler en Gibsonton
- Casas for Rent with con piscina in Gibsonton
- Casas for Rent with a con jardín in Gibsonton
- Casas for Rent with a con garaje in Gibsonton
- Casas for Rent with con chimenea in Gibsonton
- Casas for Rent with con Lavadora y secadora in Gibsonton
- Casas for Rent with con servicios pagados in Gibsonton




