835 17th Terrace NE, Winter Haven, FL 33881
Qué ofrece este apartamento
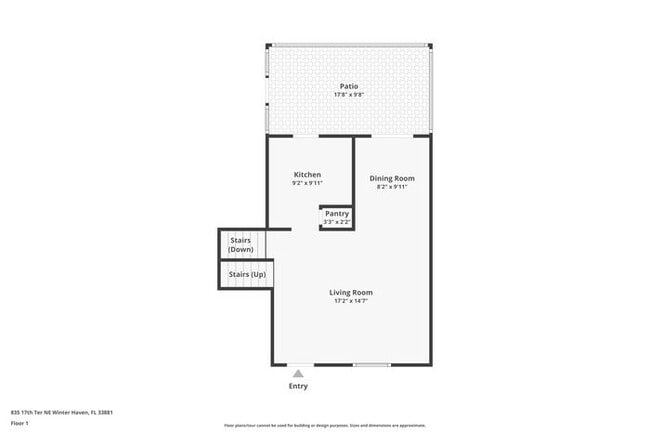
LISTA PARA MUDARSE Esta casa está lista para mudarse. Programe su recorrido ahora o comience su solicitud hoy. Tarifas mensuales recurrentes: $25.00 -... Mantenimiento séptico $10.95 - Administración de servicios públicos Maymont Homes se compromete a ofrecer precios claros y por adelantado. Además del alquiler anunciado, los residentes pueden tener tarifas mensuales, que incluyen una tarifa de administración de servicios públicos de $10.95, una tarifa de aguas residuales de $25.00 para hogares con sistemas sépticos y una tarifa de servicios para hogares con tecnología de hogar inteligente, servicio de recolección de basura u otras comodidades comunitarias. Esto no incluye servicios públicos ni tarifas opcionales, que incluyen, entre otras, tarifas por mascotas y seguro para inquilinos. Ubicada en Winter Haven, esta casa de 3 habitaciones y 2 baños ofrece una distribución equilibrada en varios niveles con cómodas áreas de estar y espacios convenientes en todas partes. El exterior cuenta con una fachada limpia de dos tonos, césped ajardinado y una entrada que conduce a un garaje para un automóvil. Al entrar, encontrará pisos LVP que se extienden por la planta principal, conectando la sala de estar y el comedor en un ambiente abierto y espacioso. Una puerta corrediza de vidrio aporta luz natural y se abre al patio con mosquitero, ampliando el espacio para relajarse o cenar al aire libre. La cocina incluye encimeras de granito, electrodomésticos de acero inoxidable y gabinetes blancos con herrajes negros en contraste, ofreciendo una distribución elegante y práctica que se conecta directamente con el comedor. En la planta superior, el dormitorio principal cuenta con ventilador de techo, armario de doble puerta y baño privado. Dos dormitorios adicionales comparten un baño completo, cada uno diseñado en tonos neutros y con amplio espacio de armario. La planta baja incluye una sala adicional y un área de lavandería, lo que ofrece flexibilidad para el entretenimiento, el trabajo o el almacenamiento. Disfrute del tranquilo patio trasero rodeado de árboles maduros y de la comodidad de estar a solo 10 minutos del centro de Winter Haven, con acceso cercano a parques locales, restaurantes y el lago Howard. ¡Solicite ahora y explore la comodidad y el espacio que ofrece esta casa en Winter Haven! *Maymont Homes ofrece a los residentes soluciones convenientes, que incluyen facturación simplificada de servicios públicos y opciones flexibles de pago de alquiler. Contáctenos para más detalles. Esta información se considera confiable, pero no está garantizada. Todas las medidas son aproximadas. Las especificaciones reales del producto y de la vivienda pueden variar en cuanto a dimensiones o detalles. Las imágenes son solo para fines representativos. Algunos programas y servicios pueden no estar disponibles en todas las áreas del mercado. Los precios y la disponibilidad están sujetos a cambios sin previo aviso. Los precios de alquiler anunciados no incluyen la tarifa de solicitud requerida, la tarifa de reserva parcialmente reembolsable (que se abona al aprobar la solicitud) ni la tarifa mensual obligatoria de administración de servicios públicos (en áreas de mercado seleccionadas). Los residentes deben mantener un seguro de inquilinos según lo especificado en su contrato de arrendamiento. Si no se proporciona un seguro de inquilinos de terceros, los residentes se inscribirán automáticamente en nuestra Póliza Maestra de Seguro por una tarifa. Algunas viviendas pueden estar ubicadas en comunidades que requieren una tarifa mensual para las comodidades o servicios específicos de la comunidad. Para obtener más información, comuníquese con un representante de arrendamiento de la empresa. Igualdad de oportunidades de vivienda. La fecha estimada de disponibilidad está sujeta a cambios según los plazos de construcción y la confirmación de la mudanza. Esta propiedad permite visitas autoguiadas sin cita previa. Contáctenos para obtener más información.
Unidad
- $1,795 / Mes
- 3 Habitaciones
- 2 Baños
- 1,476 sq. ft.
- Disponibilidad Ahora
835 17th Terrace NE se encuentra en County en el código postal .
Tarifas de alquiler y política de mascotas
Las siguientes cuotas se basan en información proporcionada por la comunidad y es posible que no incluyan cuotas adicionales o servicios básicos.
Complementos personalizados
- Application Fee$55 por única vez
- Holding Deposit$550 por única vez
- Security Deposit$1,795 por única vez
- Utilities Setup Fee$25 por única vez
- Septic Fee$25 por única vez
- Utilities Monthly Fee$11 por única vez
Explorar opciones de viaje
- En Coche--
- Caminando--
- En Bicicleta--
- Tránsito público--

Póngase en contacto
Winter Haven, FL 33881

Calificaciones de los barrios
Walk Score ®
Car-Dependent12 / 100
Bike Score ®
Somewhat Bikeable28 / 100
Soundscore ™
Calm86 / 100
Viajes y tránsito

Educación local
Escuelas primarias y secundarias
Elbert Elementary School
Grados Escolares PK-5
Public
Denison Middle School
Grados Escolares 6-8
Public
Winter Haven Senior High School
Grados Escolares 9-12
Public
Winter Haven Christian School
Grados Escolares PK-12
Private
Datos de escuelas proporcionados por GreatSchools.org 2024 © 2024. Todos los derechos reservados.
Colegios y Universidades
Escuela
Tiempo de viaje (Distancia)
Polk State Coll, Winter Haven
En coche: 5 min (1.4 mi)
Polk State College, Lakeland
En coche: 28 min (14.6 mi)
Find More Rentals in Winter Haven
Casas en Winter Haven por comodidades
- Casas en alquiler Mascotas permitidas en Winter Haven
- Casas asequibles en alquiler en Winter Haven
- Casas totalmente amuebladas en alquiler en Winter Haven
- Casas Modern en alquiler en Winter Haven
- Casas for Rent with con piscina in Winter Haven
- Casas for Rent with a con jardín in Winter Haven
- Casas for Rent with a con garaje in Winter Haven
- Casas for Rent with con chimenea in Winter Haven
- Casas for Rent with con Lavadora y secadora in Winter Haven
- Casas for Rent with con servicios pagados in Winter Haven




