
301 Brookhaven Dr, Dublin, GA 31021
Qué ofrece este apartamento
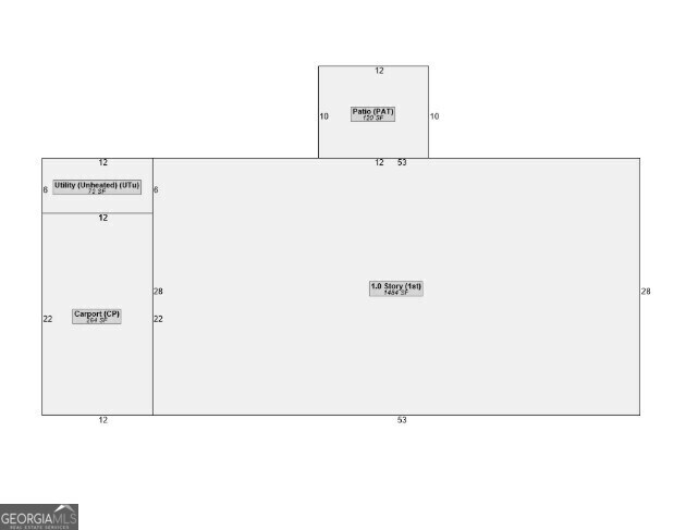
Esta casa de ladrillo ofrece tres (3) dormitorios y dos (2) baños completos, con una superficie de 1484 pies cuadrados. Ubicada en los límites de la ciudad de... Dublín, convenientemente ubicada cerca del centro comercial, supermercados, restaurantes y lugares de entretenimiento. Esta casa cuenta con una amplia sala familiar y comedor. También ofrece un amplio patio trasero cercado y una cochera junto a la entrada lateral de la cocina. Lista para entrar a vivir.
Unidad
- $1,500 / Mes
- 3 Habitaciones
- 2 Baños
- 1,484 sq. ft.
- Disponibilidad Ahora
Comodidades del apartamento
- Fogón
- Lavavajillas
- Sala familiar
301 Brookhaven Dr Casa se encuentra en County en el código postal .
Tarifas de alquiler y política de mascotas
Las siguientes cuotas se basan en información proporcionada por la comunidad y es posible que no incluyan cuotas adicionales o servicios básicos.
No se permiten mascotas
Apartment Details
Home Design
- Built in 1968 | Remodeled
- Four Sided Brick Exterior Elevation
- Single Family Detached Home
- Composition Roof
Interior Spaces
- 1-Story Property
- Family Room
- 1484 Sq Ft Home
Kitchen
- Oven or Range
- Dishwasher
Flooring
- Laminate
- Vinyl
Bedrooms and Bathrooms
- 3 Main Level Bedrooms
- 2 Full Bathrooms
- 3 Bedrooms | 2 Bathrooms
Laundry
- Laundry closet
Basement
- Crawl Space
Parking
- Carport
- Side or Rear Entrance to Parking
Lot Details
- 0.63 Acre Lot
- Sloped Lot
Location
- City Lot
Schools
- Hillcrest Elementary School
- Dublin Middle School
- Dublin High School
Utilities
- Central Air
- High Speed Internet
- Heating Available
- Cable TV Available
- Electricity Available
- Sewer Available
- Public Water Source
- Water Available
- Public Sewer
Listing and Financial Details
- Security Deposit $1,650
- 12-Month Minimum Lease Term
- $50 Application Fee
Community Details
Overview
- No Home Owners Association
- Brookwood Meadows Subdivision
Pet Policy
- No Pets Allowed
Explorar opciones de viaje
- En Coche--
- Caminando--
- En Bicicleta--
- Tránsito público--
Póngase en contacto
Dublin, GA 31021

Copyright © 2025 Georgia Multiple Listing Service. All rights reserved. All information provided by the listing agent / broker is deemed reliable but is not guaranteed and should be independently verified.
Calificaciones de los barrios
Walk Score ®
Car-Dependent6 / 100
Bike Score ®
Somewhat Bikeable27 / 100
Educación local
Escuelas primarias y secundarias
Susie Dasher Elementary School
Grados Escolares PK-4
Public
Hillcrest Elementary
Grados Escolares PK-4
Public
Dublin Middle School
Grados Escolares 5-8
Public
Trinity Christian School
Grados Escolares PK-12
Private
Datos de escuelas proporcionados por GreatSchools.org 2024 © 2024. Todos los derechos reservados.
Colegios y Universidades
Escuela
Tiempo de viaje (Distancia)
Middle Georgia State, Dublin
En coche: 6 min (2.1 mi)
Descubre a Dublin, GA
Centros Comerciales
Los compradores apreciarán la proximidad de 301 Brookhaven Dr Casa a Dublin Village, Dublin Shopping Center y Old Towne Center. Dublin Village está a 1.1 miles de distancia y Dublin Shopping Center está a 22 minutos a pie.
Propiedades cercanas que te pueden gustar
Dentro de 50 millas de 301 Brookhaven Dr


Joy Park Luxury Apartments

Anthos at Lexington Place

Pointe Grand Byron

Legends at Town Place





