
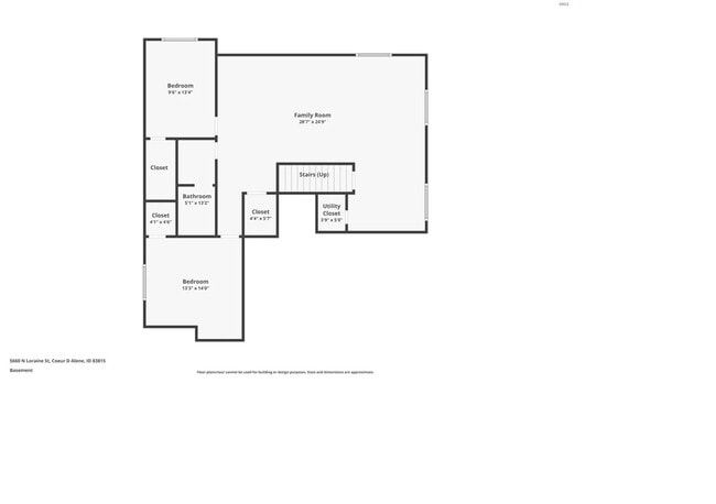
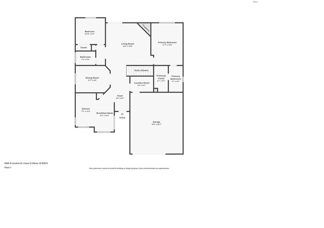
5660 N Loraine St, Coeur d'Alene, ID 83815
Qué ofrece este apartamento
Hermosa y espaciosa casa ubicada en el codiciado vecindario de Coeur d'Alene Place. Esta casa bien mantenida ofrece una distribución funcional con una planta... principal y un sótano completamente terminado con luz natural, que proporciona mucho espacio para una vida cómoda. La planta principal cuenta con una luminosa sala de estar con una acogedora chimenea de gas, grandes ventanales y una sensación de amplitud que se conecta con la cocina y el comedor. La cocina ofrece amplios gabinetes, generosas encimeras y fácil acceso al patio trasero para disfrutar al aire libre. La casa incluye 4 dormitorios y 3 baños con aproximadamente 2,600 pies cuadrados de espacio habitable. El sótano terminado proporciona espacio habitable adicional que puede usarse como una segunda sala de estar, sala de juegos o área para invitados. Las recientes mejoras en toda la casa incluyen pisos nuevos, pintura interior, accesorios y electrodomésticos. La propiedad también cuenta con dos chimeneas de gas, que crean un ambiente cálido y confortable durante los meses más fríos. El patio trasero es espacioso y privado, con espacio para relajarse, entretenerse o cultivar un jardín. Un garaje para dos autos proporciona almacenamiento adicional y comodidad. Esta casa no tiene aire acondicionado central ni sistema de riego en el patio trasero. Términos: Alquiler: $2,800/mes Depósito de seguridad: $3,000 El depósito se basa en un buen historial crediticio y de alquiler. El depósito puede aumentar si no se cumplen los términos anteriores. Duración del contrato de arrendamiento: 12 meses (renovable anualmente) Servicios públicos: El inquilino es responsable de todos los servicios públicos Mascotas: Lo sentimos, no se permiten mascotas en esta propiedad. Fumar: No se permite fumar ni vapear en ninguna parte de la propiedad. Información de la solicitud Después de ver la casa, todas las personas mayores de 18 años que residirán en la propiedad deben presentar una solicitud por separado. La tarifa de solicitud es de $30 por solicitante. No alquilamos sin que se vea la propiedad. Por favor, pase primero por la propiedad y el vecindario. Si desea programar una visita después de hacerlo, comuníquese con: Lakeside Property Management La información de la propiedad se considera confiable pero no está garantizada.
Unidad
- $2,800 / Mes
- 4 Habitaciones
- 3 Baños
- 2656 sq. ft.
- Disponibilidad Mar 15
5660 N Loraine St se encuentra en County en el código postal .
Cuotas y políticas
Las siguientes cuotas se basan en información proporcionada por la comunidad y es posible que no incluyan cuotas adicionales o servicios básicos.
No se permiten mascotas
Aviso Legal sobre Tarifas de la Propiedad Based on community-supplied data and independent market research. Subject to change without notice. May exclude fees for mandatory or optional services and usage-based utilities.
Explorar opciones de viaje
- En Coche--
- Caminando--
- En Bicicleta--
- Tránsito público--
Póngase en contacto
Coeur d'Alene, ID 83815
Calificaciones
Caminabilidad
Favorablemente apto para caminar40 / 100
Facilidad para Conducir
Excepcionalmente apto para conducir90 / 100
Ciclabilidad
Bastante apto para andar en bici60 / 100
Soundscore ™
Active71 / 100
Educación local
Escuelas primarias y secundarias
Woodland Middle School
Grados Escolares 6-8
Public
Lake City High School
Grados Escolares 9-12
Public
Innercept
Grados Escolares 9-12
Private
Datos de escuelas proporcionados por GreatSchools.org 2024 © 2024. Todos los derechos reservados.
Colegios y Universidades
Escuela
Tiempo de viaje (Distancia)
North Idaho College
En coche: 9 min (3.9 mi)
Descubre a Kootenai County, Coeur d'Alene, ID
Centros Comerciales
Los compradores apreciarán la proximidad de Spacious home with finished basement in Coeur d’Alene Place a Sunshine Plaza, Sunshine Retail Plaza y Fairground Center. Sunshine Plaza está a 1.9 miles de distancia y Sunshine Retail Plaza está a 24 minutos a pie.
Parques y Recreación
Las actividades recreativas cerca de Spacious home with finished basement in Coeur d’Alene Place son abundantes. Descubre 1 park dentro de 4.3 miles, incluido Tubbs Hill.
Aeropuertos
Vivir en Kootenai County brinda fácil acceso a Spokane International, ubicado a solo 49 minutes de Spacious home with finished basement in Coeur d’Alene Place.
Propiedades cercanas que te pueden gustar
Dentro de 50 millas de Spacious home with finished basement in Coeur d’Alene Place









