
341 Grosvenor Ave, Lexington, KY 40508
Qué ofrece este apartamento
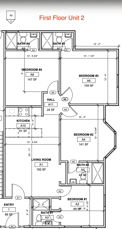
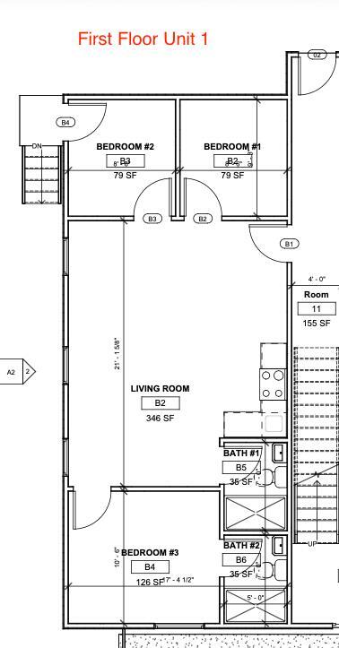
Apartamento completamente renovado de 4 dormitorios y 4 baños en primera planta, con aproximadamente 1060 pies cuadrados, techos de 9 pies y una distribución... moderna, ideal para compartir. Esta propiedad ha sido completamente reconstruida con acabados a estrenar, incluyendo ventanas de bajo consumo, suelos de alta calidad, azulejos de primera calidad, baños totalmente renovados con tocadores nuevos, iluminación empotrada, pintura fresca y acabados de cocina renovados. Incluye un patio exterior exclusivo. Amplio aparcamiento en la propiedad y aparcamiento en la calle. Lavandería y trastero incluidos en el sótano. Servicios públicos con contador independiente; cada inquilino es responsable de su uso individual. El propietario se encarga del mantenimiento de las zonas comunes y los servicios públicos. No se permite fumar. La obra finalizará en las próximas semanas. Disponible el 1 de julio. Flexibilidad de arrendamiento y opciones de construcción completa: También está disponible una unidad de 3 habitaciones y 2 baños en el primer piso (aprox. 700 pies cuadrados), dos unidades de 3 habitaciones y 3 baños en el segundo piso (aprox. 875 pies cuadrados y 859 pies cuadrados), todo el primer piso (7 habitaciones y 6 baños combinando ambas unidades del primer piso, totalizando aprox. 1760 pies cuadrados) o todo el segundo piso (6 habitaciones y 6 baños combinando ambas unidades del segundo piso, totalizando aprox. 1734 pies cuadrados). MLS# 26002944
Unidad 2
- $4,000 / Mes
- 4 Habitaciones
- 4 Baños
- 1060 sq. ft.
- Disponibilidad Apr 19
Comodidades del apartamento
- Aire acondicionado
- Calefacción
- Fogón
- Lavadora/Secadora
- Lavavajillas
- Nevera
- Ventiladores de techo
Características de la comunidad
- Piscina exterior
- Pista de tenis
341 Grosvenor Ave se encuentra en County en el código postal .
Cuotas y políticas
Las siguientes cuotas se basan en información proporcionada por la comunidad y es posible que no incluyan cuotas adicionales o servicios básicos.
Elementos básicos por única vez
Vencimiento al momento de la mudanza
- Security Deposit - Refundable$4,400
Aviso Legal sobre Tarifas de la Propiedad Based on community-supplied data and independent market research. Subject to change without notice. May exclude fees for mandatory or optional services and usage-based utilities.
Apartment Details
Home Design
- Built in 1907
- Colonial Architecture
- Quadruplex
- Composition Roof
- Concrete Perimeter Foundation
- HardiePlank Type
- Block Foundation
- Stone Foundation
Interior Spaces
- Living Room
- Entrance Foyer
- Ceiling Fan
- Insulated Doors
- 1060 Sq Ft Home
- 2-Story Property
- Insulated Windows
Kitchen
- Oven or Range
- Dishwasher
Flooring
- Tile
- Luxury Vinyl Tile
Bedrooms and Bathrooms
- Primary Bedroom on Main
- Bathroom on Main Level
- 4 Full Bathrooms
- 4 Bedrooms | 4 Bathrooms
- 4 Bedrooms
Laundry
- Dryer
- Laundry on lower level
- Washer
Attic
- Walk-In Attic
Basement
- Partial Basement
- Unfinished Basement
- Sump Pump
- Exterior Basement Entry
Parking
- Off-Street Parking
- Driveway
Outdoor Features
- Covered Patio or Porch
Lot Details
- 6621 Sq Ft Lot
- Partially Fenced Property
- Wood Fence
- Wire Fence
- Few Trees
Schools
- Ashland Elementary School
- Lexington Trad Middle School
- Henry Clay High School
Utilities
- Forced Air Heating and Cooling System
- Heating System Uses Natural Gas
- Public Water Source
- Electricity Connected
- Natural Gas Connected
- Sewer Connected
- Water Connected
- Electric Water Heater
- Public Sewer
Listing and Financial Details
- Security Deposit $4,400
- 12 Month Lease Term
- $35 Application Fee
Community Details
Overview
- No Home Owners Association
- Uk Campus Subdivision
Amenities
- Laundry Facilities
Recreation
- Community Pool
- Tennis Courts
- Pickleball Courts
- Park
Pet Policy
- No Pets Allowed
Explorar opciones de viaje
- En Coche--
- Caminando--
- En Bicicleta--
- Tránsito público--
Póngase en contacto
Lexington, KY 40508

Information deemed reliable but not guaranteed. All properties are subject to prior sale, change or withdrawal. Listing(s) information is provided exclusively for consumers' personal, non-commercial use and may not be used for any purpose other than to identify prospective properties consumers may be interested in purchasing. © 2026 Imagine MLS®. All rights reserved.
Calificaciones
Caminabilidad
Bastante apto para caminar70 / 100
Transporte Público
Algo de transporte público50 / 100
Facilidad para Conducir
Apto para conducir40 / 100
Ciclabilidad
Bastante apto para andar en bici60 / 100
Soundscore ™
Active74 / 100
Viajes y tránsito

Educación local
Colegios y Universidades
Escuela
Tiempo de viaje (Distancia)
Transylvania University
En coche: 3 min (1.4 mi)
University of Kentucky
En coche: 4 min (1.5 mi)
National College, Lexington
En coche: 9 min (5.1 mi)
Descubre a Kenwick, Lexington, KY
Centros Comerciales
Los compradores apreciarán la proximidad de 341 Grosvenor Ave Unidad 2 a University Plaza, Shops At Lexington Center y Chevy Chase Place. University Plaza está a 0.5 miles de distancia y Shops At Lexington Center está a 15 minutos a pie.
Parques y Recreación
Las actividades recreativas cerca de 341 Grosvenor Ave Unidad 2 son abundantes. Descubre 2 parks dentro de 2.7 miles, incluidos Explorium y State Botanical Garden of Kentucky.
Aeropuertos
Vivir en Kenwick brinda fácil acceso a Blue Grass, ubicado a solo 17 minutes de 341 Grosvenor Ave Unidad 2.
Propiedades cercanas que te pueden gustar
Dentro de 50 millas de 341 Grosvenor Ave Unidad 2


Trifecta on Red Mile - Newly Renovated!
12 Meses de Arrendamiento

Barrel Oaks Apartments

Colts Run

Shillito Park Apartments

Vetra Lexington
Encuentra más alquileres en Lexington
- Apartamentos que admiten mascotas en Lexington
- Apartamentos amueblado en Lexington
- Apartamentos Frente al mar en Lexington
- Apartamentos en alquiler con piscina en Lexington
- Apartamentos en alquiler Acceso en silla de ruedas en Lexington
- Apartamentos en alquiler con Lavadora y secadora en Lexington
- Apartamentos en alquiler con servicios incluidos en Lexington
- Apartamentos en alquiler con garaje en Lexington
- Apartamentos with EV Charging in Lexington
- Apartamentos en alquiler Recorrido Virtual en Lexington
- Ofertas especiales de mudanza en Lexington
- Apartamentos asequibles en Lexington
- Apartamentos de lujo en Lexington
- Apartamentos en alquiler de menos de $700 en Lexington
- Apartamentos en alquiler de menos de $900 en Lexington
- Apartamentos en alquiler de menos de $1000 en Lexington
- Apartamentos en alquiler de menos de $1500 en Lexington
- Apartamentos en alquiler de menos de $2000 en Lexington
- Apartamentos en alquiler de menos de $2500 en Lexington




