
201 Avery Scroggs Rd, Hayesville, NC 28904
Qué ofrece este apartamento
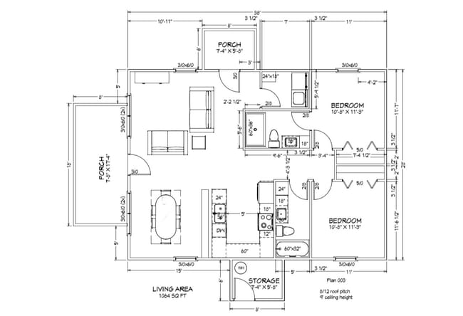
Avery Acres es un nuevo desarrollo de alquiler que ofrece casas de 2 habitaciones y 2 baños con varios planos de planta disponibles. ¡Se planea una entrada con... portón y alumbrado público! El constructor no escatimó en gastos y su nuevo hogar cuenta con encimeras de granito, gabinetes diseñados a medida, pisos de vinilo de lujo y un paquete completo de electrodomésticos. El arrendamiento incluye el servicio de agua y recolección de basura. Los residentes pagarán todos los demás servicios públicos. Todos los ocupantes de 18 años de edad o mayores deben presentar una solicitud y pagar la tarifa de solicitud no reembolsable de $75. HAGA CLIC AQUÍ PARA OBTENER INFORMACIÓN COMPLETA. Para mudarse se requiere el primer mes completo de alquiler ($1800) más el alquiler prorrateado si se muda a mediados de mes, un depósito de seguridad de $1800 y un seguro de inquilino con la prima del primer año pagada en su totalidad. Se considerará un perro pequeño caso por caso. Avery Acres es un nuevo desarrollo de alquiler que ofrece casas de 2 habitaciones y 2 baños con varios planos de planta disponibles. ¡Se planea una entrada con portón y alumbrado público! El constructor no escatimó en gastos y su nuevo hogar cuenta con encimeras de granito, gabinetes diseñados a medida, pisos de vinilo de lujo y un paquete completo de electrodomésticos. El alquiler incluye agua y recolección de basura. Los residentes pagarán todos los demás servicios públicos. Todos los ocupantes de 18 años o más deben presentar una solicitud y pagar la tarifa de solicitud no reembolsable de $75. HAGA CLIC AQUÍ PARA OBTENER INFORMACIÓN COMPLETA. Para mudarse se requiere el primer mes completo de alquiler ($1800) más el alquiler prorrateado si se muda a mediados de mes, un depósito de seguridad de $1800 y seguro de inquilino con la prima del primer año pagada en su totalidad. Se considerarán perros pequeños caso por caso.
Unidad
- $1,800 / Mes
- 2 Habitaciones
- 2 Baños
- Disponibilidad Apr 1
201 Avery Scroggs Rd se encuentra en County en el código postal .
Cuotas y políticas
Las siguientes cuotas se basan en información proporcionada por la comunidad y es posible que no incluyan cuotas adicionales o servicios básicos.
Elementos básicos por única vez
Aviso Legal sobre Tarifas de la Propiedad Based on community-supplied data and independent market research. Subject to change without notice. May exclude fees for mandatory or optional services and usage-based utilities.
Explorar opciones de viaje
- En Coche--
- Caminando--
- En Bicicleta--
- Tránsito público--
Póngase en contacto
Hayesville, NC 28904
Calificaciones
Caminabilidad
Un poco accesible a pie20 / 100
Facilidad para Conducir
Excepcionalmente apto para conducir90 / 100
Ciclabilidad
Un poco apto para andar en bici20 / 100
Educación local
Escuelas primarias y secundarias
Hayesville Elementary
Grados Escolares K-5
Public
Hayesville Middle
Grados Escolares 6-8
Public
Hayesville High
Grados Escolares 9-12
Public
Datos de escuelas proporcionados por GreatSchools.org 2024 © 2024. Todos los derechos reservados.
Propiedades cercanas que te pueden gustar
Dentro de 50 millas de 201 Avery Scroggs Rd


Kilough Pointe Rental Homes

Prose Gainesville

Crossings of Dawsonville

Allora Gainesville





