
1915 Robbins Pl, Austin, TX 78705
Qué ofrece este adosado
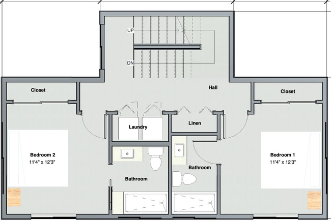
¡Disponibles para prealquiler en 2027! Magníficas casas adosadas de nueva construcción (3x3) en pleno corazón del Campus Oeste. Hay 3 casas adosadas en un mismo... terreno, y 2 de ellas están disponibles para julio/agosto. Patios privados cercados, estacionamiento fuera de la calle, terraza panorámica y acabados de alta gama son solo algunas de las características que harán de esta propiedad una de las más codiciadas en la zona del campus de la UT. Las casas adosadas de 3 niveles se ubican en un amplio terreno con 3 unidades independientes idénticas. Diseñadas con esmero por el reconocido arquitecto y promotor Chris Krager de KRDB (Krager & Associates, Diseño/Construcción), estas viviendas modulares ofrecen la combinación perfecta de estilo y sostenibilidad. Techo de metal con juntas verticales, ventanas Low-E con rotura de puente térmico, aislamiento R-19 en pisos y paredes, pisos de bambú, encimeras de cuarcita y detalles de mosaico son solo algunos de los detalles que distinguen a esta propiedad. Cada casa adosada estará equipada con electrodomésticos de acero inoxidable de bajo consumo y lavadora y secadora de tamaño completo. Cada dormitorio cuenta con baño privado y amplios ventanales que inundan los apartamentos de luz natural. Cada apartamento dispone de dos plazas de aparcamiento asignadas, además de amplio aparcamiento en la calle. **La propiedad está en construcción; las fotos son representaciones de los diseños arquitectónicos y de propiedades similares. No se ofrecerán visitas presenciales hasta que la propiedad esté terminada. Para más información, contacte con el agente inmobiliario por correo electrónico.
Unidad
- 9 Beds
- 9 Baths
- 5748 sq. ft.
- Disponibilidad Jul 29
Casa adosada
- Lavavajillas
Three 3X3 stand alone townhomes in West Campus! se encuentra en County en el código postal .
Tarifas de alquiler y política de mascotas
Las siguientes cuotas se basan en información proporcionada por la comunidad y es posible que no incluyan cuotas adicionales o servicios básicos.
Elementos básicos por única vez
Explorar opciones de viaje
- En Coche--
- Caminando--
- En Bicicleta--
- Tránsito público--
Póngase en contacto
Austin, TX 78705
Calificaciones de los barrios
Walk Score ®
Very Walkable88 / 100
Transit Score ®
Good Transit60 / 100
Bike Score ®
Very Bikeable87 / 100
Soundscore ™
Active75 / 100
Viajes y tránsito


Educación local
Escuelas primarias y secundarias
Bryker Woods Elementary School
Grados Escolares K-5
Public
The Isely School
Grados Escolares K-3
Private
O Henry Middle
Grados Escolares 6-8
Public
Long-View Micro-School
Grados Escolares 2-8
Private
St Austin Catholic School
Grados Escolares PK-8
Private
Austin High School
Grados Escolares 9-12
Public
The Keystone School
Grados Escolares 6-12
Private
Datos de escuelas proporcionados por GreatSchools.org 2024 © 2024. Todos los derechos reservados.
Colegios y Universidades
Escuela
Tiempo de viaje (Distancia)
Austin C.C., Rio Grande Campus
A pie: 14 min (0.8 mi)
University of Texas at Austin
En coche: 4 min (1.5 mi)
Austin C.C., Eastview Campus
En coche: 7 min (3.6 mi)
St. Edward's University
En coche: 10 min (5.7 mi)
Descubre a West Campus Austin, Austin, TX
Centros Comerciales
Los compradores apreciarán la proximidad de Three 3X3 stand alone townhomes in West Campus! a Court Of Three Sisters, Enfield Shopping Center y Moonlight Place. Court Of Three Sisters está a 0.6 miles de distancia y Enfield Shopping Center está a 12 minutos a pie.
Desplazamiento
Con un TransitScore de 60, Three 3X3 stand alone townhomes in West Campus! tiene good transit, incluidas 8 transit stops dentro de 36.6 miles. Las opciones de tránsito incluyen Downtown Station y Plaza Saltillo Station.
Parques y Recreación
Las actividades recreativas cerca de Three 3X3 stand alone townhomes in West Campus! son abundantes. Descubre 5 parks dentro de 3.3 miles, incluidos Shoal Creek Greenbelt Park, Texas Memorial Museum y Austin Nature and Science Center.
Aeropuertos
Vivir en West Campus Austin brinda fácil acceso a Austin-Bergstrom International, ubicado a solo 25 minutes de Three 3X3 stand alone townhomes in West Campus!.
Propiedades cercanas que te pueden gustar
Dentro de 50 millas de Three 3X3 stand alone townhomes in West Campus!


Bexley at Silverado

The Summit at The Reserve

Opal Point at Kyle

The Magnolia at Georgetown





