Qué ofrece este apartamento
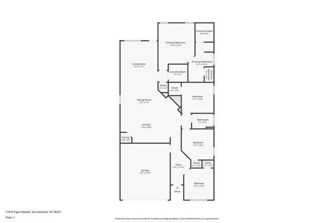
LISTA PARA MUDARSE Esta casa está lista para mudarse. Programe su recorrido ahora o comience su solicitud hoy. Maymont Homes se compromete a ofrecer precios... claros y por adelantado. Además del alquiler anunciado, los residentes pueden tener cargos mensuales, que incluyen un cargo de administración de servicios públicos de $10.95, un cargo de aguas residuales de $25.00 para hogares con sistemas sépticos y un cargo por servicios para hogares con tecnología de hogar inteligente, servicio de recolección de basura u otros servicios comunitarios. Esto no incluye servicios públicos ni cargos opcionales, que incluyen, entre otros, cargos por mascotas y seguro para inquilinos. Ingrese a esta acogedora casa de 4 habitaciones y 2 baños, donde la pintura interior fresca realza cada rincón, creando un ambiente limpio y acogedor. La espaciosa sala de estar fluye a la perfección hacia un comedor luminoso, lo que la hace ideal para la vida diaria o para recibir invitados con facilidad. Los grandes ventanales dejan entrar abundante luz natural, lo que agrega calidez y carácter a cada habitación. La cocina ofrece un amplio espacio de encimera, elegantes gabinetes y una distribución que hace que la preparación de comidas sea práctica y agradable. Un dormitorio principal privado ofrece comodidad y estilo, mientras que los dormitorios adicionales ofrecen flexibilidad para trabajar, descansar o disfrutar de sus aficiones. Los sutiles acabados en toda la casa le dan un toque atemporal y versátil, ideal para su toque personal. Disfrute de su propio patio trasero, donde un patio cubierto ofrece vistas a una amplia zona verde con vistas al campo de golf. Ya sea tomando un café al amanecer o disfrutando de una relajada tarde al aire libre, este entorno ofrece un remanso de paz. No pierda la oportunidad de experimentar el encanto de esta casa. *Maymont Homes ofrece a sus residentes soluciones prácticas, como la facturación simplificada de servicios públicos y opciones flexibles de pago de alquiler. Contáctenos para obtener más información. Esta información se considera fiable, pero no está garantizada. Todas las medidas son aproximadas. Las especificaciones reales del producto y de la vivienda pueden variar en cuanto a dimensiones o detalles. Las imágenes son solo para fines ilustrativos. Algunos programas y servicios pueden no estar disponibles en todas las zonas de mercado. Los precios y la disponibilidad están sujetos a cambios sin previo aviso. Los precios de alquiler anunciados no incluyen la cuota de solicitud obligatoria, la cuota de reserva parcialmente reembolsable (pagadera al aprobar la solicitud) ni la cuota mensual obligatoria de administración de servicios públicos (en zonas de mercado seleccionadas). Los residentes deben mantener un seguro de inquilinos según lo especificado en su contrato de arrendamiento. Si no se proporciona un seguro de inquilinos de terceros, los residentes se inscribirán automáticamente en nuestra Póliza Maestra de Seguro por una cuota. Algunas viviendas podrían estar ubicadas en comunidades que requieren una cuota mensual para servicios o comodidades específicos de la comunidad. Para obtener más información, comuníquese con un representante de arrendamiento de la empresa. Igualdad de oportunidades de vivienda. Esta propiedad está sujeta a la administración de la asociación de propietarios (HOA); pueden aplicarse restricciones y convenios. La fecha estimada de disponibilidad está sujeta a cambios según los plazos de construcción y la confirmación de la mudanza. Esta propiedad permite visitas autoguiadas sin cita previa. Contáctenos para obtener más información.
Unidad
- $1,575 / Mes
- 4 Habitaciones
- 2 Baños
- 1,693 sq. ft.
- Disponibilidad Dec 17
11414 Tiger Woods se encuentra en County en el código postal .
Tarifas de alquiler y política de mascotas
Las siguientes cuotas se basan en información proporcionada por la comunidad y es posible que no incluyan cuotas adicionales o servicios básicos.
Complementos personalizados
- Application Fee$55 por única vez
- Holding Deposit$550 por única vez
- Security Deposit$1,575 por única vez
Explorar opciones de viaje
- En Coche--
- Caminando--
- En Bicicleta--
- Tránsito público--

Póngase en contacto
San Antonio, TX 78221

Calificaciones de los barrios
Walk Score ®
Car-Dependent8 / 100
Transit Score ®
Minimal Transit22 / 100
Bike Score ®
Somewhat Bikeable34 / 100
Soundscore ™
Calm99 / 100
Viajes y tránsito


Educación local
Escuelas primarias y secundarias
Julian C Gallardo Elementary School
Grados Escolares 1-5
Public
Highland Hills Baptist School
Grados Escolares PK-5
Private
H W Schulze Elementary School
Grados Escolares PK-5
Public
Maranatha Adventist School
Grados Escolares K-8
Private
Jewel C Wietzel Center
Grados Escolares 12-12
Public
Southside High School
Grados Escolares 9-12
Public
Omega School
Grados Escolares 6-12
Private
Datos de escuelas proporcionados por GreatSchools.org 2024 © 2024. Todos los derechos reservados.
Colegios y Universidades
Escuela
Tiempo de viaje (Distancia)
Texas A&M University
En coche: 13 min (7.2 mi)
Palo Alto College
En coche: 12 min (7.3 mi)
St. Philip's College, MLK
En coche: 19 min (9.9 mi)
St. Philip's College, SWC
En coche: 21 min (11.9 mi)
Descubre a Mission Del Lago, San Antonio, TX
Parques y Recreación
Las actividades recreativas cerca de 11414 Tiger Woods son abundantes. Descubre 3 parks dentro de 4.4 miles, incluidos Bellaire Park, San Antonio Missions National Historical Park y Mitchell Lake Audubon Center.
Aeropuertos
Vivir en Mission Del Lago brinda fácil acceso a San Antonio International, ubicado a solo 27 minutes de 11414 Tiger Woods.
Find More Rentals in San Antonio
Otros tipos de alquiler
Casas en San Antonio por comodidades
- Casas en alquiler Mascotas permitidas en San Antonio
- Casas asequibles en alquiler en San Antonio
- Casas totalmente amuebladas en alquiler en San Antonio
- Casas Modern en alquiler en San Antonio
- Casas for Rent with con piscina in San Antonio
- Casas for Rent with a con jardín in San Antonio
- Casas for Rent with a con garaje in San Antonio
- Casas for Rent with con chimenea in San Antonio
- Casas for Rent with a con patio in San Antonio
- Casas for Rent with con Lavadora y secadora in San Antonio
- Casas for Rent with con servicios pagados in San Antonio
Casas dentro de tu presupuesto
Encuentra más alquileres Cerca…
Contacte esta propiedad
(210) 864-5004Opciones de recorrido:
Autoguiado




