
8330 Lexington Pl, Pleasant Prairie, WI 53158
Qué ofrece este apartamento
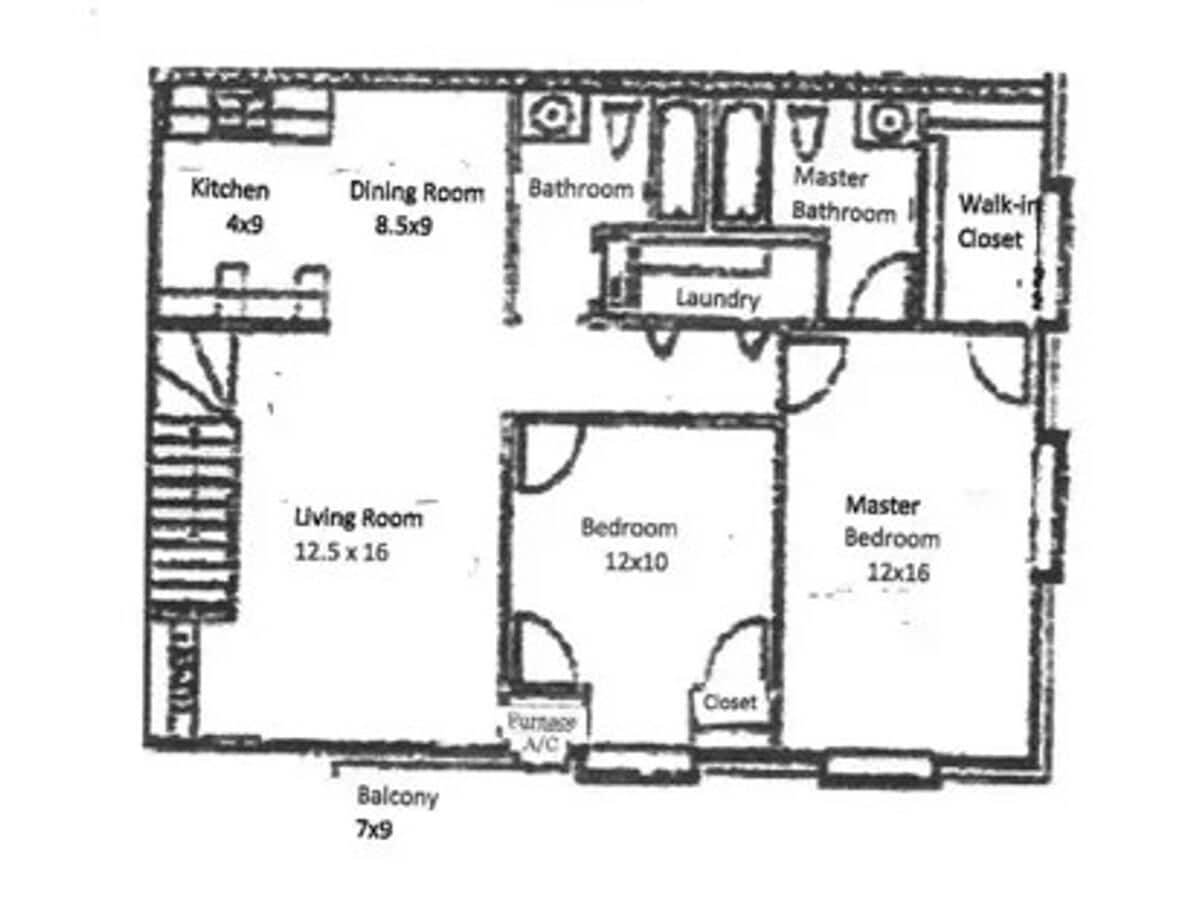
¡Este condominio en el segundo piso le impresionará! Con entrada privada, garaje adjunto y balcón privado, esta vivienda está inundada de luz natural. Su diseño... de concepto abierto conecta a la perfección la sala de estar, el comedor y la cocina, ideal tanto para relajarse como para recibir invitados. El condominio ofrece dos amplias habitaciones y dos baños completos, incluyendo una suite principal con vestidor y baño privado completo. Disfrute de la comodidad de la lavandería dentro de la unidad, sin necesidad de ir a la lavandería. Con una ubicación ideal a la vuelta de la esquina de tiendas y restaurantes, esta vivienda combina comodidad, conveniencia y estilo. No se permiten mascotas ni fumar en la propiedad. Se requiere un puntaje crediticio mínimo de 640 y un ingreso mensual equivalente a al menos 3.25 veces el alquiler mensual. Para más información, llame al número indicado.
Unidad
- $1,625 / Mes
- 2 Habitaciones
- 2 Baños
- 1080 sq. ft.
- Disponibilidad May 10
8330 Lexington Pl se encuentra en County en el código postal .
Cuotas y políticas
Las siguientes cuotas se basan en información proporcionada por la comunidad y es posible que no incluyan cuotas adicionales o servicios básicos.
No se permiten mascotas
Aviso Legal sobre Tarifas de la Propiedad Based on community-supplied data and independent market research. Subject to change without notice. May exclude fees for mandatory or optional services and usage-based utilities.
Explorar opciones de viaje
- En Coche--
- Caminando--
- En Bicicleta--
- Tránsito público--
Póngase en contacto
Pleasant Prairie, WI 53158
Calificaciones
Caminabilidad
Favorablemente apto para caminar40 / 100
Facilidad para Conducir
Excepcionalmente apto para conducir100 / 100
Ciclabilidad
Un poco apto para andar en bici30 / 100
Soundscore ™
Calm99 / 100
Viajes y tránsito


Educación local
Colegios y Universidades
Escuela
Tiempo de viaje (Distancia)
Gateway Technical College
En coche: 13 min (6.4 mi)
Carthage College
En coche: 19 min (8.6 mi)
Univ of Wisc., Parkside
En coche: 16 min (8.7 mi)
Descubre a Outlying Kenosha County, Pleasant Prairie, WI
Centros Comerciales
Los compradores apreciarán la proximidad de Beautiful 2 bedroom 2 bathroom Condo In Pleasant Prairie - More Photos Coming Soon! a Prairie Ridge Marketplace, Prairie Ridge Commons y Shoppes at Prairie Ridge. Prairie Ridge Marketplace está a 0.4 miles de distancia y Prairie Ridge Commons está a 21 minutos a pie.
Aeropuertos
Vivir en Outlying Kenosha County brinda fácil acceso a General Mitchell International, ubicado a solo 38 minutes de Beautiful 2 bedroom 2 bathroom Condo In Pleasant Prairie - More Photos Coming Soon!.
Propiedades cercanas que te pueden gustar
Dentro de 50 millas de Beautiful 2 bedroom 2 bathroom Condo In Pleasant Prairie - More Photos Coming Soon!


Trostel Square

Rowe MKE

The Lakes of Schaumburg Apartment Homes

Highlands at Aero Park Apartments & Townhomes 55+

Presidential Towers
Encuentra más alquileres en Pleasant Prairie
- Apartamentos que admiten mascotas en Pleasant Prairie
- Apartamentos en alquiler con piscina en Pleasant Prairie
- Apartamentos en alquiler Acceso en silla de ruedas en Pleasant Prairie
- Apartamentos en alquiler con Lavadora y secadora en Pleasant Prairie
- Apartamentos en alquiler con servicios incluidos en Pleasant Prairie
- Apartamentos en alquiler con garaje en Pleasant Prairie
- Apartamentos en alquiler Recorrido Virtual en Pleasant Prairie
- Ofertas especiales de mudanza en Pleasant Prairie
- Apartamentos en alquiler de menos de $900 en Pleasant Prairie
- Apartamentos en alquiler de menos de $1000 en Pleasant Prairie
- Apartamentos en alquiler de menos de $1500 en Pleasant Prairie
- Apartamentos en alquiler de menos de $2000 en Pleasant Prairie
- Apartamentos en alquiler de menos de $2500 en Pleasant Prairie
