
72 Flintlock Ln, Saint Augustine, FL 32095
What This House Offers
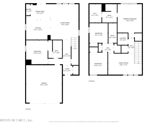
Welcome to this like-new home in the sought-after Preserve at Bannon Lakes community. Built in 2024,this two-story residence offers 2096 square feet of bright... ,open-concept living with 4 bedrooms,3 full bathrooms,an upstairs loft,and a 2-car garage. The gourmet kitchen features white shaker cabinets with matte black hardware,quartz countertops,a large center island with barstool seating,stainless-steel appliances including refrigerator,a gas range,and a flow gray subway tile backsplash. The home has a water softener system for the whole house and a reverse osmosis water filter for drinking water,located under the sink. The main level flows seamlessly from the kitchen into the dining area and spacious gathering room,all flooded with natural light from oversized windows and sliding glass doors leading to the covered lanai with string lights and a gas line stub -- ideal for grilling and outdoor entertaining. A first-floor flex room offers the perfect home office or guest space. Windows treatments will stay with the house. This home also features Ikea custom closets. Upstairs,the spacious owner's suite features a large walk-in closet and a spa-inspired en suite with a dual-sink vanity,quartz counters,and a walk-in tile shower with matte black fixtures and a built-in bench. Two additional bedrooms share a well-appointed hall bath,and the upstairs loft provides flexible bonus living space. The fully fenced backyard offers complete privacy with a vinyl privacy fence and plenty of room to enjoy. Residents have access to outstanding community amenities including a 4,000 sq. ft. amenity center,resort-style pool,fitness center,tennis and pickleball courts,playground,walking trails,and two dog parks. Zoned for Mill Creek Academy (K-8) and Tocoi Creek High School. MLS# 2135973
Unit
- $2,900 / month
- 4 Beds
- 3 Baths
- 2096 sq. ft.
- Available Jun 1
72 Flintlock Ln is a single-family home for rent in Saint Augustine, FL
Explore Commute Options
- Drive Time--
- Walk Time--
- Bike Ride Time--
- Public Transit--
Get In Touch
Saint Augustine, FL 32095
Copyright 2026 realMLS. All rights reserved. Information is deemed reliable but not guaranteed.
Area Scores
Walkability
Somewhat walkable20 / 100
Driveability
Exceptionally drivable100 / 100
Bikeability
Fairly bikeable40 / 100
Local Education
Colleges and Universities
School
Commute Time (Distance)
St. Johns River, St. Augustine
Drive: 18 min (11.3 mi)
Flagler College
Drive: 24 min (14.6 mi)
Discover World Golf Village, Saint Augustine, FL
Shopping Centers
Shoppers will appreciate 72 Flintlock Ln proximity to Lion Gate One. Lion Gate One is 1.4 miles away.
Nearby Properties You Might Like
Within 50 Miles of 72 Flintlock Ln
Find More Rentals in Saint Augustine
- Houses with Pets Allowed in Saint Augustine
- Affordable Houses for Rent in Saint Augustine
- Fully Furnished Homes for Rent in Saint Augustine
- Modern Homes for Rent in Saint Augustine
- Houses for Rent with Pool in Saint Augustine
- Houses for Rent with a Yard in Saint Augustine
- Homes for Rent with a Garage in Saint Augustine
- Houses for Rent with Fireplace in Saint Augustine
- Houses for Rent with a Patio in Saint Augustine
- Houses for Rent with Washer and Dryer in Saint Augustine
- Houses for Rent with Utilities Paid in Saint Augustine









