
139 Shenandoah Ln, Lagrange, GA 30241
What This House Offers
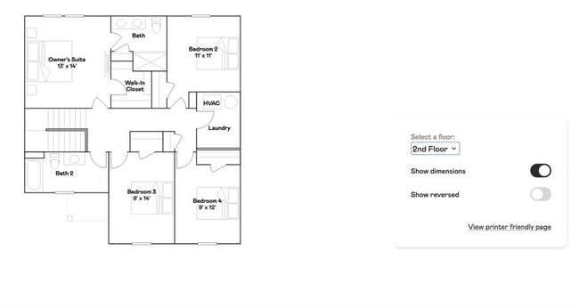
Brand New,Never Lived-In 4-Bedroom Home Modern Living with Community Amenities! Be the first to live in this beautifully designed brand new,never lived-in... two-story home,offering the perfect combination of comfort,space,and modern style. As you enter,you're welcomed by a bright,open-concept layout featuring a contemporary kitchen with a large center island perfect for cooking,dining,and entertaining. The kitchen flows seamlessly into the dining area and a spacious Great Room,creating a warm and inviting space for everyday living. Upstairs,all four bedrooms are thoughtfully positioned to provide privacy and convenience. The spacious owner's suite serves as a relaxing retreat,complete with a private bathroom and a large walk-in closet. Enjoy the benefits of a fresh,move-in ready home with brand new finishes throughout,offering a clean and low-maintenance lifestyle. Community Amenities Include: Swimming Pool Pool House Playground Dog Park MLS ID 7740705
Unit
- $2,280 / month
- 4 Beds
- 2.5 Baths
- 1896 sq. ft.
- Available Now
Home Features
- Dishwasher
- Disposal
- Microwave
- Range
- Refrigerator
- Trash Compactor
139 Shenandoah Ln is a single-family home for rent in Lagrange, GA
Fees and Policies
The fees below are based on community-supplied data and may exclude additional fees and utilities.
One-Time Basics
Due at Move-In
- Security Deposit - Refundable$1,000
Property Fee Disclaimer Based on community-supplied data and independent market research. Subject to change without notice. May exclude fees for mandatory or optional services and usage-based utilities.
Home Details
Views
- Neighborhood Views
Home Design
- Built in 2026
- Modern Architecture
- Shingle Roof
- Single Family Detached Home
- Vinyl Siding
Interior Spaces
- Great Room
- Ceiling height of 9 feet on the main level
- Recessed Lighting
- Entrance Foyer
- ENERGY STAR Qualified Windows
- 1896 Sq Ft Home
Kitchen
- Stone Countertops
- Walk-In Pantry
- Eat-In Kitchen
- Electric Cooktop
- ENERGY STAR Qualified Appliances
- Microwave
- Dishwasher
- Trash Compactor
- Disposal
Flooring
- Luxury Vinyl Tile
- Carpet
Bedrooms and Bathrooms
- Oversized primary bedroom
- Double Vanity
- Walk-In Closet
- 2.5 Bathrooms
- 4 Bedrooms
- 4 Bedrooms | 3 Bathrooms
- Bedrooms Count All Upper Levels
Laundry
- Laundry Room
- Dryer
- Laundry on upper level
- Washer
Home Security
- Smart Home
- Carbon Monoxide Detectors
- Fire and Smoke Detector
Parking
- 2 Car Attached Garage
- Front Facing Garage
- Garage Door Opener
- Driveway
Accessible Home Design
- Accessible Kitchen
Eco-Friendly Details
- ENERGY STAR Qualified Equipment
Pool
- In Ground Pool
Outdoor Features
- Tennis Courts
- Balcony
Lot Details
- 6098 Sq Ft Lot
- No Common Walls
- Private Yard
- Rectangular Lot
- Property fronts a private road
- Back Yard
Schools
- Franklin Forest Elementary School
- Gardner-Newman Middle School
- Lagrange High School
Utilities
- Central Heating and Cooling System
Listing and Financial Details
- Security Deposit $2,280
- Property Available on 2026-03-25
- 12 Month Lease Term
- Tax Lot 113
Community Details
Overview
- Property has a Home Owners Association
- Crossvine Village Subdivision
Amenities
- Clubhouse
- Business Center
Recreation
- Community Pool
- Tennis Courts
- Community Playground
- Park
- Dog Park
Pet Policy
- Call for details about the types of pets allowed
- Pet Deposit $250
Security
- Card or Code Access
Explore Commute Options
- Drive Time--
- Walk Time--
- Bike Ride Time--
- Public Transit--
Get In Touch
Lagrange, GA 30241

Copyright © 2026 First Multiple Listing Service, Inc. All rights reserved. All information provided by the listing agent/broker is deemed reliable but is not guaranteed and should be independently verified.
Area Scores
Walkability
Fairly walkable40 / 100
Driveability
Exceptionally drivable90 / 100
Bikeability
Not bikeable10 / 100
Local Education
Primary and Secondary Schools
Clearview Elementary School
Grades PK-5
Public
First Presbyterian Montessori Preschool & Kindergarten
Grades PK-5
Private
Gardner-Newman Middle School
Grades 6-8
Public
Lagrange High School
Grades 9-12
Public
Welcome Christian School
Grades K-12
Private
Data provided by GreatSchools.org © 2026. All rights reserved.
Discover Troup County, Lagrange, GA
Shopping Centers
Shoppers will appreciate 139 Shenandoah Ln proximity to Lagrange Mall, Plantation Village, and Clocktower Shopping Center. Lagrange Mall is 1.6 miles away, and Plantation Village is within a 32 minute walk.
Parks and Recreation
Recreational activities near 139 Shenandoah Ln are plentiful. Discover 1 park within 4.6 miles, including Hills & Dales Estate.
Nearby Properties You Might Like
Within 50 Miles of 139 Shenandoah Ln









