
106 County Road 3755, Cleveland, TX 77328
What This House Offers
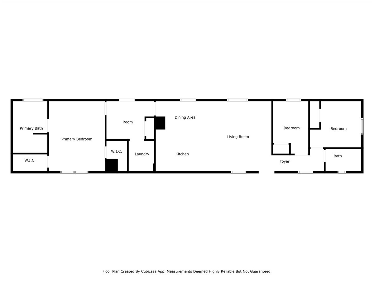
Cute Single wide 3 bedroom 2 bath home on a little over an acre Enter the home with an open family room to the Kitchen and dining area. Dedicated Mudroom near... the back door. Utility room in the home. Spacious primary bedroom easily fits a king size bedroom set. En Suite bathroom with soaking tub. This home features a split floor plan keeping privacy for the parents with the secondary rooms on the other side of the home. Recently had a new composite roof and HVAC System is less than a year old. Pull through your gated driveway to a Metal covered carport. This home is move in ready. Yard Maintenance is NOT included and the responsibility of the tenant. This will be a condition in the lease. MLS# 52414833
Unit
- $1,550 / month
- 3 Beds
- 2 Baths
- 1216 sq. ft.
- Available Now
106 County Road 3755 is located in Cleveland, Texas in the 77328 zip code.
Rental Fees and Pet Policies
The fees below are based on community-supplied data and may exclude additional fees and utilities.
No Pets Allowed
Home Details
Home Design
- Built in 2010
- Traditional Architecture
- Single Family Detached Home
Interior Spaces
- Mud Room
- Family Room
- 1216 Sq Ft Home
- 1-Story Property
- Window Treatments
Kitchen
- Electric Range
- Breakfast Bar
- Electric Oven
- Dishwasher
- Laminate Countertops
Flooring
- Vinyl Flooring
Bedrooms and Bathrooms
- Soaking Tub
- Bathtub with Shower
- Separate Shower
- 2 Full Bathrooms
- 3 Bedrooms | 2 Bathrooms
- 3 Bedrooms
Laundry
- Washer and Electric Dryer Hookup
Home Security
- Fire and Smoke Detector
Parking
- 2 Detached Carport Spaces
- Additional Parking
Eco-Friendly Details
- Energy-Efficient Thermostat
Outdoor Features
- Deck
- Patio
Lot Details
- 1.07 Acre Lot
- East Facing Home
- Back Yard Fenced
Schools
- Northside Elementary School
- Cleveland Middle School
- Cleveland High School
Utilities
- Programmable Thermostat
- Central Heating and Cooling System
- Public Water Source
- Septic Tank
Listing and Financial Details
- Property Available on 2025-12-05
- Long Term Lease
Community Details
Overview
- Vestpro Residential Association
- Fry Homesites Subdivision
Pet Policy
- No Pets Allowed
- Pet Deposit Required
Explore Commute Options
- Drive Time--
- Walk Time--
- Bike Ride Time--
- Public Transit--
Get In Touch
Cleveland, TX 77328

Copyright © 2026 Houston Association of Realtors. All rights reserved. All information provided by the listing agent/broker is deemed reliable but is not guaranteed and should be independently verified.
Neighborhood Scores
Walk Score ®
Car-Dependent3 / 100
Bike Score ®
Somewhat Bikeable43 / 100
Travel and Transit

Local Education
Primary and Secondary Schools
Southside Primary School
Grades PK-5
Public
Eastside Elementary School
Grades PK-5
Public
Greenleaf Elementary School
Grades PK-6
Public
Cleveland Middle
Grades 6-8
Public
Cleveland High School
Grades 9-12
Public
Riverside Christian Academy
Grades PK-12
Private
Data provided by GreatSchools.org 2024 © 2024. All rights reserved.
Discover Liberty County, Cleveland, TX
Airports
Living in Liberty County provides easy access to George Bush Intcntl/Houston, located just 36 minutes from 106 County Road 3755.
Nearby Properties You Might Like
Within 50 Miles of 106 County Road 3755







