
313-315 Chittenden Ave
313-315 Chittenden Ave, Columbus, OH 43201
| Renta mensual | Cuartos | Baños | |||
|---|---|---|---|---|---|
| $900 - $1,300 | 2 Habitaciones | 2 | 1 Baño | 1 Baño | 650 - 888 sq. ft. |
| Ver tarifas y políticas |
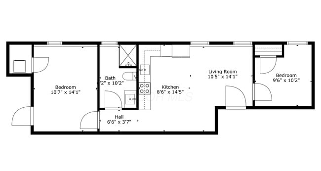
Precios y planos de planta
313-A
Mostrar detalles del plano arquitectónico
313-E
Mostrar detalles del plano arquitectónico
Detalles
Opciones del contrato
- Contratos de arrendamiento de 12 - 46 meses
Información de la propiedad
- Incorporado 1910
- 6 unidades / 2 plantas
Cuotas y políticas
Las siguientes cuotas se basan en información proporcionada por la comunidad y es posible que no incluyan cuotas adicionales o servicios básicos.
Garaje: adjunto
- Parking Fee$0 / mes
Comentarios
Máximo 1
Opciones adicionales de estacionamiento
- Garaje: adjunto
Perros
- One-Time Pet Fee$0
- Pet Deposit$250
- Monthly Pet Fee$50 / mes
Gatos
- One-Time Pet Fee$0
- Pet Deposit$250
- Monthly Pet Fee$50 / mes
Aviso Legal sobre Tarifas de la Propiedad Based on community-supplied data and independent market research. Subject to change without notice. May exclude fees for mandatory or optional services and usage-based utilities.
Explorar opciones de viaje
- En Coche--
- Caminando--
- En Bicicleta--
- Tránsito público--
Comodidades del apartamento
- Aire acondicionado
- Balcón
- Calefacción
- Cocina
- Cocina con isla
- Dormitorios grandes
- Electrodomésticos de acero inoxidable
- Encimeras de cuarzo
- Fogón
- Lavadora/Secadora
- Lavavajillas
- Máquina de hielo
- Sala familiar
- Suelos de madera maciza
- Zona de eliminación de desechos
Calificaciones
Caminabilidad
Bastante apto para caminar70 / 100
Transporte Público
Algo de transporte público50 / 100
Facilidad para Conducir
Bastante apto para conducir70 / 100
Ciclabilidad
Favorablemente apto para andar en bici50 / 100
Tránsito


Mudanza a Indianola Terrace, Columbus, OH
Centros Comerciales
Shoppers will appreciate 313-315 Chittenden Ave proximity to 4th Street Study Center and Lennox Station Retail Center. 4th Street Study Center is 0.6 miles away, and Lennox Station Retail Center is within a 35 minute walk.
Parques y Recreación
Las actividades recreativas cerca de 313-315 Chittenden Ave son abundantes. Descubre 4 parks dentro de 4.9 miles, incluidos Chadwick Arboretum and Learning Gardens, Center of Science and Industry (COSI) y Kelton House Museum & Garden.
Aeropuertos
Vivir en Indianola Terrace brinda fácil acceso a John Glenn Columbus International, ubicado a solo 13 minutes de 313-315 Chittenden Ave. Otro aeropuerto cercano es Rickenbacker International, ubicado a 16.8 miles de distancia.
Educación local
Escuelas primarias y secundarias
Weinland Park Elementary School
Grados Escolares PK-5
Public
Tree of Life-Indianola Branch
Grados Escolares PK-5
Private
Dominion Middle School
Grados Escolares 6-8
Public
Graham Expeditionary Middle School
Grados Escolares K-8
Public
St Joseph Montessori School
Grados Escolares PK-8
Private
Whetstone High School
Grados Escolares 9-12
Public
Cristo Rey Columbus High School
Grados Escolares 9-12
Private
Early College Academy
Grados Escolares 9-12
Public
Youthbuild Columbus Community
Grados Escolares 9-12
Public
Datos de escuelas proporcionados por GreatSchools.org © 2026. Todos los derechos reservados.
313-315 Chittenden Ave información de la área
Edificio de 6 apartamentos bellamente renovado a solo minutos de la Universidad Estatal de Ohio. Cada espaciosa unidad de 2 dormitorios y 1 baño cuenta con modernas mejoras, como pisos de madera, electrodomésticos de acero inoxidable, encimeras de... cuarzo blanco, lavadora/secadora y balcón privado. Se admiten mascotas (hasta dos gatos o perros) y estacionamiento gratuito fuera de la calle incluido. Una combinación perfecta de comodidad, estilo y conveniencia.
Edificio de 6 apartamentos bellamente renovado a solo minutos de la Universidad Estatal de Ohio. Cada espaciosa unidad de 2 dormitorios y 1 baño cuenta con modernas mejoras, como pisos de madera, electrodomésticos de acero inoxidable, encimeras de cuarzo blanco, lavadora/secadora y balcón privado. Se admiten mascotas (hasta dos gatos o perros) y estacionamiento gratuito fuera de la calle incluido. Una combinación perfecta de comodidad, estilo y conveniencia.
313-315 Chittenden Ave se encuentra en County en el código postal .
Propiedades cercanas que te pueden gustar






Galería de 313-315 Chittenden Ave
Encuentra más alquileres en Columbus
- Apartamentos que admiten mascotas en Columbus
- Apartamentos amueblado en Columbus
- Apartamentos Frente al mar en Columbus
- Apartamentos en alquiler con piscina en Columbus
- Apartamentos en alquiler Acceso en silla de ruedas en Columbus
- Apartamentos en alquiler con Lavadora y secadora en Columbus
- Apartamentos en alquiler con servicios incluidos en Columbus
- Apartamentos en alquiler con garaje en Columbus
- Apartamentos with EV Charging in Columbus
- Apartamentos en alquiler Recorrido Virtual en Columbus
- Cuarto en renta en Columbus
- Ofertas especiales de mudanza en Columbus
- Apartamentos asequibles en Columbus
- Apartamentos de lujo en Columbus
- Apartamentos en alquiler de menos de $700 en Columbus
- Apartamentos en alquiler de menos de $900 en Columbus
- Apartamentos en alquiler de menos de $1000 en Columbus
- Apartamentos en alquiler de menos de $1500 en Columbus
- Apartamentos en alquiler de menos de $2000 en Columbus
- Apartamentos en alquiler de menos de $2500 en Columbus
Propiedades cercanas que te pueden gustar










