
28227 Clear Breeze Ct, Spring, TX 77386
Qué ofrece este apartamento
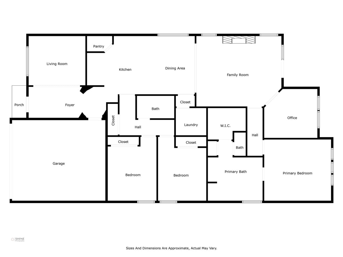
Ubicada en la codiciada primera fase de Woodson's Reserve, esta impresionante casa Toll Brothers de una sola planta combina elegancia atemporal con... funcionalidad moderna. Con un popular exterior de ladrillo pintado de blanco y un encantador porche delantero, esta residencia le da la bienvenida con pisos de roble blanco claro y carpintería personalizada en toda la casa, ¡sin alfombras a la vista! La amplia distribución incluye una oficina en casa y un comedor formal que actualmente funciona como segunda oficina, ofreciendo una flexibilidad excepcional para el estilo de vida actual. La cocina gourmet cuenta con una amplia despensa, perfecta para el entretenimiento, mientras que las lámparas de diseño y los altavoces integrados realzan cada espacio con comodidad y estilo. Cuidadosamente renovada y meticulosamente mantenida, ¡esta casa está lista para mudarse! Refrigerador incluido. MLS# 40818137
Unidad
- $3,100 / Mes
- 3 Habitaciones
- 2 Baños
- 2,241 sq. ft.
- Disponibilidad Ahora
28227 Clear Breeze Ct se encuentra en County en el código postal .
Tarifas de alquiler y política de mascotas
Las siguientes cuotas se basan en información proporcionada por la comunidad y es posible que no incluyan cuotas adicionales o servicios básicos.
No se permiten mascotas
Apartment Details
Home Design
- Built in 2022
- Traditional Architecture
- Single Family Detached Home
Interior Spaces
- High Ceiling
- Home Office
- Family Room Off Kitchen
- Formal Entry
- Dining Room
- Ceiling Fan
- Utility Room
- 2241 Sq Ft Home
- 1-Story Property
- Wired For Sound
- Gas Log Fireplace
Kitchen
- Kitchen Island
- Gas Cooktop
- Oven
- Microwave
- Dishwasher
- Disposal
Flooring
- Engineered Wood
- Tile
Bedrooms and Bathrooms
- 2 Full Bathrooms
- 3 Bedrooms | 2 Bathrooms
- 3 Bedrooms
Home Security
- Security System Owned
- Fire and Smoke Detector
Parking
- 2 Car Attached Garage
Eco-Friendly Details
- ENERGY STAR Qualified Appliances
- Energy-Efficient Windows with Low Emissivity
- Energy-Efficient Thermostat
- Energy-Efficient HVAC
- Energy-Efficient Lighting
- Ventilation
Outdoor Features
- Tennis Courts
- Pond
Lot Details
- 7662 Sq Ft Lot
- Back Yard Fenced
- Sprinkler System
Schools
- Hines Elementary School
- York Junior High School
- Grand Oaks High School
Utilities
- Programmable Thermostat
- Central Heating and Cooling System
- Heating System Uses Gas
- Cable TV Available
- Public Water Source
- Public Sewer
Listing and Financial Details
- Property Available on 2025-12-07
- 12 Month Lease Term
Community Details
Overview
- Woodson's Reserve Subdivision
Amenities
- Clubhouse
- Meeting Room
- Party Room
- Picnic Area
Recreation
- Fitness Center
- Community Pool
- Tennis Courts
- Community Basketball Court
- Pickleball Courts
- Sport Court
- Community Playground
- Park
- Trails
- Dog Park
Pet Policy
- Call for details about the types of pets allowed
- Pet Deposit Required
Explorar opciones de viaje
- En Coche--
- Caminando--
- En Bicicleta--
- Tránsito público--
Póngase en contacto
Spring, TX 77386

Copyright © 2025 Houston Association of Realtors. All rights reserved. All information provided by the listing agent/broker is deemed reliable but is not guaranteed and should be independently verified.
Calificaciones de los barrios
Walk Score ®
Car-Dependent2 / 100
Bike Score ®
Somewhat Bikeable26 / 100
Soundscore ™
Calm87 / 100
Viajes y tránsito

Educación local
Escuelas primarias y secundarias
Cox Intermediate School
Grados Escolares 5-6
Public
Snyder Elementary School
Grados Escolares PK-4
Public
York Junior High School
Grados Escolares 7-8
Public
Founders Christian School
Grados Escolares PK-7
Private
Carl Wunsche Sr High School
Grados Escolares 9-12
Public
Langtry Prep Academy
Grados Escolares 9-12
Private
The Goddard School - Spring (Harmony)
Grados Escolares PK-PK
Private
Lighthouse Christian Academy
Grados Escolares PK-12
Private
Datos de escuelas proporcionados por GreatSchools.org 2024 © 2024. Todos los derechos reservados.
Colegios y Universidades
Escuela
Tiempo de viaje (Distancia)
Lone Star College
En coche: 25 min (13.4 mi)
Descubre a Porter Heights/Woodbranch, Spring, TX
Parques y Recreación
Las actividades recreativas cerca de 28227 Clear Breeze Ct son abundantes. Descubre 4 parks dentro de 4.9 miles, incluidos Spring Trails Preserve, Spring Creek Greenway Nature Center y Peckinpaugh Preserve.
Aeropuertos
Vivir en Porter Heights/Woodbranch brinda fácil acceso a George Bush Intcntl/Houston, ubicado a solo 29 minutes de 28227 Clear Breeze Ct. Otro aeropuerto cercano es William P Hobby, ubicado a 42.3 miles de distancia.
Propiedades cercanas que te pueden gustar
Dentro de 50 millas de 28227 Clear Breeze Ct
Find More Rentals in Spring
Casas en Spring por comodidades
- Casas en alquiler Mascotas permitidas en Spring
- Casas asequibles en alquiler en Spring
- Casas totalmente amuebladas en alquiler en Spring
- Casas Modern en alquiler en Spring
- Casas for Rent with con piscina in Spring
- Casas for Rent with a con jardín in Spring
- Casas for Rent with a con garaje in Spring
- Casas for Rent with con chimenea in Spring
- Casas for Rent with a con patio in Spring
- Casas for Rent with con Lavadora y secadora in Spring
- Casas for Rent with con servicios pagados in Spring







